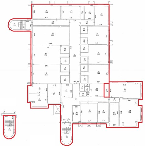
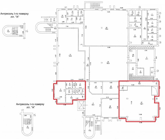
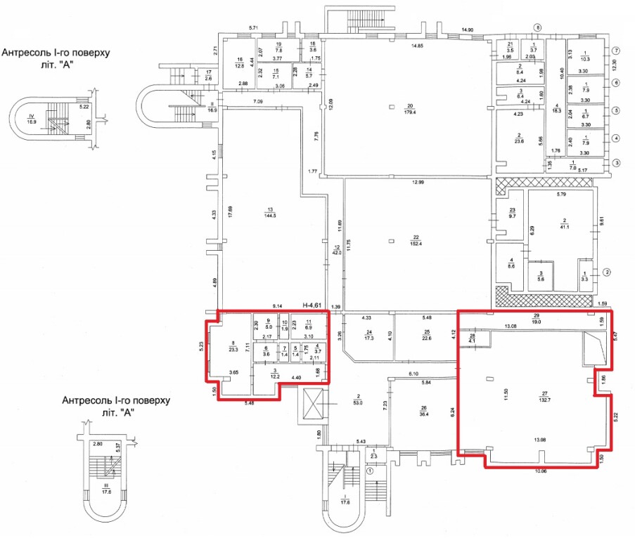
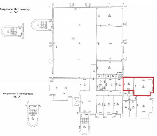
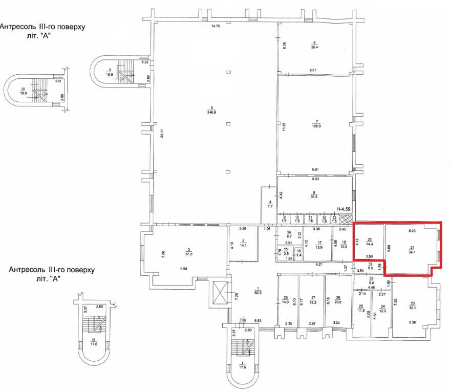
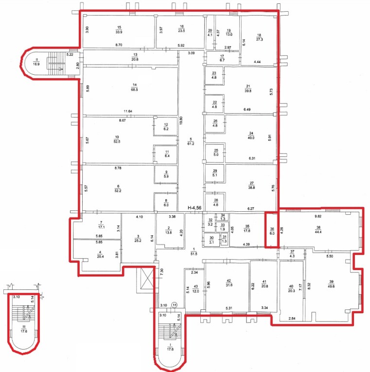
м. Київ, вул. Архітектора Вербицького, 3. Оренда – Приміщення 1-го, 3-го, 4-го поверхів, площею 1191,50 м2 (В)

138 547.62 грн
116.28 грн / м2
Україна, м.Київ, Київ, вул. Архітектора Вербицького, 3
Перейти до аукціону на сайті
  • Інформація
  • Опис
  • Документи
Дата оголошення пропозиції:
08 лютого 2022
Площа:
1191.50 м2
Тип об’єкта:
Приміщення
Тип аукціону:
Англійський аукціон
Статус аукціону:
Аукціон не відбувся
Тип угоди:
Оренда
Розмір мінімального кроку:
1 500.00 ₴
Розмір гарантійного внеску:
83 128.57 ₴
Початок прийому пропозицій:
08.02.2022 10:58:37
Завершення прийому пропозицій:
09.03.2022 20:00:00
Лот:
UA-PS-2022-02-08-000011-2
№ лоту (УТК):
UTK080222_02T
Лот виставляється на торги (раз):
1
Стислий опис майна:
Пропонується до оренди приміщення 1-го, 3-го, 4-го поверхів площею 1191,50 м2. Будівля знаходиться в Дарницькому районі міста Києва, житловий масив Харківський. Зупинки маршрутного транспорту, супермаркети, торгово-розважальні центри. Найближчі станції метро «Харківська», «Вирлиця». Характеристики: • загальна площа будівлі – 4804,70 м2; • кількість поверхів – 5; • опалення централізоване (міське); • земельна ділянка – 0,5530 га; • каналізація, водозабезпечення, сан. вузол – присутні;
Адреса місцезнаходження майна:
Україна, м.Київ, Київ, вул. Архітектора Вербицького, 3
Схожі пропозиції
08.09.2022
м. Київ, вул. Архітектора Вербицького, 3. Оренда – Приміщення 1-го, 3-го, 4-го поверхів, площею 1191,50 м2 (В)
55 047.30 грн
46.20 грн / м2
Приміщення
м. Київ, вул. Архітектора Вербицького, 3. Оренда – Приміщення 1-го, 3-го, 4-го поверхів, площею 1191,50 м2 (В)
Україна, м.Київ, Київ, вулиця Архітектора Вербицького 3
11.04.2024
м. Київ, вул. Ісаакяна, 3;   Оренда – Приміщення 2-го поверху площею 149,81 кв.м (В)
37 211.31 грн
248.39 грн / м2
Приміщення
м. Київ, вул. Ісаакяна, 3; Оренда – Приміщення 2-го поверху площею 149,81 кв.м (В)
Україна, м.Київ, Київ, вулиця Ісаакяна, 3
30.04.2025
м. Київ, вул. Джона Маккейна, 40, літ. «А» (Печерський р-н). Оренда – група приміщень на 1-му поверсі, площею 65,60 кв.м. (В)
18 854.10 грн
287.41 грн / м2
Приміщення
м. Київ, вул. Джона Маккейна, 40, літ. «А» (Печерський р-н). Оренда – група приміщень на 1-му поверсі, площею 65,60 кв.м. (В)
Україна, м.Київ, Київ, вулиця Джона Маккейна, 40
22.10.2025
м. Київ, вул. Джона Маккейна, 40, літ. «А» (Печерський р-н). Оренда – група приміщень на 3-му поверсі, площею 62,80 кв. м. (В)
10 616.97 грн
169.06 грн / м2
Приміщення
м. Київ, вул. Джона Маккейна, 40, літ. «А» (Печерський р-н). Оренда – група приміщень на 3-му поверсі, площею 62,80 кв. м. (В)
Україна, м.Київ, Київ, , вул. Джона Маккейна, 40, літ. «А»