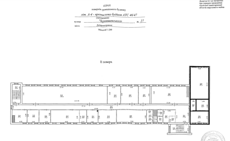
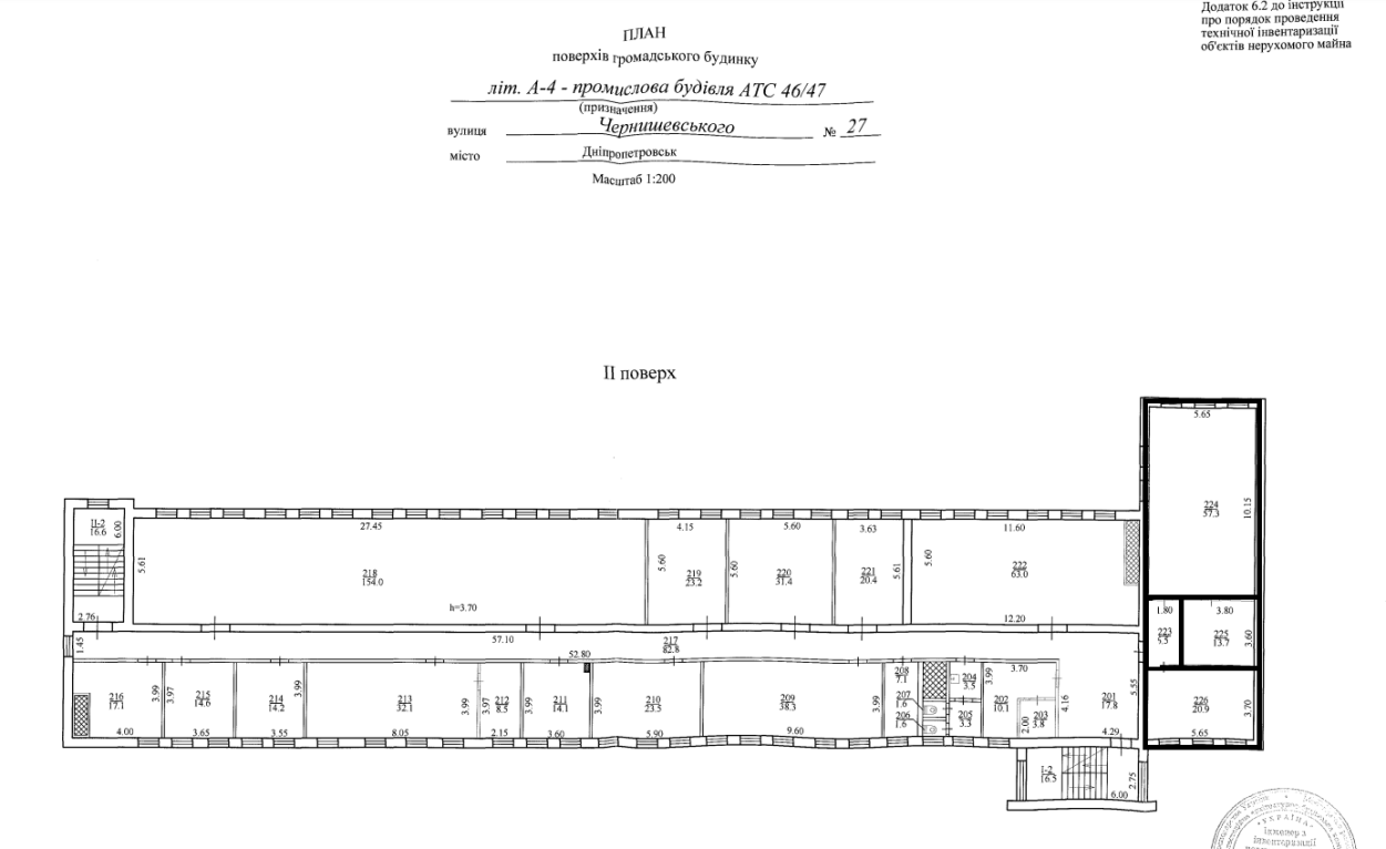
Дніпропетровська обл., м. Дніпро, вул. Чернишевського, 27. Оренда – приміщення 2-го поверху площею 98,40 кв.м. (В)

6 683.33 грн
67.92 грн / м2
Україна, Дніпропетровська обл., м. Дніпро, вул. Чернишевського, 27
Перейти до аукціону на сайті
  • Інформація
  • Опис
  • Документи
Дата оголошення пропозиції:
02 грудня 2022
Площа:
98.40 м2
Тип об’єкта:
Приміщення
Тип аукціону:
Англійський аукціон
Статус аукціону:
Аукціон не відбувся
Тип угоди:
Оренда
Розмір мінімального кроку:
300.00 ₴
Розмір гарантійного внеску:
4 010.00 ₴
Початок прийому пропозицій:
02.12.2022 11:36:04
Завершення прийому пропозицій:
09.01.2023 20:00:00
Проведення аукціону:
10.01.2023 11:15:00
Лот:
CLE001-UA-20221202-71770
№ лоту (УТК):
UTK010722_06P
Лот виставляється на торги (раз):
3
Стислий опис майна:
Пропонується до оренди приміщення 2-го поверху площею 98,40 кв.м. Розташування - будівля знаходиться в Соборному районі міста. Поруч знаходяться відділення банку, супермаркети, учбові заклади, зупинка громадського транспорту, високий автомобільний і пішохідний потоки. Стан приміщення задовільний, підходить для офісу, студії, Ідеальне місце під розвиток будь-якого бізнесу. Можливість передачі приміщень в суборенду. Характеристики: - Кількість поверхів – 4 - Загальна площа – 4 202,20 кв.м. - Площа запропонована до оренди – 98,40 кв.м. - Електропостачання, водопостачання, теплопостачання, вивіз сміття, охорона та обслуговування пожежної сигналізації, прибирання загальних місць та території; - Земельна ділянка – 0, 358 га (договір оренди)
Адреса місцезнаходження майна:
Україна, Дніпропетровська обл., м. Дніпро, вул. Чернишевського, 27
Схожі пропозиції
Дніпропетровська обл., м. Кривий Ріг, вул. Головка Адмірала, 71. Оренда – приміщення 2-го поверху, площею 306,9 кв.м. (В)
19 095.32 грн
62.22 грн / м2
Приміщення
Дніпропетровська обл., м. Кривий Ріг, вул. Головка Адмірала, 71. Оренда – приміщення 2-го поверху, площею 306,9 кв.м. (В)
Україна, Дніпропетровська обл., м. Кривий Ріг, вул. Головка Адмірала, 71
Дніпропетровська обл., м. Дніпро, пр. Пушкіна, 75 а. Оренда – приміщення  1-го  поверху площею 11,50 кв.м.(В)
1 065.02 грн
92.61 грн / м2
Приміщення
Дніпропетровська обл., м. Дніпро, пр. Пушкіна, 75 а. Оренда – приміщення 1-го поверху площею 11,50 кв.м.(В)
Україна, Дніпропетровська обл., м. Дніпро, пр.Пушкіна, 75 а
05.07.2023
Дніпропетровська обл., м. Дніпро, вул. Січових Стрільців, 10. Оренда – приміщення цокольного поверху площею 47,90 кв.м. (В)
2 212.98 грн
46.20 грн / м2
Приміщення
Дніпропетровська обл., м. Дніпро, вул. Січових Стрільців, 10. Оренда – приміщення цокольного поверху площею 47,90 кв.м. (В)
Україна, Дніпропетровська обл., м. Дніпро, вул. Січових Стрільців, 10
25.04.2025
Дніпропетровська обл., м. Дніпро, вул. Пушкіна, 75А. Оренда – приміщення технічного поверху площею 66,80 кв.м (В)
6 710.06 грн
100.45 грн / м2
Приміщення
Дніпропетровська обл., м. Дніпро, вул. Пушкіна, 75А. Оренда – приміщення технічного поверху площею 66,80 кв.м (В)
Україна, Дніпропетровська обл., м. Дніпро, вул. Пушкіна, 75А
Переглянуті пропозиції
14.12.2023
Дніпропетровська обл., м. Дніпро, вул.Чернишевського, 27;   Оренда – приміщення 1-го поверху площею 19,8 кв.м.(В)
2 004.95 грн
101.26 грн / м2
Приміщення
Дніпропетровська обл., м. Дніпро, вул.Чернишевського, 27; Оренда – приміщення 1-го поверху площею 19,8 кв.м.(В)
Україна, Дніпропетровська обл., Дніпро, вулиця Чернишевського, 27
м. Київ, вул. Макіївська, 3.Оренда – приміщення 2-го поверху, площею 724,10 м2 (В)
76 682.19 грн
105.90 грн / м2
Приміщення
м. Київ, вул. Макіївська, 3.Оренда – приміщення 2-го поверху, площею 724,10 м2 (В)
Україна, м.Київ, Київ, вул. Макіївська, 3
09.08.2022
м. Київ, вул. Джона Маккейна, №40 , Оренда – приміщення підвалу, площею 44,26 м2 , (В)
15 593.68 грн
352.80 грн / м2
Приміщення
м. Київ, вул. Джона Маккейна, №40 , Оренда – приміщення підвалу, площею 44,26 м2 , (В)
Україна, м.Київ, Київ, вул. Джона Маккейна, №40
12.01.2023
Довгострокова оренда. м. Київ, вул. Горького (Антоновича), 40. Оренда – приміщення 1-го поверху, площею 538,5 кв. м. (В)