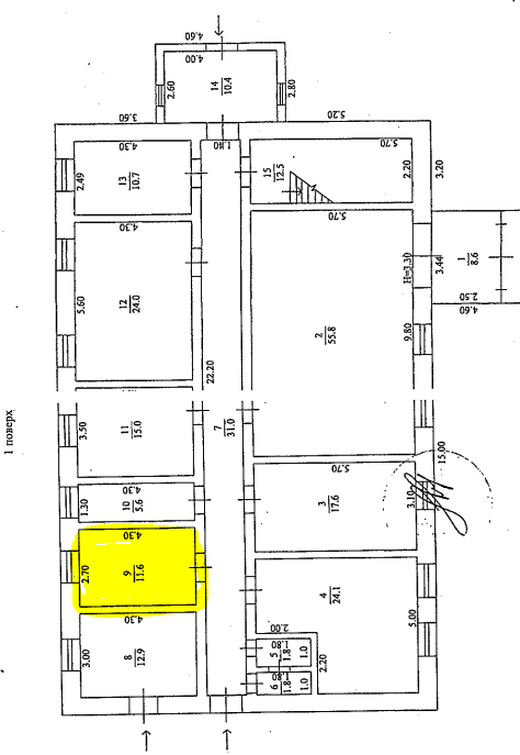
Дніпропетровська обл., смт. Софіївка, бул. Шевченка, 17А. Оренда – приміщення 1-го поверху площею 11,6 кв.м. (В)

588.24 грн
50.71 грн / м2
Україна, Дніпропетровська обл., смт. Софіївка, бул. Шевченка, 17А
Перейти до аукціону на сайті
  • Інформація
  • Опис
  • Документи
Дата оголошення пропозиції:
27 січня 2023
Площа:
11.60 м2
Тип об’єкта:
Приміщення
Тип аукціону:
Англійський аукціон
Статус аукціону:
Аукціон не відбувся
Тип угоди:
Оренда
Розмір мінімального кроку:
20.00 ₴
Розмір гарантійного внеску:
352.94 ₴
Початок прийому пропозицій:
27.01.2023 10:19:15
Завершення прийому пропозицій:
28.02.2023 20:00:00
Проведення аукціону:
01.03.2023 12:25:00
Лот:
CLE001-UA-20230127-97200
№ лоту (УТК):
UTK181122_07T
Лот виставляється на торги (раз):
3
Стислий опис майна:
Пропонується до оренди приміщення 1-го поверху площею 11,6 кв.м. Розташування – 2-поверхова будівля (літ.А,а, приміщ. №9), знаходиться в центральному районі населенного пункту. Поруч знаходяться об’єкти соціальної інфраструктури: пошта, магазини, школа, лікарня, зона відпочинку (парк). Стан приміщення задовільний, підходить для офісу, Ідеальне місце під розвиток будьякого бізнесу. Можливість передачі приміщень в суборенду. Характеристики: ▪ Кількість поверхів – 2 ▪ Загальна площа – 464,8 кв.м. ▪ Площа запропонована до оренди –11,6 кв.м. ▪ Електропостачання, водопостачання; теплопостачання – власна котельня; ▪ Земельна ділянка – 0, 0824 га (договір оренди)
Адреса місцезнаходження майна:
Україна, Дніпропетровська обл., смт. Софіївка, бул. Шевченка, 17А
Схожі пропозиції
23.01.2024
Дніпропетровська обл., м. Кривий Ріг, вул. Водоп`янова, 1а;   Оренда – приміщення  1-го поверху, площею 282,5 кв.м. (В)
2 542.50 грн
9.00 грн / м2
Приміщення
Дніпропетровська обл., м. Кривий Ріг, вул. Водоп`янова, 1а; Оренда – приміщення 1-го поверху, площею 282,5 кв.м. (В)
Україна, Дніпропетровська обл., Кривий Ріг, вулиця Водоп'янова, 1а
15.09.2022
Дніпропетровська обл., м. Дніпро, вул. Панікахи, 27. Оренда – приміщення 1-го поверху площею 92,70 кв.м.(В)
4 282.74 грн
46.20 грн / м2
Приміщення
Дніпропетровська обл., м. Дніпро, вул. Панікахи, 27. Оренда – приміщення 1-го поверху площею 92,70 кв.м.(В)
Україна, Дніпропетровська обл., Дніпро, вулиця Панікахи, 27
07.02.2025
Дніпропетровська обл., м. Кам’янське, пр. Героїв АТО, 1. Оренда – приміщення 3-го поверху площею 22,80 кв.м. (В)
273.60 грн
12.00 грн / м2
Приміщення
Дніпропетровська обл., м. Кам’янське, пр. Героїв АТО, 1. Оренда – приміщення 3-го поверху площею 22,80 кв.м. (В)
Україна, Дніпропетровська обл., м. Кам’янське, пр. Героїв АТО, 1
25.06.2024
Дніпропетровська обл., м. Дніпро, вул. Князя Ярослава Мудрого, 3. Оренда – приміщення 5-го поверху площею 58,20 кв.м. (В)
6 963.63 грн
119.65 грн / м2
Приміщення
Дніпропетровська обл., м. Дніпро, вул. Князя Ярослава Мудрого, 3. Оренда – приміщення 5-го поверху площею 58,20 кв.м. (В)
Україна, Дніпропетровська обл., м. Дніпро, вул. Князя Ярослава Мудрого, 3, вул. Дніпровська, 226
Переглянуті пропозиції
09.09.2025
м. Київ, вул. Джона Маккейна, 40, літ. «А» (Печерський р-н). Оренда – група приміщень у підвалі, площею 24,80 кв.м (В)
4 192.69 грн
169.06 грн / м2
Приміщення
м. Київ, вул. Джона Маккейна, 40, літ. «А» (Печерський р-н). Оренда – група приміщень у підвалі, площею 24,80 кв.м (В)
Україна, м.Київ, Київ, Адреса: 01042, м. Київ, вул. Джона Маккейна, 40, літ. «А» (Печерський р-н)
03.09.2025
Дніпропетровська обл., м. Кам’янське, просп. Героїв АТО, 1. Оренда – приміщення 3-го поверху, площею 26,30 кв.м. (В)
789.00 грн
30.00 грн / м2
Приміщення
Дніпропетровська обл., м. Кам’янське, просп. Героїв АТО, 1. Оренда – приміщення 3-го поверху, площею 26,30 кв.м. (В)
Україна, Дніпропетровська обл., м. Кам’янське, просп. Героїв АТО, 1
07.05.2025
м. Київ, бульвар Академіка Вернадського, 79-А (В). Оренда – приміщення 2-го поверху, загальною площею – 37,70 кв.м.
5 460.47 грн
144.84 грн / м2
Приміщення
м. Київ, бульвар Академіка Вернадського, 79-А (В). Оренда – приміщення 2-го поверху, загальною площею – 37,70 кв.м.
Україна, м.Київ, Київ, бульвар Академіка Вернадського, 79
07.03.2023
Дніпропетровська обл., м. Кам’янське, вул. Героїв АТО, 1. Оренда – приміщення 3-го поверху площею 17,3 кв.м. (В)
683.00 грн
39.48 грн / м2
Приміщення
Дніпропетровська обл., м. Кам’янське, вул. Героїв АТО, 1. Оренда – приміщення 3-го поверху площею 17,3 кв.м. (В)
Україна, Дніпропетровська обл., Кам’янське, Героїв АТО, 1