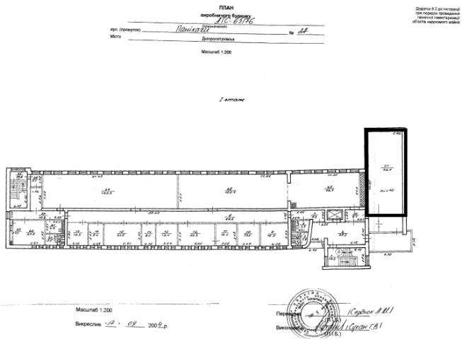
Дніпропетровська обл., м. Дніпро, вул. Панікахи, 27. Оренда – приміщення 1-го поверху площею 92,70 кв.м.(В)

4 282.74 грн
46.20 грн / м2
Україна, Дніпропетровська обл., Дніпро, вулиця Панікахи, 27
Перейти до аукціону на сайті
  • Інформація
  • Опис
  • Документи
Дата оголошення пропозиції:
15 серпня 2022
Площа:
92.70 м2
Тип об’єкта:
Приміщення
Тип аукціону:
Англійський аукціон
Статус аукціону:
Аукціон не відбувся
Тип угоди:
Оренда
Розмір мінімального кроку:
120.00 ₴
Розмір гарантійного внеску:
2 569.64 ₴
Початок прийому пропозицій:
15.08.2022 19:01:10
Завершення прийому пропозицій:
14.09.2022 20:00:00
Проведення аукціону:
15.09.2022 12:50:00
Лот:
CLE001-UA-20220815-61378
№ лоту (УТК):
UTK180222_01T
Лот виставляється на торги (раз):
5
Стислий опис майна:
Пропонується до оренди приміщення 1-го поверху площею 92,70 кв.м. Розташування: будівля знаходиться в Шевченківському районі міста на ж/м Тополя-3. Поруч знаходяться полікліники, супермаркети, автозаправка, зупинка міського транспорту, високий автомобільний і пішохідний потоки. Стан приміщення – задовільний, підходить для будь-якого бізнесу. Можливість передачі приміщення в суборенду. Характеристики: • Кількість поверхів – 5 • Загальна площа – 4027,60 кв.м. • Площа запропонована до оренди – 92,70 кв.м. • Електропостачання, водопостачання, каналізаційна мережа, теплопостачання, охорона та обслуговування пожежної сигналізації, вивіз сміття, прибирання загальних місць та території. • Земельна ділянка – 0,2133 га (договір оренди)
Адреса місцезнаходження майна:
Україна, Дніпропетровська обл., Дніпро, вулиця Панікахи, 27
Схожі пропозиції
30.12.2022
Дніпропетровська обл., м. Дніпро, пр. Пушкіна, 75а. Оренда – приміщення 1-го поверху площею 11,5 кв.м. (В)
760.73 грн
66.15 грн / м2
Приміщення
Дніпропетровська обл., м. Дніпро, пр. Пушкіна, 75а. Оренда – приміщення 1-го поверху площею 11,5 кв.м. (В)
Україна, Дніпропетровська обл., Дніпро, вулиця Пушкіна, 75
31.12.2024
Дніпропетровська обл., м. Дніпро, просп. Героїв, 14. Оренда – приміщення 2-го поверху загальною площею 46,40 кв.м (В)
3 624.30 грн
78.11 грн / м2
Приміщення
Дніпропетровська обл., м. Дніпро, просп. Героїв, 14. Оренда – приміщення 2-го поверху загальною площею 46,40 кв.м (В)
Україна, Дніпропетровська обл., м. Дніпро, просп. Героїв, 14
08.08.2023
Дніпропетровська обл., м. Дніпро, вул. Чернишевського, 27. Оренда – приміщення 3-го поверху площею 484,10 кв.м. (В)
22 946.34 грн
47.40 грн / м2
Приміщення
Дніпропетровська обл., м. Дніпро, вул. Чернишевського, 27. Оренда – приміщення 3-го поверху площею 484,10 кв.м. (В)
Україна, Дніпропетровська обл., м. Дніпро, вул. Чернишевського, 27
03.12.2024
Дніпропетровська обл., м. Дніпро, вул. Князя Ярослава Мудрого, 3. Оренда – приміщення 4-го поверху площею 51,40 кв.м (В)
7 377.44 грн
143.53 грн / м2
Приміщення
Дніпропетровська обл., м. Дніпро, вул. Князя Ярослава Мудрого, 3. Оренда – приміщення 4-го поверху площею 51,40 кв.м (В)
Україна, Дніпропетровська обл., м. Дніпро, вул. Князя Ярослава Мудрого, 3
Переглянуті пропозиції
10.09.2024
Дніпропетровська обл., м. Дніпро, пр. Богдана Хмельницького, 28а.Оренда – приміщення 2-го поверху площею 74,90 кв.м. (В)
5 159.11 грн
68.88 грн / м2
Приміщення
Дніпропетровська обл., м. Дніпро, пр. Богдана Хмельницького, 28а.Оренда – приміщення 2-го поверху площею 74,90 кв.м. (В)
Україна, Дніпропетровська обл., м. Дніпро, пр. Богдана Хмельницького, 28а
17.05.2024
Дніпропетровська обл., м. Покров, вул. Центральна, 50. Оренда – приміщення будівлі гаражів загальною площею 26,90 кв.м (В)
538.00 грн
20.00 грн / м2
Приміщення
Дніпропетровська обл., м. Покров, вул. Центральна, 50. Оренда – приміщення будівлі гаражів загальною площею 26,90 кв.м (В)
Україна, Дніпропетровська обл., м. Покров, вул. Центральна, 50
09.07.2024
ДОВГОСТРОКОВА ОРЕНДА! Дніпропетровська обл., м. Кам’янське, просп. Героїв АТО, 1. Оренда – приміщення 5-го поверху загальною площею 720,40 кв.м (В)
21 612.00 грн
30.00 грн / м2
Приміщення
ДОВГОСТРОКОВА ОРЕНДА! Дніпропетровська обл., м. Кам’янське, просп. Героїв АТО, 1. Оренда – приміщення 5-го поверху загальною площею 720,40 кв.м (В)
Україна, Дніпропетровська обл., м. Кам’янське, просп. Героїв АТО, 1
18.03.2025
Дніпропетровська обл., м. Дніпро, пров. Вільний, 12.Оренда – приміщення 1-го поверху площею 61,50 кв.м (В)
1 845.00 грн
30.00 грн / м2
Приміщення
Дніпропетровська обл., м. Дніпро, пров. Вільний, 12.Оренда – приміщення 1-го поверху площею 61,50 кв.м (В)
Україна, Дніпропетровська обл., м. Дніпро, пров. Вільний, 12