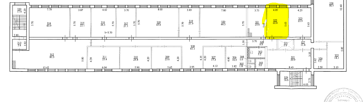
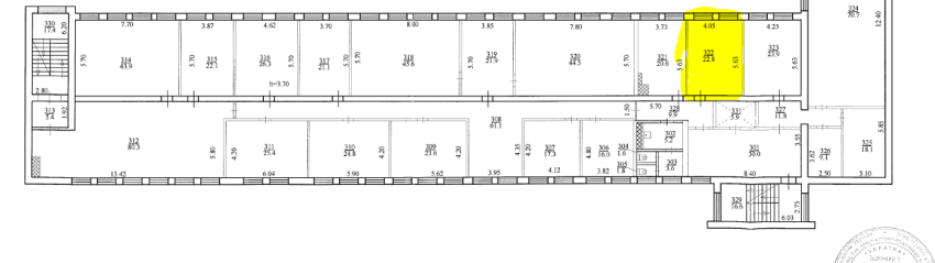
Дніпропетровська обл., м. Кам’янське, пр. Героїв АТО, 1. Оренда – приміщення 3-го поверху площею 22,80 кв.м. (В)

273.60 грн
12.00 грн / м2
Україна, Дніпропетровська обл., м. Кам’янське, пр. Героїв АТО, 1
Перейти до аукціону на сайті
  • Інформація
  • Опис
  • Документи
Дата оголошення пропозиції:
07 січня 2025
Площа:
22.80 м2
Тип об’єкта:
Приміщення
Тип аукціону:
Англійський аукціон
Статус аукціону:
Аукціон не відбувся
Тип угоди:
Оренда
Розмір мінімального кроку:
20.00 ₴
Розмір гарантійного внеску:
164.16 ₴
Початок прийому пропозицій:
07.01.2025 11:08:15
Завершення прийому пропозицій:
06.02.2025 20:00:00
Проведення аукціону:
07.02.2025 12:50:00
Лот:
CLE001-UA-20250107-71399
№ лоту (УТК):
UTK121222_07P
Лот виставляється на торги (раз):
10
Стислий опис майна:
Пропонується до оренди приміщення 3-го поверху площею 22,80 кв.м. Розташування - будівля АТС 6,9 (літ. А-5, № 322) знаходиться в центральному районі міста. Поруч знаходяться відділення банку, високий автомобільний і пішохідний потоки. Стан приміщення задовільний, підходить для офісу, Ідеальне місце під розвиток будь-якого бізнесу. Можливість передачі приміщень в суборенду. Характеристики: Кількість поверхів – 5 Загальна площа – 3830,20 кв.м. Площа запропонована до оренди – 22,80 кв.м. Електропостачання, водопостачання, охорона та обслуговування пожежної сигналізації, вивіз сміття, прибирання території; Земельна ділянка – 0, 2793 га (договір оренди)
Адреса місцезнаходження майна:
Україна, Дніпропетровська обл., м. Кам’янське, пр. Героїв АТО, 1
Схожі пропозиції
21.11.2025
Дніпропетровська обл., м. Дніпро, пр. Б. Хмельницького, 28А. Оренда – приміщення 2-го поверху площею 266,90 кв.м.(В)
13 011.38 грн
48.75 грн / м2
Приміщення
Дніпропетровська обл., м. Дніпро, пр. Б. Хмельницького, 28А. Оренда – приміщення 2-го поверху площею 266,90 кв.м.(В)
Україна, Дніпропетровська обл., м. Дніпро, пр. Б. Хмельницького, 28А
09.04.2024
Дніпропетровська обл., м. Дніпро, пр. Пушкіна, 75а;    Оренда – приміщення 1-го поверху площею 11,5 кв.м. (В)
1 585.39 грн
137.86 грн / м2
Приміщення
Дніпропетровська обл., м. Дніпро, пр. Пушкіна, 75а; Оренда – приміщення 1-го поверху площею 11,5 кв.м. (В)
Україна, Дніпропетровська обл., Дніпро, пр. Пушкіна, 75а
11.04.2023
Дніпропетровська обл., м. Жовті Води, вул. Свободи, 39. Оренда – приміщення 1-го поверху площею 30,0 кв.м. (В)
789.00 грн
26.30 грн / м2
Приміщення
Дніпропетровська обл., м. Жовті Води, вул. Свободи, 39. Оренда – приміщення 1-го поверху площею 30,0 кв.м. (В)
Україна, Дніпропетровська обл., Жовті Води, бульвар Свободи, 39
14.12.2023
Дніпропетровська обл., м. Кривий Ріг, вул. Водоп`янова, 1а;  Оренда – приміщення 3-го поверху, площею 812,3 кв.м. (В)
7 310.70 грн
9.00 грн / м2
Приміщення
Дніпропетровська обл., м. Кривий Ріг, вул. Водоп`янова, 1а; Оренда – приміщення 3-го поверху, площею 812,3 кв.м. (В)
Україна, Дніпропетровська обл., Кривий Ріг, вулиця Водоп'янова, 1а