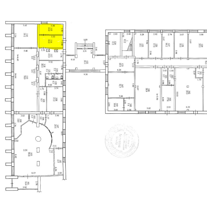
Дніпропетровська обл., м. Жовті Води, вул. Свободи, 39. Оренда – приміщення 1-го поверху площею 30,0 кв.м. (В)

789.00 грн
26.30 грн / м2
Україна, Дніпропетровська обл., Жовті Води, бульвар Свободи, 39
Перейти до аукціону на сайті
  • Інформація
  • Опис
  • Документи
Дата оголошення пропозиції:
08 березня 2023
Площа:
30.00 м2
Тип об’єкта:
Приміщення
Тип аукціону:
Англійський аукціон
Статус аукціону:
Аукціон не відбувся
Тип угоди:
Оренда
Розмір мінімального кроку:
50.00 ₴
Розмір гарантійного внеску:
473.40 ₴
Початок прийому пропозицій:
08.03.2023 10:46:10
Завершення прийому пропозицій:
10.04.2023 20:00:00
Проведення аукціону:
11.04.2023 12:30:00
Лот:
CLE001-UA-20230308-93344
№ лоту (УТК):
UTK201022_05T
Лот виставляється на торги (раз):
5
Стислий опис майна:
Пропонується до оренди приміщення 1-го поверху з окремим входом площею 30,0 кв.м. Розташування – 3-поверхова будівля (літ.А-Б-В, приміщ.№№115, 116) знаходиться в центральному районі міста. Поруч знаходяться відділення банку, високий автомобільний і пішохідний потоки. Стан приміщення задовільний, підходить для офісу, Ідеальне місце під розвиток будь-якого бізнесу. Можливість передачі приміщень в суборенду. Характеристики: - Кількість поверхів – 3 - Загальна площа – 3622,5 кв.м. - Площа запропонована до оренди – 30,0 кв.м. - Електропостачання, водопостачання, охорона та обслуговування пожежної сигналізації, вивіз сміття, прибирання території; - Земельна ділянка – 0, 603 га (договір оренди)
Адреса місцезнаходження майна:
Україна, Дніпропетровська обл., Жовті Води, бульвар Свободи, 39
Схожі пропозиції
м. Дніпро, проспект Пушкіна, 75А. Оренда – приміщення технічного поверху, площею 66,80 кв.м. (В)
2 513.02 грн
37.62 грн / м2
Приміщення
м. Дніпро, проспект Пушкіна, 75А. Оренда – приміщення технічного поверху, площею 66,80 кв.м. (В)
Україна, Дніпропетровська обл., м. Дніпро, проспект Пушкіна, 75А
28.10.2022
Дніпропетровська обл., м. Кривий Ріг, вул. Дніпропетровське шосе, 48. Оренда – приміщення 3-го поверху, площею 403,4 кв.м. (В)
10 036.59 грн
24.88 грн / м2
Приміщення
Дніпропетровська обл., м. Кривий Ріг, вул. Дніпропетровське шосе, 48. Оренда – приміщення 3-го поверху, площею 403,4 кв.м. (В)
Україна, Дніпропетровська обл., Кривий Ріг, вулиця Дніпровське шосе, 48
14.12.2023
Дніпропетровська обл., м. Кривий Ріг, вул. Дніпропетровське шосе, 48;  Оренда – приміщення 4-го поверху, площею 640,0 кв.м. (В)
5 254.40 грн
8.21 грн / м2
Приміщення
Дніпропетровська обл., м. Кривий Ріг, вул. Дніпропетровське шосе, 48; Оренда – приміщення 4-го поверху, площею 640,0 кв.м. (В)
Україна, Дніпропетровська обл., Кривий Ріг, вулиця Дніпровське шосе, 48
18.07.2025
Дніпропетровська обл., м. Дніпро, вул. Січових Стрільців, 10. Оренда – приміщення 1-го поверху площею 214,10 кв.м (В)
10 705.00 грн
50.00 грн / м2
Приміщення
Дніпропетровська обл., м. Дніпро, вул. Січових Стрільців, 10. Оренда – приміщення 1-го поверху площею 214,10 кв.м (В)
Україна, Дніпропетровська обл., м. Дніпро, вул. Січових Стрільців, 10
Переглянуті пропозиції
15.09.2023
Івано-Франківська обл., Івано-Франківський р-н, с.Росільна, вул. Шевченка, 145а. Оренда – Нежитлове приміщення І-го поверху, площею 33,4 м.кв. (В)
344.00 грн
10.30 грн / м2
Приміщення
Івано-Франківська обл., Івано-Франківський р-н, с.Росільна, вул. Шевченка, 145а. Оренда – Нежитлове приміщення І-го поверху, площею 33,4 м.кв. (В)
Україна, Івано-Франківська обл., Івано-Франківський р-н, с.Росільна, вул. Шевченка, 145а
08.11.2024
ДОВГОСТРОКОВА ОРЕНДА! Львівська обл., м. Дрогобич, вул. Самбірська, 81. Оренда – майновий комплекс площею 1118,80 кв. м. (В)
51 017.28 грн
45.60 грн / м2
Комплекс
ДОВГОСТРОКОВА ОРЕНДА! Львівська обл., м. Дрогобич, вул. Самбірська, 81. Оренда – майновий комплекс площею 1118,80 кв. м. (В)
Україна, Львівська обл., м. Дрогобич, вул. Самбірська, 81
06.10.2023
Дніпропетровська обл., м. Дніпро, пр. Пушкіна, 75а. Оренда – приміщення 1-го поверху площею 11,5 кв.м. (В)
1 585.39 грн
137.86 грн / м2
Приміщення
Дніпропетровська обл., м. Дніпро, пр. Пушкіна, 75а. Оренда – приміщення 1-го поверху площею 11,5 кв.м. (В)
Україна, Дніпропетровська обл., Дніпро, вулиця Пушкіна, 75
21.01.2025
м.Харків, Салтівське шосе,2. Оренда – приміщення 1-го поверху, площею 41,00 кв.м (В)
2 204.98 грн
53.78 грн / м2
Приміщення
м.Харків, Салтівське шосе,2. Оренда – приміщення 1-го поверху, площею 41,00 кв.м (В)
Україна, Харківська обл., м. Харків, Салтівське шосе,2