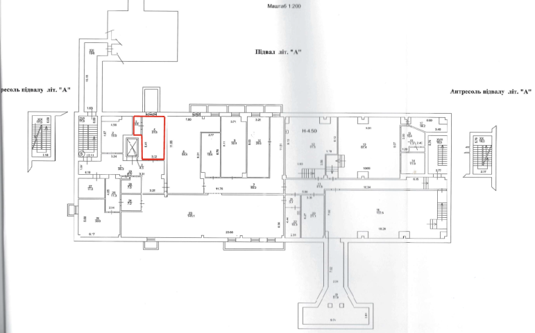
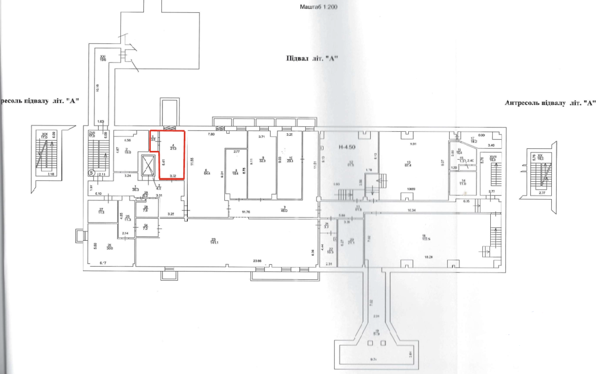
м. Київ, вул. Джона Маккейна, 40, літ. «А» (Печерський р-н). Оренда – група приміщень у підвалі, площею 24,80 кв.м (В)

4 192.69 грн
169.06 грн / м2
Україна, м.Київ, Київ, Адреса: 01042, м. Київ, вул. Джона Маккейна, 40, літ. «А» (Печерський р-н)
Перейти до аукціону на сайті
  • Інформація
  • Опис
  • Документи
Дата оголошення пропозиції:
08 серпня 2025
Площа:
24.80 м2
Тип об’єкта:
Приміщення
Тип аукціону:
Англійський аукціон
Статус аукціону:
Аукціон не відбувся
Тип угоди:
Оренда
Розмір мінімального кроку:
350.00 ₴
Розмір гарантійного внеску:
2 515.61 ₴
Початок прийому пропозицій:
08.08.2025 04:55:12
Завершення прийому пропозицій:
08.09.2025 20:00:00
Проведення аукціону:
09.09.2025 12:40:00
Лот:
CLE001-UA-20250808-59315
№ лоту (УТК):
UTK200225_33U
Лот виставляється на торги (раз):
5
Стислий опис майна:
До оренди пропонується група приміщень у підвалі, площею 24,80 кв. м. Будівля знаходиться в Печерському районі міста Києва, місцевість Саперне поле, в пішому доступі до ст. м. Дружби Народів (до 5 хв.) та ст. м. Либідська, ст. м. Печерська (до 10 хв.), у районі розвинена інфраструктура й відмінна транспортна розв’язка, поруч торгові центри, супермаркети, парки.. Вхід з вул. Джона Маккейна. Характеристики • кількість поверхів – 4; • загальна площа – 4 778,70 кв. м; • площа запропонована до оренди – 24,80 кв.м; • опалення централізоване (міське); • водопостачання, каналізація, сан. вузол – відсутні на поверсі; • земельна ділянка – 0,465 га (договір оренди)
Адреса місцезнаходження майна:
Україна, м.Київ, Київ, Адреса: 01042, м. Київ, вул. Джона Маккейна, 40, літ. «А» (Печерський р-н)
Схожі пропозиції
25.10.2022
м. Київ, вул. Маршала Малиновського, 19а. Оренда – приміщення 1-го поверху, площею 91,30 кв.м. (В)
22 402.28 грн
245.37 грн / м2
Приміщення
м. Київ, вул. Маршала Малиновського, 19а. Оренда – приміщення 1-го поверху, площею 91,30 кв.м. (В)
Україна, м.Київ, м. Київ, вулиця Маршала Малиновського, 19А
ДОВГОСТРОКОВА ОРЕНДА! М. КИЇВ, ВУЛ. АНТОНОВИЧА 40, ОРЕНДА - ПРИМІЩЕННЯ 3-ГО ПОВЕРХУ, ПЛОЩЕЮ 740.4 КВ.М. (В)
266 544.00 грн
360.00 грн / м2
Приміщення
ДОВГОСТРОКОВА ОРЕНДА! М. КИЇВ, ВУЛ. АНТОНОВИЧА 40, ОРЕНДА - ПРИМІЩЕННЯ 3-ГО ПОВЕРХУ, ПЛОЩЕЮ 740.4 КВ.М. (В)
Україна, м.Київ, Київ, вул. Антоновича, 40
03.03.2023
м. Київ, вул. Ореста Васкула (Феодори Пушиної), 27-А. Оренда – приміщення 3-го поверху, площею 34,5 кв.м. (В)
8 694.00 грн
252.00 грн / м2
Приміщення
м. Київ, вул. Ореста Васкула (Феодори Пушиної), 27-А. Оренда – приміщення 3-го поверху, площею 34,5 кв.м. (В)
Україна, м.Київ, м. Київ, вулиця Ореста Васкула, 27
м. Київ, вул. Антоновича, 40. Оренда - приміщення 6-го поверху площею 758,8 кв.м. (В)
139 862.02 грн
184.32 грн / м2
Приміщення
м. Київ, вул. Антоновича, 40. Оренда - приміщення 6-го поверху площею 758,8 кв.м. (В)
Україна, м.Київ, місто Київ, вул. Антоновича, 40
Переглянуті пропозиції
03.09.2025
Дніпропетровська обл., м. Кам’янське, просп. Героїв АТО, 1. Оренда – приміщення 3-го поверху, площею 26,30 кв.м. (В)
789.00 грн
30.00 грн / м2
Приміщення
Дніпропетровська обл., м. Кам’янське, просп. Героїв АТО, 1. Оренда – приміщення 3-го поверху, площею 26,30 кв.м. (В)
Україна, Дніпропетровська обл., м. Кам’янське, просп. Героїв АТО, 1
07.05.2025
м. Київ, бульвар Академіка Вернадського, 79-А (В). Оренда – приміщення 2-го поверху, загальною площею – 37,70 кв.м.
5 460.47 грн
144.84 грн / м2
Приміщення
м. Київ, бульвар Академіка Вернадського, 79-А (В). Оренда – приміщення 2-го поверху, загальною площею – 37,70 кв.м.
Україна, м.Київ, Київ, бульвар Академіка Вернадського, 79
07.03.2023
Дніпропетровська обл., м. Кам’янське, вул. Героїв АТО, 1. Оренда – приміщення 3-го поверху площею 17,3 кв.м. (В)
683.00 грн
39.48 грн / м2
Приміщення
Дніпропетровська обл., м. Кам’янське, вул. Героїв АТО, 1. Оренда – приміщення 3-го поверху площею 17,3 кв.м. (В)
Україна, Дніпропетровська обл., Кам’янське, Героїв АТО, 1
Дніпропетровська обл., м. Жовті Води, бул. Свободи, 39. Оренда – приміщення другого поверху, загальною площею 58,80 кв.м. (В)
655.03 грн
11.14 грн / м2
Приміщення
Дніпропетровська обл., м. Жовті Води, бул. Свободи, 39. Оренда – приміщення другого поверху, загальною площею 58,80 кв.м. (В)
Україна, Дніпропетровська обл., м. Жовті Води, бул. Свободи, 39