м. Київ, вул. Маршала Малиновського, 19а. Оренда – приміщення 1-го поверху, площею 91,30 кв.м. (В)

22 402.28 грн
245.37 грн / м2
Україна, м.Київ, м. Київ, вулиця Маршала Малиновського, 19А
Перейти до аукціону на сайті
  • Інформація
  • Опис
  • Документи
Дата оголошення пропозиції:
21 вересня 2022
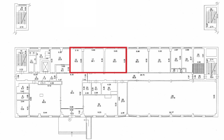
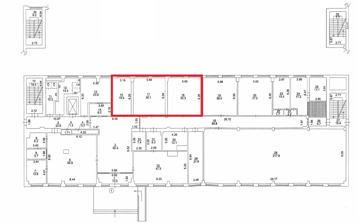
Площа:
91.30 м2
Тип об’єкта:
Приміщення
Тип аукціону:
Англійський аукціон
Статус аукціону:
Аукціон не відбувся
Тип угоди:
Оренда
Розмір мінімального кроку:
225.00 ₴
Розмір гарантійного внеску:
13 441.37 ₴
Початок прийому пропозицій:
21.09.2022 14:00:00
Завершення прийому пропозицій:
24.10.2022 20:00:00
Проведення аукціону:
25.10.2022 11:05:00
Лот:
CLE001-UA-20220921-59043
№ лоту (УТК):
UTK150722_01T
Лот виставляється на торги (раз):
3
Стислий опис майна:
Пропонуються до оренди приміщення 1-го поверху, площею 91,30 кв.м. Будівля знаходиться в Оболонському районі міста Києва, житловий масив Оболонь, розвинена інфраструктура, високі автомобільний та пішохідний потоки. 5 хв. пішки від ст. м. «Оболонь». Приміщення з ремонтом. Характеристики • загальна площа будівлі – 4653,30 кв.м.; • сан. вузол, каналізація, водопостачання – присутне; • кількість поверхів – 4; • енергетична потужність – до 10 кВт; • опалення централізоване (міське); • площа земельної ділянки – 0,4727 га*; *земельна ділянка не є предметом оренди;
Адреса місцезнаходження майна:
Україна, м.Київ, м. Київ, вулиця Маршала Малиновського, 19А
Схожі пропозиції
12.08.2022
м. Київ, вул. Ісаакяна, 3. Оренда – Приміщення 1-го поверху площею 57,90 кв.м. (В)
10 961.63 грн
189.32 грн / м2
Приміщення
м. Київ, вул. Ісаакяна, 3. Оренда – Приміщення 1-го поверху площею 57,90 кв.м. (В)
Україна, м.Київ, Київ, вул. Ісаакяна, 3
10.12.2024
ДОВГОСТРОКОВА ОРЕНДА!  м. Київ, вул. Будівельників, 8-Б;  Оренда – приміщення підвалу площею – 493,70 кв.м (В)
56 064.57 грн
113.56 грн / м2
Приміщення
ДОВГОСТРОКОВА ОРЕНДА! м. Київ, вул. Будівельників, 8-Б; Оренда – приміщення підвалу площею – 493,70 кв.м (В)
Україна, м.Київ, Київ, вулиця Будівельників, 8-Б
13.05.2025
м. Київ, вул. Курінного Петра, 2Б, літ. «А» (Святошинський р-н). Оренда – приміщення на 1-му поверсі, площею – 160,70 кв.м (В)
20 593.71 грн
128.15 грн / м2
Приміщення
м. Київ, вул. Курінного Петра, 2Б, літ. «А» (Святошинський р-н). Оренда – приміщення на 1-му поверсі, площею – 160,70 кв.м (В)
Україна, м.Київ, Київ, 03148, м. Київ, вул. Курінного Петра, 2Б (Святошинський р-н)
21.10.2025
м. Київ, пр-т. Академіка Глушкова, 38 (Голосіївський р-н). Оренда – приміщення 1-го поверху, загальною площею – 143,60 кв. м.  (В)
15 862.06 грн
110.46 грн / м2
Приміщення
м. Київ, пр-т. Академіка Глушкова, 38 (Голосіївський р-н). Оренда – приміщення 1-го поверху, загальною площею – 143,60 кв. м. (В)
Україна, м.Київ, Київ, 03187, м. Київ, пр-т. Академіка Глушкова, 38 (Голосіївський р-н)