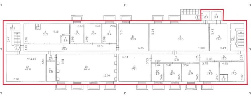
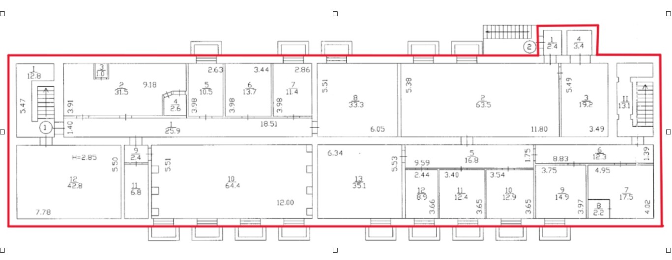
ДОВГОСТРОКОВА ОРЕНДА! м. Київ, вул. Будівельників, 8-Б; Оренда – приміщення підвалу площею – 493,70 кв.м (В)

56 064.57 грн
113.56 грн / м2
Україна, м.Київ, Київ, вулиця Будівельників, 8-Б
Перейти до аукціону на сайті
  • Інформація
  • Опис
  • Документи
Дата оголошення пропозиції:
08 листопада 2024
Площа:
493.70 м2
Тип об’єкта:
Приміщення
Тип аукціону:
Англійський аукціон
Статус аукціону:
Аукціон не відбувся
Тип угоди:
Оренда
Розмір мінімального кроку:
1 500.00 ₴
Розмір гарантійного внеску:
33 638.74 ₴
Початок прийому пропозицій:
08.11.2024 18:17:56
Завершення прийому пропозицій:
09.12.2024 20:00:00
Проведення аукціону:
10.12.2024 12:15:00
Лот:
CLE001-UA-20241108-36993
№ лоту (УТК):
UTK081124_02T
Лот виставляється на торги (раз):
1
Стислий опис майна:
Пропонуються до оренди приміщення підвалу площею – 493,70 кв.м. Будівля знаходиться у Дніпровському районі міста Києва, місцевість «Соцмісто». Поруч розвинена інфраструктура, зупинки маршрутного транспорту, супермаркети, кафе, аптеки, фінансові заклади, в’їзд через майданчик з парко-місцями. Окремий вхід. Доступ 24/7. Характеристики • кількість поверхів – 3; • опалення централізоване (міське); • земельна ділянка – 0,4851 га; • загальна площа будівлі – 2 022,70 м2; • сан. вузол, каналізація, водопостачання – відсутні; • енерго потужність – 30 кВт.
Адреса місцезнаходження майна:
Україна, м.Київ, Київ, вулиця Будівельників, 8-Б
Схожі пропозиції
31.01.2023
м. Київ, вул. Ореста Васкула (Феодори Пушиної), 27. Оренда – приміщення 3-го поверху, площею 7,5 кв.м (В)
2 223.60 грн
296.48 грн / м2
Приміщення
м. Київ, вул. Ореста Васкула (Феодори Пушиної), 27. Оренда – приміщення 3-го поверху, площею 7,5 кв.м (В)
Україна, м.Київ, м. Київ, вул. Ореста Васкула (Феодори Пушиної), 27
м. Київ, вул. Будівельників, 8-Б, оренда – приміщення підвалу, площею 452,60 кв.м. (В)
20 910.12 грн
46.20 грн / м2
Приміщення
м. Київ, вул. Будівельників, 8-Б, оренда – приміщення підвалу, площею 452,60 кв.м. (В)
Україна, м.Київ, Київ, вул. Будівельників, 8-Б
28.05.2025
м. Київ, вул. Петра Курінного, 2-Б. Оренда – 3-й поверх, площею - 614,80 кв. м. (В)
46 343.62 грн
75.38 грн / м2
Приміщення
м. Київ, вул. Петра Курінного, 2-Б. Оренда – 3-й поверх, площею - 614,80 кв. м. (В)
Україна, м.Київ, Київ, вулиця Петра Курінного, 2б
07.05.2025
м. Київ, вул. Миколи Голего, 8. Оренда – приміщення 1-го поверху площею 30,90 кв.м (В)
5 096.96 грн
164.95 грн / м2
Приміщення
м. Київ, вул. Миколи Голего, 8. Оренда – приміщення 1-го поверху площею 30,90 кв.м (В)
Україна, м.Київ, Київ, вулиця Миколи Голего, 8