м. Київ, вул. Ісаакяна, 3. Оренда – Приміщення 1-го поверху площею 57,90 кв.м. (В)

10 961.63 грн
189.32 грн / м2
Україна, м.Київ, Київ, вул. Ісаакяна, 3
Перейти до аукціону на сайті
  • Інформація
  • Опис
  • Документи
Дата оголошення пропозиції:
14 липня 2022
Площа:
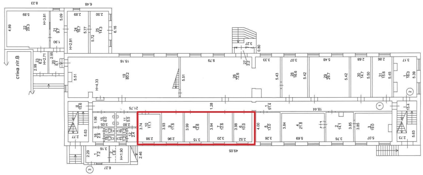
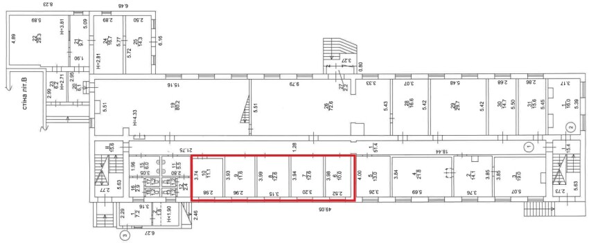
57.90 м2
Тип об’єкта:
Приміщення
Тип аукціону:
Англійський аукціон
Статус аукціону:
Аукціон не відбувся
Тип угоди:
Оренда
Розмір мінімального кроку:
120.00 ₴
Розмір гарантійного внеску:
6 576.98 ₴
Початок прийому пропозицій:
14.07.2022 14:38:33
Завершення прийому пропозицій:
11.08.2022 20:00:00
Проведення аукціону:
12.08.2022 13:09:45
Лот:
UA-PS-2022-07-14-000041-1
№ лоту (УТК):
UTK040422_03T
Лот виставляється на торги (раз):
4
Стислий опис майна:
Пропонується до оренди офісні приміщення першого поверху, площею 57,90 кв.м. Розташування будівлі у Шевченківському районі міста Києва, місцевість Шулявка. Поруч розвинена інфраструктура, зупинки швидкісного трамваю, маршрутного та громадського транспорту, магазини, кафе, аптеки. Вхід з двору, через прохідну. Доступ вільний 24/7. Характеристики Загальна площа будівлі – 2069,60 м2; Площа запропонована до оренди – 57,90 м2; Опалення – міське (централізоване) Кількість поверхів – 3; Загальна площа земельної ділянки – 0,2892 га; Сан. вузол, водопостачання, каналізація – присутні (на поверсі)
Адреса місцезнаходження майна:
Україна, м.Київ, Київ, вул. Ісаакяна, 3
Схожі пропозиції
08.05.2024
м. Київ, вул. Архітектора Вербицького, 3;   Оренда – приміщення 1-го та 3-го поверху площею 263,7 кв.м. (В)
25 251.91 грн
95.76 грн / м2
Приміщення
м. Київ, вул. Архітектора Вербицького, 3; Оренда – приміщення 1-го та 3-го поверху площею 263,7 кв.м. (В)
Україна, м.Київ, Київ, вул. Архітектора Вербицького, 3
26.12.2024
м. Київ, вул. Василя Макуха (Івана Шевцова), 5;   Оренда – приміщення 1-го поверху будівлі, площею 401,5 кв.м. (В)
83 720.78 грн
208.52 грн / м2
Приміщення
м. Київ, вул. Василя Макуха (Івана Шевцова), 5; Оренда – приміщення 1-го поверху будівлі, площею 401,5 кв.м. (В)
Україна, м.Київ, м. Київ, вулиця Василя Макуха (Івана Шевцова), 5
31.05.2023
ДОВГОСТРОКОВА ОРЕНДА! м. Київ, вул. Салютна, 5а, літ. «Б». Оренда – приміщення 3-го та 4-го поверхів площею 992,8 кв.м. (В)
16.08.2022
м. Київ, вул. Макіївська, 3.Оренда – приміщення 2-го поверху, площею 724,10 м2 (В)
33 453.42 грн
46.20 грн / м2
Приміщення
м. Київ, вул. Макіївська, 3.Оренда – приміщення 2-го поверху, площею 724,10 м2 (В)
Україна, м.Київ, Київ, вул. Макіївська, 3
Переглянуті пропозиції
Дніпропетровська обл., м. Дніпро, вул. Князя Ярослава Мудрого, 3. Оренда – приміщення  5-го  поверху площею 23,10 кв.м. (В)
2 494.80 грн
108.00 грн / м2
Приміщення
Дніпропетровська обл., м. Дніпро, вул. Князя Ярослава Мудрого, 3. Оренда – приміщення 5-го поверху площею 23,10 кв.м. (В)
Україна, Дніпропетровська обл., м. Дніпро, вул. Князя Ярослава Мудрого, 3
13.10.2023
Дніпропетровська обл., м. Дніпро, вул. Січових Стрільців, 10. Оренда – приміщення цокольного поверху площею 47,90 кв.м. (В)
5 006.51 грн
104.52 грн / м2
Приміщення
Дніпропетровська обл., м. Дніпро, вул. Січових Стрільців, 10. Оренда – приміщення цокольного поверху площею 47,90 кв.м. (В)
Україна, Дніпропетровська обл., м. Дніпро, вул. Січових Стрільців, 10
21.10.2025
м. Київ, пр-т. Академіка Глушкова, 38 (Голосіївський р-н). Оренда – приміщення 1-го поверху, загальною площею – 143,60 кв. м.  (В)
15 862.06 грн
110.46 грн / м2
Приміщення
м. Київ, пр-т. Академіка Глушкова, 38 (Голосіївський р-н). Оренда – приміщення 1-го поверху, загальною площею – 143,60 кв. м. (В)
Україна, м.Київ, Київ, 03187, м. Київ, пр-т. Академіка Глушкова, 38 (Голосіївський р-н)
м. Київ, Антоновича 40 Оренда приміщень 6 пов.
218 534.40 грн
288.00 грн / м2
Приміщення
м. Київ, Антоновича 40 Оренда приміщень 6 пов.
Україна, м.Київ, місто Київ, вул. Антоновича, 40