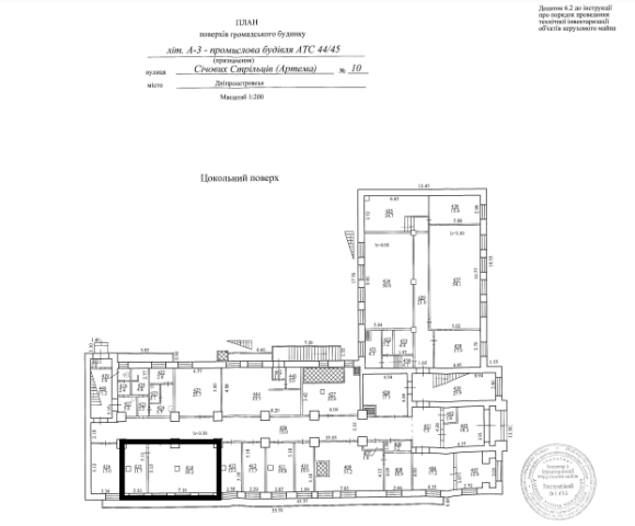
Дніпропетровська обл., м. Дніпро, вул. Січових Стрільців, 10. Оренда – приміщення цокольного поверху площею 47,90 кв.м. (В)

5 006.51 грн
104.52 грн / м2
Україна, Дніпропетровська обл., м. Дніпро, вул. Січових Стрільців, 10
Перейти до аукціону на сайті
  • Інформація
  • Опис
  • Документи
Дата оголошення пропозиції:
13 вересня 2023
Площа:
47.90 м2
Тип об’єкта:
Приміщення
Тип аукціону:
Англійський аукціон
Статус аукціону:
Аукціон не відбувся
Тип угоди:
Оренда
Розмір мінімального кроку:
100.00 ₴
Розмір гарантійного внеску:
3 003.90 ₴
Початок прийому пропозицій:
13.09.2023 12:38:55
Завершення прийому пропозицій:
12.10.2023 20:00:00
Проведення аукціону:
13.10.2023 12:50:00
Лот:
CLE001-UA-20230913-53243
№ лоту (УТК):
UTK281221_04P
Лот виставляється на торги (раз):
10
Стислий опис майна:
Пропонується до оренди приміщення цокольного поверху площею 47,90кв.м. Розташування - будівля знаходиться в центральному районі міста. Поруч знаходяться відділення банку, високий автомобільний і пішохідний потоки. Стан приміщення задовільний, підходить для офісу, студії, Ідеальне місце під розвиток будь-якого бізнесу. Можливість передачі приміщень в суборенду. Характеристики: - Кількість поверхів – 3 - Загальна площа – 2854,80 кв.м. - Площа запропонована до оренди – 47,90 кв.м. - Електропостачання, водопостачання, теплопостачання, охорона та обслуговування пожежної сигналізації, вивіз сміття, прибирання загальних місць та території; - Земельна ділянка – 0, 1636 га (договір оренди)
Адреса місцезнаходження майна:
Україна, Дніпропетровська обл., м. Дніпро, вул. Січових Стрільців, 10
Схожі пропозиції
23.01.2024
Дніпропетровська обл., м. Синельникове, вул. Богми, 4;  Оренда – приміщення 2-го поверху, площею 213,5 кв.м. (В)
2 307.94 грн
10.81 грн / м2
Приміщення
Дніпропетровська обл., м. Синельникове, вул. Богми, 4; Оренда – приміщення 2-го поверху, площею 213,5 кв.м. (В)
Україна, Дніпропетровська обл., м. Синельникове, вулиця Богми, 4
25.04.2025
Дніпропетровська обл., м. Кам’янське, просп. Героїв АТО, 1. Оренда – приміщення 2-го поверху загальною площею 161,0 кв.м (В)
3 381.00 грн
21.00 грн / м2
Приміщення
Дніпропетровська обл., м. Кам’янське, просп. Героїв АТО, 1. Оренда – приміщення 2-го поверху загальною площею 161,0 кв.м (В)
Україна, Дніпропетровська обл., м. Кам’янське, просп. Героїв АТО, 1
14.02.2023
Дніпропетровська обл., м. Кривий Ріг, вул. Головка Адмірала, 71. Оренда – приміщення 4-го поверху, площею 580,5 кв.м. (В)
16 997.04 грн
29.28 грн / м2
Приміщення
Дніпропетровська обл., м. Кривий Ріг, вул. Головка Адмірала, 71. Оренда – приміщення 4-го поверху, площею 580,5 кв.м. (В)
Україна, Дніпропетровська обл., Кривий Ріг, вулиця Адмірала Головка, 71
Дніпропетровська обл., м. Дніпро, проспект Героїв, 14. Оренда – приміщення  4-го  поверху площею 644,10 кв.м. (В)
40 463.52 грн
62.82 грн / м2
Приміщення
Дніпропетровська обл., м. Дніпро, проспект Героїв, 14. Оренда – приміщення 4-го поверху площею 644,10 кв.м. (В)
Україна, Дніпропетровська обл., м. Дніпро, проспект Героїв, 14
Переглянуті пропозиції
21.10.2025
м. Київ, пр-т. Академіка Глушкова, 38 (Голосіївський р-н). Оренда – приміщення 1-го поверху, загальною площею – 143,60 кв. м.  (В)
15 862.06 грн
110.46 грн / м2
Приміщення
м. Київ, пр-т. Академіка Глушкова, 38 (Голосіївський р-н). Оренда – приміщення 1-го поверху, загальною площею – 143,60 кв. м. (В)
Україна, м.Київ, Київ, 03187, м. Київ, пр-т. Академіка Глушкова, 38 (Голосіївський р-н)
м. Київ, Антоновича 40 Оренда приміщень 6 пов.
218 534.40 грн
288.00 грн / м2
Приміщення
м. Київ, Антоновича 40 Оренда приміщень 6 пов.
Україна, м.Київ, місто Київ, вул. Антоновича, 40
30.04.2025
м. Київ, вул. Ореста Васкула, 27 (Святошинський р-н). Оренда – приміщення на 3-му поверсі, загальною площею - 521,10 м.кв. (В)
83 626.13 грн
160.48 грн / м2
Приміщення
м. Київ, вул. Ореста Васкула, 27 (Святошинський р-н). Оренда – приміщення на 3-му поверсі, загальною площею - 521,10 м.кв. (В)
Україна, м.Київ, Київ, вулиця Ореста Васкула, 27
28.05.2025
м. Київ, вул. Наталії Ужвій 1 (Подільський р-н). Оренда – приміщення 1-го поверху, загальною площею – 65,60 м. кв. (В)
7 293.41 грн
111.18 грн / м2
Приміщення
м. Київ, вул. Наталії Ужвій 1 (Подільський р-н). Оренда – приміщення 1-го поверху, загальною площею – 65,60 м. кв. (В)
Україна, м.Київ, Київ, 04108, м. Київ, вул. Наталії Ужвій 1