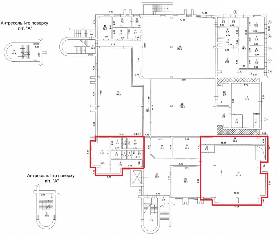
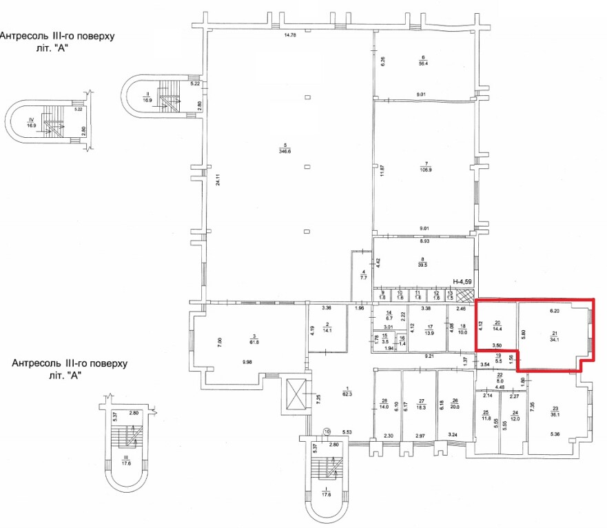
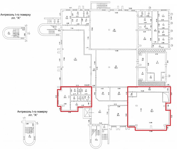
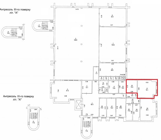
м. Київ, вул. Архітектора Вербицького, 3; Оренда – приміщення 1-го та 3-го поверху площею 263,7 кв.м. (В)

25 251.91 грн
95.76 грн / м2
Україна, м.Київ, Київ, вул. Архітектора Вербицького, 3
Перейти до аукціону на сайті
  • Інформація
  • Опис
  • Документи
Дата оголошення пропозиції:
06 квітня 2024
Площа:
263.70 м2
Тип об’єкта:
Приміщення
Тип аукціону:
Англійський аукціон
Статус аукціону:
Аукціон не відбувся
Тип угоди:
Оренда
Розмір мінімального кроку:
260.00 ₴
Розмір гарантійного внеску:
15 151.15 ₴
Початок прийому пропозицій:
06.04.2024 10:57:57
Завершення прийому пропозицій:
07.05.2024 20:00:00
Проведення аукціону:
08.05.2024 12:25:00
Лот:
CLE001-UA-20240406-49916
№ лоту (УТК):
UTK181122_01T
Лот виставляється на торги (раз):
10
Стислий опис майна:
Пропонується до оренди приміщення 1-го та 3-го поверху площею 263,7 кв.м . Будівля знаходиться в Дарницькому районі міста Києва, житловий масив Харківський. Зупинки маршрутного транспорту, супермаркети, торгово-розважальні центри. Найближчі станції метро «Харківська», «Вирлиця». Вхід з двору. Характеристики: • загальна площа будівлі – 4804,7 м2 • кількість поверхів – 5; • опалення централізоване (міське); • земельна ділянка – 0,5530 га; • каналізація, водозабезпечення, сан. вузол – присутні
Адреса місцезнаходження майна:
Україна, м.Київ, Київ, вул. Архітектора Вербицького, 3
Схожі пропозиції
23.07.2024
м. Київ, вул. Героїв Севастополя, 39/8, літ.«В»;   Оренда – приміщення 1-го поверху блоку зовнішніх споруд, площею 80,60 кв.м. (В)
15 771.00 грн
195.67 грн / м2
Приміщення
м. Київ, вул. Героїв Севастополя, 39/8, літ.«В»; Оренда – приміщення 1-го поверху блоку зовнішніх споруд, площею 80,60 кв.м. (В)
Україна, м.Київ, Київ, вул. Героїв Севастополя, 39/8(В)
м. Київ, вул. Макіївська, 3.Оренда – приміщення 2-го поверху, площею 724,10 м2 (В)
77 761.10 грн
107.39 грн / м2
Приміщення
м. Київ, вул. Макіївська, 3.Оренда – приміщення 2-го поверху, площею 724,10 м2 (В)
Україна, м.Київ, Київ, вул. Макіївська, 3
25.07.2025
м. Київ, вул. Салютна, 5-А, літ. «Б» (В). Оренда – приміщення 3-го та 4-го поверху, площею 992,80 м2
59 568.00 грн
60.00 грн / м2
Приміщення
м. Київ, вул. Салютна, 5-А, літ. «Б» (В). Оренда – приміщення 3-го та 4-го поверху, площею 992,80 м2
Україна, м.Київ, Київ, м. Київ, вул. Салютна, 5-А, літ. «Б» (В)
30.04.2025
м. Київ, пр-т. Академіка Глушкова, 38 (Голосіївський р-н). Оренда – приміщення 1-го поверху, загальною площею – 143,60 кв. м.  (В)
22 471.97 грн
156.49 грн / м2
Приміщення
м. Київ, пр-т. Академіка Глушкова, 38 (Голосіївський р-н). Оренда – приміщення 1-го поверху, загальною площею – 143,60 кв. м. (В)
Україна, м.Київ, Київ, 03187, м. Київ, пр-т. Академіка Глушкова, 38 (Голосіївський р-н)