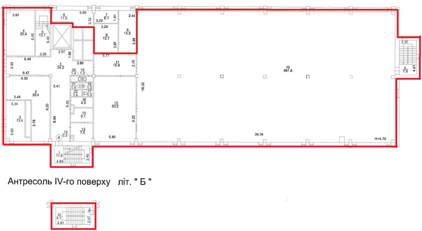
ДОВГОСТРОКОВА ОРЕНДА! м. Київ, вул. Салютна, 5а, літ. «Б». Оренда – приміщення 3-го та 4-го поверхів площею 992,8 кв.м. (В)

45 867.36 грн
46.20 грн / м2
Україна, м.Київ, Київ, вулиця Салютна, 5А
Перейти до аукціону на сайті
  • Інформація
  • Опис
  • Документи
Дата оголошення пропозиції:
27 квітня 2023
Площа:
992.80 м2
Тип об’єкта:
Приміщення
Тип аукціону:
Англійський аукціон
Статус аукціону:
Аукціон не відбувся
Тип угоди:
Оренда
Розмір мінімального кроку:
500.00 ₴
Розмір гарантійного внеску:
27 520.42 ₴
Початок прийому пропозицій:
27.04.2023 09:16:45
Завершення прийому пропозицій:
30.05.2023 20:00:00
Проведення аукціону:
31.05.2023 12:00:00
Лот:
CLE001-UA-20230427-73675
№ лоту (УТК):
UTK040422_06T
Лот виставляється на торги (раз):
10
Стислий опис майна:
Пропонуються до оренди приміщення 3-го та 4-го поверху, літ. «Б», площею 992,8 м2 . Будівля розташована в Шевченківському районі міста Києва, місцевість Нивки. Поруч розвинена інфраструктура, зупинки маршрутного транспорту, супермаркети, бізнес-центри, фінансові заклади, 5 хв. від ст. м. «Нивки». Вхід з двору. Доступ 24/7. Характеристики • кількість поверхів – 4; • сан. вузол, каналізація – присутні; • площа будівлі – літ. «Б» - 4892,1 м2; • опалення централізоване (міське); • земельна ділянка – 0,6317 га;
Адреса місцезнаходження майна:
Україна, м.Київ, Київ, вулиця Салютна, 5А
Схожі пропозиції
26.08.2025
м. Київ, бульвар Академіка Вернадського, 79-А (В). Оренда – приміщення 2-го поверху, загальною площею – 37,70 кв.м.
2 262.00 грн
60.00 грн / м2
Приміщення
м. Київ, бульвар Академіка Вернадського, 79-А (В). Оренда – приміщення 2-го поверху, загальною площею – 37,70 кв.м.
Україна, м.Київ, Київ, бульвар Академіка Вернадського, 79А
08.05.2024
ДОВГОСТРОКОВА ОРЕНДА! м. Київ, вул. Героїв Севастополя, 39/8 літ. «Е»;  Оренда – приміщення 2-го та 4-го поверхів, площею 1751,8 кв.м. (В)
239 944.05 грн
136.97 грн / м2
Приміщення
ДОВГОСТРОКОВА ОРЕНДА! м. Київ, вул. Героїв Севастополя, 39/8 літ. «Е»; Оренда – приміщення 2-го та 4-го поверхів, площею 1751,8 кв.м. (В)
Україна, м.Київ, Київ, вул. Героїв Севастополя, 39/8(Е)
26.08.2025
м. Київ, вул. Миколи Голего, 8. Оренда – приміщення 1-го поверху площею 30,90 кв.м (В)
1 854.00 грн
60.00 грн / м2
Приміщення
м. Київ, вул. Миколи Голего, 8. Оренда – приміщення 1-го поверху площею 30,90 кв.м (В)
Україна, м.Київ, Київ, вулиця Миколи Голего, 8
09.07.2025
м. Київ, вул. Наталії Ужвій 1 (Подільський р-н). Оренда – приміщення 1-го поверху, загальною площею – 71,20 м. кв. (В)
6 519.07 грн
91.56 грн / м2
Приміщення
м. Київ, вул. Наталії Ужвій 1 (Подільський р-н). Оренда – приміщення 1-го поверху, загальною площею – 71,20 м. кв. (В)
Україна, м.Київ, Київ, 04108, м. Київ, вул. Наталії Ужвій 1