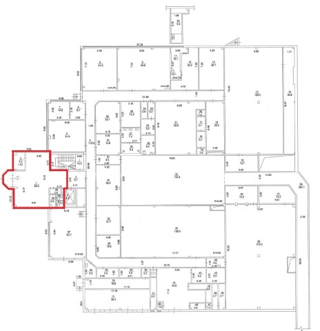
м. Київ, вул. Наталії Ужвій 1 (Подільський р-н). Оренда – приміщення 1-го поверху, загальною площею – 71,20 м. кв. (В)

6 519.07 грн
91.56 грн / м2
Україна, м.Київ, Київ, 04108, м. Київ, вул. Наталії Ужвій 1
Перейти до аукціону на сайті
  • Інформація
  • Опис
  • Документи
Дата оголошення пропозиції:
08 червня 2025
Площа:
71.20 м2
Тип об’єкта:
Приміщення
Тип аукціону:
Англійський аукціон
Статус аукціону:
Аукціон не відбувся
Тип угоди:
Оренда
Розмір мінімального кроку:
330.00 ₴
Розмір гарантійного внеску:
3 911.44 ₴
Початок прийому пропозицій:
08.06.2025 21:14:06
Завершення прийому пропозицій:
08.07.2025 20:00:00
Проведення аукціону:
09.07.2025 12:30:00
Лот:
CLE001-UA-20250608-55603
№ лоту (УТК):
UTK21032501U
Лот виставляється на торги (раз):
3
Стислий опис майна:
Пропонуються до оренди приміщення 1-го поверху, загальною площею71,20 м. кв. Будівля розташована у Подільському районі міста Києва, житловий масив Мостицький. Поруч розвинена інфраструктура, зупинки маршрутного транспорту, кафе. Характеристики: • кількість поверхів – 3; • загальна площа об'єкта – 5230,70 кв. м.; • земельна ділянка – 0,3222 га*; • дозволена потужність – 3,00 кВт; • водозабезпечення, сан. вузол, каналізація – присутні (загальний на поверсі); • опалення - централізоване (присутнє). *земельна ділянка не є предметом оренди.
Адреса місцезнаходження майна:
Україна, м.Київ, Київ, 04108, м. Київ, вул. Наталії Ужвій 1
Схожі пропозиції
29.03.2024
м. Київ, вул. Архітектора Вербицького, 3;   Оренда – приміщення 1-го та 3-го поверху площею 263,7 кв.м. (В)
25 251.91 грн
95.76 грн / м2
Приміщення
м. Київ, вул. Архітектора Вербицького, 3; Оренда – приміщення 1-го та 3-го поверху площею 263,7 кв.м. (В)
Україна, м.Київ, Київ, вул. Архітектора Вербицького, 3
м. Київ, вул. Антоновича 40. Оренда - приміщення 3 поверху
213 235.20 грн
288.00 грн / м2
Приміщення
м. Київ, вул. Антоновича 40. Оренда - приміщення 3 поверху
Україна, м.Київ, місто Київ, вул. Антоновича, 40
Київ, вул. Джона Маккейна, №40, оренда – приміщення 1-го поверху, площею 65,60 м2 (В)
13 595.60 грн
207.25 грн / м2
Приміщення
Київ, вул. Джона Маккейна, №40, оренда – приміщення 1-го поверху, площею 65,60 м2 (В)
Україна, м.Київ, Київ, вул. Джона Маккейна, 40
29.03.2024
м. Київ, бульвар Бучми Амвросія, 5;   Оренда – приміщення 3-го та 4-го поверхів технічної будівлі АТС-550 (літ. «Б»), площею 1006,83 кв.м. (В)
92 628.36 грн
92.00 грн / м2
Приміщення
м. Київ, бульвар Бучми Амвросія, 5; Оренда – приміщення 3-го та 4-го поверхів технічної будівлі АТС-550 (літ. «Б»), площею 1006,83 кв.м. (В)
Україна, м.Київ, м. Київ, вулиця Амвросія Бучми, 5 літ.Б
Переглянуті пропозиції
м. Київ, вул. Дегтярівська, 28-А. Оренда – приміщення 1-го поверху площею 115,95 кв.м. (В)
37 359.09 грн
322.20 грн / м2
Приміщення
м. Київ, вул. Дегтярівська, 28-А. Оренда – приміщення 1-го поверху площею 115,95 кв.м. (В)
Україна, м.Київ, Київ, вул. Дегтярівська, 28-А