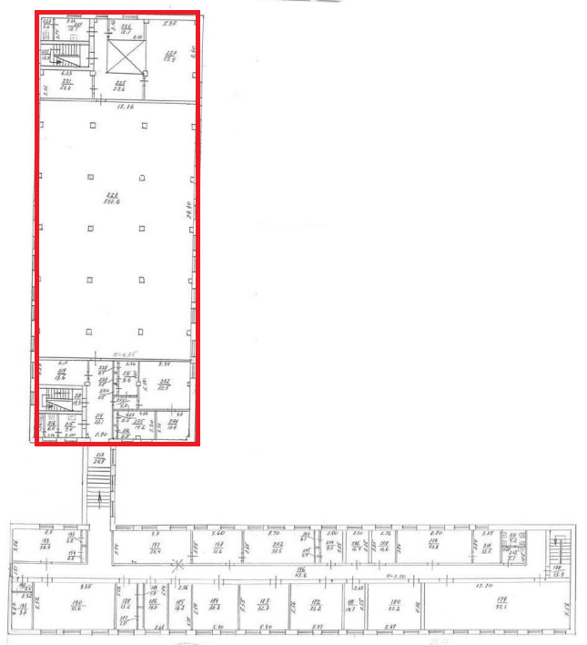
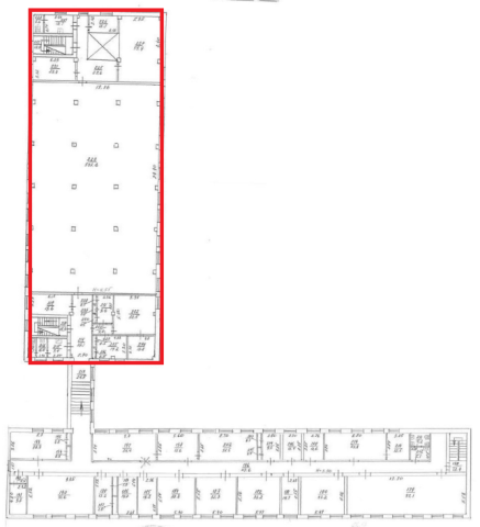
Довгострокова оренда! Дніпропетровська обл., м. Верхньодніпровськ, вул. Кам’янська (Титова), 8. Оренда – приміщення 3-го поверху площею 826,40 кв.м. (В)

19 833.60 грн
24.00 грн / м2
Україна, Дніпропетровська обл., Верхньодніпровськ, вулиця Тітова, 8
Перейти до аукціону на сайті
  • Інформація
  • Опис
  • Документи
Дата оголошення пропозиції:
24 жовтня 2025
Площа:
826.40 м2
Тип об’єкта:
Приміщення
Тип аукціону:
Англійський аукціон
Статус аукціону:
Прийняття заяв на участь
Тип угоди:
Оренда
Розмір мінімального кроку:
400.00 ₴
Розмір гарантійного внеску:
11 900.16 ₴
Початок прийому пропозицій:
24.10.2025 13:25:07
Завершення прийому пропозицій:
26.11.2025 20:00:00
Проведення аукціону:
27.11.2025 12:00:00
Лот:
CLE001-UA-20251024-08841
№ лоту (УТК):
UTK140725_11U
Лот виставляється на торги (раз):
4
Стислий опис майна:
Пропонується до оренди приміщення 3-го поверху площею 826,40 кв.м. Будівля в центрі місця Верхньодніпровськ. Поруч знаходяться пошта, автовокзал, Епіцентр. Високий автомобільний і пішохідний потоки. Стан приміщення – задовільний, підходить для будь-якого бізнесу. Можливість передачі приміщення в суборенду. Характеристики - кількість поверхів – 3; - загальна площа будівлі – 3403.4 кв.м.; - площа запропонована до оренди – 826,40 кв.м.; - газопостачання, електропостачання, водопостачання, каналізаційна мережа, теплопостачання, охорона та обслуговування пожежної сигналізації, вивіз сміття, прибирання загальних місць та території; - земельна ділянка – 0.6472 га (договір оренди).
Адреса місцезнаходження майна:
Україна, Дніпропетровська обл., Верхньодніпровськ, вулиця Тітова, 8
Схожі пропозиції
03.09.2025
Дніпропетровська обл., м. Кам’янське, просп. Героїв АТО, 1. Оренда – приміщення 3-го поверху, площею 26,30 кв.м. (В)
789.00 грн
30.00 грн / м2
Приміщення
Дніпропетровська обл., м. Кам’янське, просп. Героїв АТО, 1. Оренда – приміщення 3-го поверху, площею 26,30 кв.м. (В)
Україна, Дніпропетровська обл., м. Кам’янське, просп. Героїв АТО, 1
23.01.2024
Дніпропетровська обл., м. Марганець, вул. Єдності, 25. Оренда – приміщення 1-го поверху площею 31,20 кв.м. (В)
312.00 грн
10.00 грн / м2
Приміщення
Дніпропетровська обл., м. Марганець, вул. Єдності, 25. Оренда – приміщення 1-го поверху площею 31,20 кв.м. (В)
Україна, Дніпропетровська обл., м. Марганець, вул. Єдності, 25
Дніпропетровська обл., м. Кам`янське, пр. Героїв АТО, 1. Оренда – приміщення 3-го поверху площею 62,90 кв.м. (В)
3 015.43 грн
47.94 грн / м2
Приміщення
Дніпропетровська обл., м. Кам`янське, пр. Героїв АТО, 1. Оренда – приміщення 3-го поверху площею 62,90 кв.м. (В)
Україна, Дніпропетровська обл., м. Кам`янське, пр. Героїв АТО, 1
Дніпропетровська обл., м. Дніпро, бульвар Рубіновий, буд.18. Оренда приміщення 1-го, 2-го, 3-го, 4-го, 5-го поверхів площею 3 801,8 кв.м.(В)
37 637.82 грн
9.90 грн / м2
Приміщення
Дніпропетровська обл., м. Дніпро, бульвар Рубіновий, буд.18. Оренда приміщення 1-го, 2-го, 3-го, 4-го, 5-го поверхів площею 3 801,8 кв.м.(В)
Україна, Дніпропетровська обл., м. Дніпро, бульвар Рубіновий, буд.18
Переглянуті пропозиції
19.09.2023
ДОВГОСТРОКОВА ОРЕНДА! м. Київ, вул. Салютна, 5а, літ. «Б». Оренда – приміщення 3-го та 4-го поверхів площею 992,8 кв.м. (В)
24.07.2024
Дніпропетровська обл., м. Дніпро, просп. Героїв, 14. Оренда – приміщення 2-го поверху загальною площею 77,70 кв.м (В)
7 140.63 грн
91.90 грн / м2
Приміщення
Дніпропетровська обл., м. Дніпро, просп. Героїв, 14. Оренда – приміщення 2-го поверху загальною площею 77,70 кв.м (В)
Україна, Дніпропетровська обл., м. Дніпро, просп. Героїв, 14
08.04.2025
   ДОВГОСТРОКОВА ОРЕНДА!   м. Київ, вул. Антоновича, 40;  Оренда – група приміщень на 4-му поверсі, площею - 774,90 кв.м. (В)
19.11.2025
м. Київ, вул. Джона Маккейна, 40, літ. «В» (Печерський р-н). Оренда – гаражі, загальною площею - 315,10 кв.м. (В)
63 924.34 грн
202.87 грн / м2
Приміщення
м. Київ, вул. Джона Маккейна, 40, літ. «В» (Печерський р-н). Оренда – гаражі, загальною площею - 315,10 кв.м. (В)
Україна, м.Київ, Київ, 01042, м. Київ, вул. Джона Маккейна, 40, літ. «В» (Печерський р-н)