Дніпропетровська обл., м. Кам`янське, пр. Героїв АТО, 1. Оренда – приміщення 3-го поверху площею 62,90 кв.м. (В)

3 015.43 грн
47.94 грн / м2
Україна, Дніпропетровська обл., м. Кам`янське, пр. Героїв АТО, 1
Перейти до аукціону на сайті
  • Інформація
  • Опис
  • Документи
Дата оголошення пропозиції:
12 травня 2021
Площа:
62.90 м2
Тип об’єкта:
Приміщення
Тип аукціону:
Англійський аукціон
Статус аукціону:
Аукціон не відбувся
Тип угоди:
Оренда
Розмір мінімального кроку:
30.00 ₴
Розмір гарантійного внеску:
1 809.26 ₴
Початок прийому пропозицій:
12.05.2021 14:11:22
Завершення прийому пропозицій:
26.05.2021 20:00:00
Лот:
UA-PS-2021-05-12-000060-1
№ лоту (УТК):
UTK120521_06P
Лот виставляється на торги (раз):
1
Стислий опис майна:
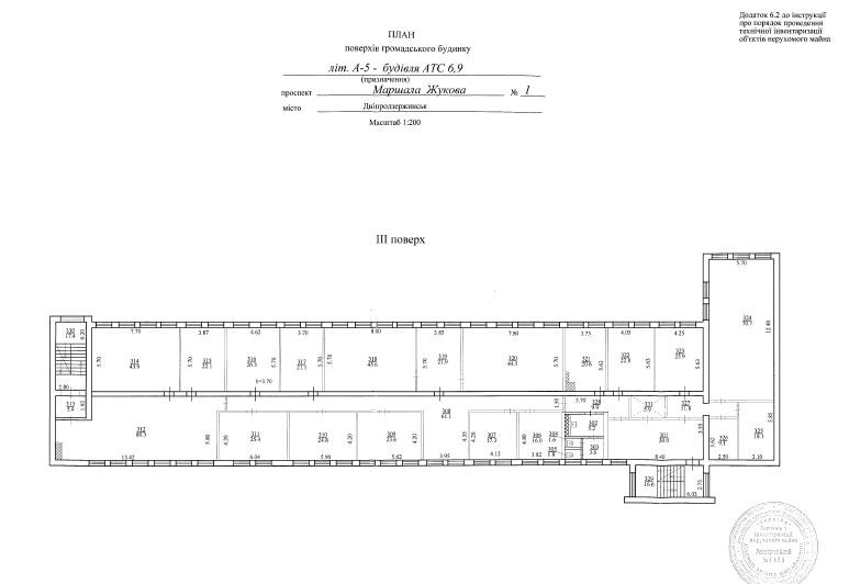
Пропонується до оренди приміщення 3-го поверху площею 133,60 кв.м. Розташування - будівля знаходиться в центрі міста. Поруч знаходяться продуктові магазини, кафе, відділення пошти, декілька банків, зупинки міського транспорту, середній автомобільний і пішохідний потоки. Стан приміщення задовільний, підходить для офісу, студії, навчальних класів. Ідеальне місце під розвиток будь-якого бізнесу. Можливість передачі приміщень в суборенду. Характеристики: Кількість поверхів – 5; Загальна площа – 3830,20 кв.м.; Площа запропонована до оренди – 62,90 кв.м.; Електропостачання, водопостачання, теплопостачання; Земельна ділянка – 0,2793 га (договір оренди)
Адреса місцезнаходження майна:
Україна, Дніпропетровська обл., м. Кам`янське, пр. Героїв АТО, 1
Схожі пропозиції
10.09.2024
Дніпропетровська обл., м. Дніпро, вул. Січових Стрільців, 10. Оренда – приміщення 2-го поверху площею 44,10 кв.м. (В)
6 615.00 грн
150.00 грн / м2
Приміщення
Дніпропетровська обл., м. Дніпро, вул. Січових Стрільців, 10. Оренда – приміщення 2-го поверху площею 44,10 кв.м. (В)
Україна, Дніпропетровська обл., м. Дніпро, вул. Січових Стрільців, 10
29.02.2024
Дніпропетровська обл., м. Жовті Води, вул. Свободи, 39;   Оренда – приміщення 3-го поверху площею 34,1 кв.м. (В)
511.50 грн
15.00 грн / м2
Приміщення
Дніпропетровська обл., м. Жовті Води, вул. Свободи, 39; Оренда – приміщення 3-го поверху площею 34,1 кв.м. (В)
Україна, Дніпропетровська обл., Жовті Води, бульвар Свободи, 39
03.09.2025
Дніпропетровська обл., м. Кам’янське, просп. Свободи, 44. Оренда – приміщення 4-го поверху загальною площею 317,00 кв.м (В)
3 804.00 грн
12.00 грн / м2
Приміщення
Дніпропетровська обл., м. Кам’янське, просп. Свободи, 44. Оренда – приміщення 4-го поверху загальною площею 317,00 кв.м (В)
Україна, Дніпропетровська обл., м. Кам’янське, просп. Свободи, 44
30.12.2024
Дніпропетровська обл., м. Дніпро, вул. Січових Стрільців, 10. Оренда – приміщення 2-го поверху площею 18,20 кв.м. (В)
2 506.14 грн
137.70 грн / м2
Приміщення
Дніпропетровська обл., м. Дніпро, вул. Січових Стрільців, 10. Оренда – приміщення 2-го поверху площею 18,20 кв.м. (В)
Україна, Дніпропетровська обл., м. Дніпро, вул. Січових Стрільців, 10
Переглянуті пропозиції
26.04.2024
Дніпропетровська обл., м. Кам’янське, просп. Свободи, 44. Оренда – приміщення 5-го поверху загальною площею 26,10 кв.м (В)
1 412.01 грн
54.10 грн / м2
Приміщення
Дніпропетровська обл., м. Кам’янське, просп. Свободи, 44. Оренда – приміщення 5-го поверху загальною площею 26,10 кв.м (В)
Україна, Дніпропетровська обл., м. Кам’янське, просп. Свободи, 44
Дніпропетровська обл., м. Першотравенськ, вул. Кобзаря, 15. Оренда – приміщення 1-го поверху площею 15,30 кв.м. (В)
734.40 грн
48.00 грн / м2
Приміщення
Дніпропетровська обл., м. Першотравенськ, вул. Кобзаря, 15. Оренда – приміщення 1-го поверху площею 15,30 кв.м. (В)
Україна, Дніпропетровська обл., м. Першотравенськ, вул. Кобзаря, 15
18.03.2025
Дніпропетровська обл., м. Дніпро, просп. Героїв, 14. Оренда – приміщення 2-го поверху загальною площею 77,70 кв.м (В)
4 998.15 грн
64.33 грн / м2
Приміщення
Дніпропетровська обл., м. Дніпро, просп. Героїв, 14. Оренда – приміщення 2-го поверху загальною площею 77,70 кв.м (В)
Україна, Дніпропетровська обл., м. Дніпро, просп. Героїв, 14
26.10.2023
ДОВГОСТРОКОВА ОРЕНДА!  м. Київ, вул. Василя Макуха (Шевцова Івана),5; Оренда – приміщення 3-го поверху площею 905,3 кв.м. (В)
132 137.59 грн
145.96 грн / м2
Приміщення
ДОВГОСТРОКОВА ОРЕНДА! м. Київ, вул. Василя Макуха (Шевцова Івана),5; Оренда – приміщення 3-го поверху площею 905,3 кв.м. (В)
Україна, м.Київ, Київ, вул. Василя Макуха (Шевцова Івана), 5