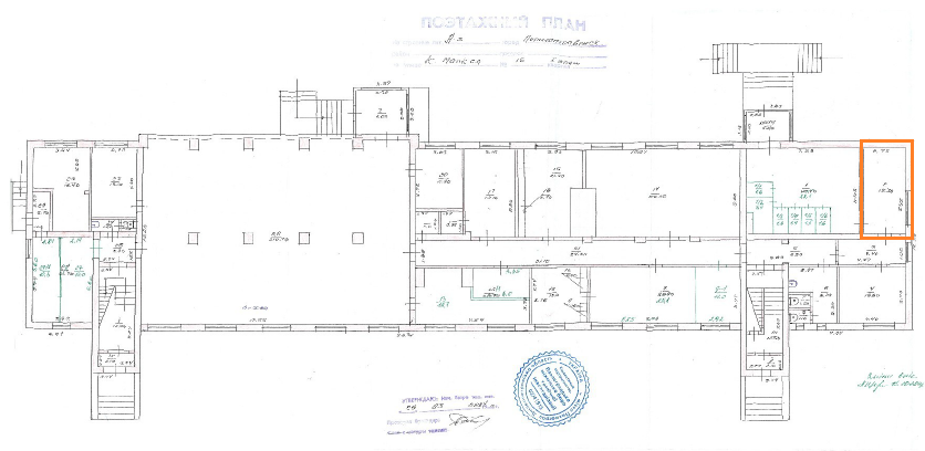
Дніпропетровська обл., м. Першотравенськ, вул. Кобзаря, 15. Оренда – приміщення 1-го поверху площею 15,30 кв.м. (В)

734.40 грн
48.00 грн / м2
Україна, Дніпропетровська обл., м. Першотравенськ, вул. Кобзаря, 15
Перейти до аукціону на сайті
  • Інформація
  • Опис
  • Документи
Дата оголошення пропозиції:
18 лютого 2021
Площа:
15.30 м2
Тип об’єкта:
Приміщення
Тип аукціону:
Англійський аукціон
Статус аукціону:
Аукціон не відбувся
Тип угоди:
Оренда
Розмір мінімального кроку:
30.00 ₴
Розмір гарантійного внеску:
440.64 ₴
Початок прийому пропозицій:
18.02.2021 10:08:02
Завершення прийому пропозицій:
04.03.2021 20:00:00
Лот:
UA-PS-2021-02-18-000004-2
№ лоту (УТК):
UTK020221_07P
Лот виставляється на торги (раз):
2
Стислий опис майна:
Пропонується до оренди приміщення 1-го поверху площею 15,30 кв.м. Розташування - будівля знаходиться недалеко від центру міста. Поруч знаходяться відділення пошти, банкомати, студія візажа, автостанція, середній автомобільний і пішохідний потоки. Стан приміщення задовільний, підходить для офісу, студії. Ідеальне місце під розвиток будь-якого бізнесу. Можливість передачі приміщень в суборенду. Характеристики: Кількість поверхів – 3; Загальна площа – 1759,50 кв.м.; Площа запропонована до оренди – 15,30 кв.м.; Електропостачання, водопостачання, теплопостачання, охорона, прибирання території, вивіз сміття; Земельна ділянка – 0, 2333 га (договір оренди)
Адреса місцезнаходження майна:
Україна, Дніпропетровська обл., м. Першотравенськ, вул. Кобзаря, 15
Схожі пропозиції
01.09.2023
Дніпропетровська обл., смт Софіївка, бул. Шевченка, 17А. Оренда – приміщення гаражу площею 33,00 кв.м. (В)
429.00 грн
13.00 грн / м2
Приміщення
Дніпропетровська обл., смт Софіївка, бул. Шевченка, 17А. Оренда – приміщення гаражу площею 33,00 кв.м. (В)
Україна, Дніпропетровська обл., смт Софіївка, ул. Шевченка, 17А
25.08.2022
Дніпропетровська обл., м. Дніпро, вул. Князя Ярослава Мудрого, 3. Оренда – приміщення 2-го поверху площею 41,20 кв.м. (В)
3 440.20 грн
83.50 грн / м2
Приміщення
Дніпропетровська обл., м. Дніпро, вул. Князя Ярослава Мудрого, 3. Оренда – приміщення 2-го поверху площею 41,20 кв.м. (В)
Україна, Дніпропетровська обл., м. Дніпро, вул. Князя Ярослава Мудрого, 3
21.11.2025
Дніпропетровська обл., Апостолівський р-н, с. Мар`янське, вул. Терешкової, 7. Оренда – приміщення 1-го поверху площею 32,30 кв.м. (В)
646.00 грн
20.00 грн / м2
Приміщення
Дніпропетровська обл., Апостолівський р-н, с. Мар`янське, вул. Терешкової, 7. Оренда – приміщення 1-го поверху площею 32,30 кв.м. (В)
Україна, Дніпропетровська обл., Апостолівський р-н, с. Мар`янське, вул. Терешкової, 7
10.01.2023
Дніпропетровська обл., м. Дніпро, вул.Чернишевського, 27. Оренда – приміщення 1-го поверху площею 19,8 кв.м.(В)
1 017.32 грн
51.38 грн / м2
Приміщення
Дніпропетровська обл., м. Дніпро, вул.Чернишевського, 27. Оренда – приміщення 1-го поверху площею 19,8 кв.м.(В)
Україна, Дніпропетровська обл., Дніпро, вулиця Чернишевського, 27
Переглянуті пропозиції
18.03.2025
Дніпропетровська обл., м. Дніпро, просп. Героїв, 14. Оренда – приміщення 2-го поверху загальною площею 77,70 кв.м (В)
4 998.15 грн
64.33 грн / м2
Приміщення
Дніпропетровська обл., м. Дніпро, просп. Героїв, 14. Оренда – приміщення 2-го поверху загальною площею 77,70 кв.м (В)
Україна, Дніпропетровська обл., м. Дніпро, просп. Героїв, 14
26.10.2023
ДОВГОСТРОКОВА ОРЕНДА!  м. Київ, вул. Василя Макуха (Шевцова Івана),5; Оренда – приміщення 3-го поверху площею 905,3 кв.м. (В)
132 137.59 грн
145.96 грн / м2
Приміщення
ДОВГОСТРОКОВА ОРЕНДА! м. Київ, вул. Василя Макуха (Шевцова Івана),5; Оренда – приміщення 3-го поверху площею 905,3 кв.м. (В)
Україна, м.Київ, Київ, вул. Василя Макуха (Шевцова Івана), 5
м. Дніпро, проспект Пушкіна, 75А. Оренда - приміщення 2-го поверху площею 746,4 кв.м.
14 308.49 грн
19.17 грн / м2
Приміщення
м. Дніпро, проспект Пушкіна, 75А. Оренда - приміщення 2-го поверху площею 746,4 кв.м.
Україна, Дніпропетровська обл., м. Дніпро, проспект Пушкіна, 75А
31.03.2023
м. Київ, вул. Будівельників, 8-Б, оренда – приміщення підвалу, площею 452,6 кв.м. (В)
20 910.12 грн
46.20 грн / м2
Приміщення
м. Київ, вул. Будівельників, 8-Б, оренда – приміщення підвалу, площею 452,6 кв.м. (В)
Україна, м.Київ, Київ, вулиця Будівельників, 8Б