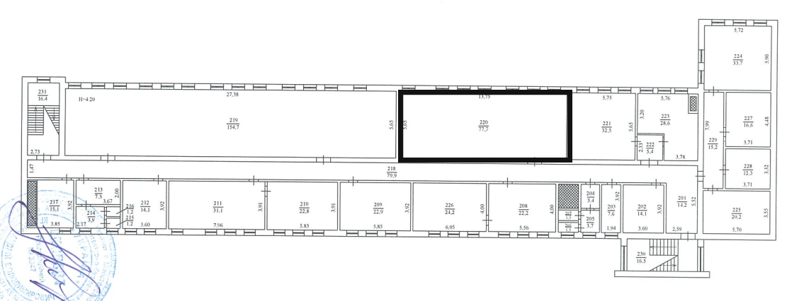
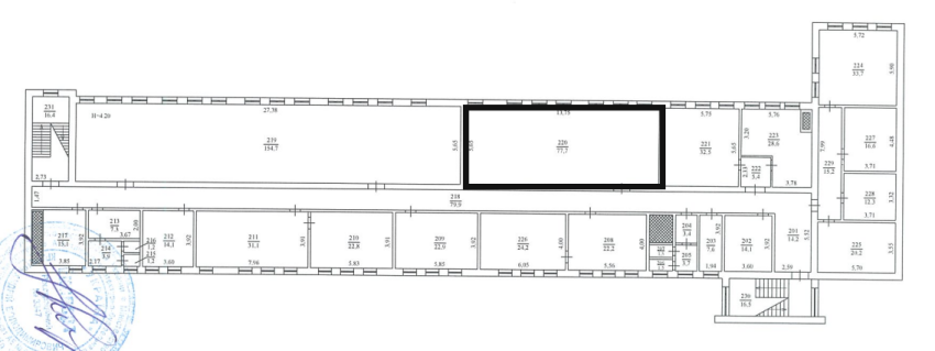
Дніпропетровська обл., м. Дніпро, просп. Героїв, 14. Оренда – приміщення 2-го поверху загальною площею 77,70 кв.м (В)

4 998.15 грн
64.33 грн / м2
Україна, Дніпропетровська обл., м. Дніпро, просп. Героїв, 14
Перейти до аукціону на сайті
  • Інформація
  • Опис
  • Документи
Дата оголошення пропозиції:
18 лютого 2025
Площа:
77.70 м2
Тип об’єкта:
Приміщення
Тип аукціону:
Англійський аукціон
Статус аукціону:
Аукціон не відбувся
Тип угоди:
Оренда
Розмір мінімального кроку:
100.00 ₴
Розмір гарантійного внеску:
2 998.80 ₴
Початок прийому пропозицій:
18.02.2025 16:03:43
Завершення прийому пропозицій:
17.03.2025 20:00:00
Проведення аукціону:
18.03.2025 11:25:00
Лот:
CLE001-UA-20250218-11346
№ лоту (УТК):
UTK130524_08P
Лот виставляється на торги (раз):
7
Стислий опис майна:
Пропонується до оренди приміщення 2-го поверху загальною площею 77,70 кв.м (прим.220). Розташування - будівля знаходиться в Соборному районі міста. Поруч знаходяться відділення банку, супермаркети, лікарня, зупинка громадського транспорту, високий автомобільний і пішохідний потоки. Стан приміщення задовільний. Вхід в приміщення спільний. Зручна транспортна розв’язка та інфраструктура. Характеристики: Кількість поверхів – 4; Загальна площа – 3705,30 кв.м Площа запропонована до оренди – 77,70 кв.м Теплопостачання – централізоване; водопостачання, електропостачання, Земельна ділянка – 0,2755 га (договір оренди)
Адреса місцезнаходження майна:
Україна, Дніпропетровська обл., м. Дніпро, просп. Героїв, 14
Схожі пропозиції
31.12.2024
Дніпропетровська обл., м. Кривий Ріг, вул. Водоп`янова, 1а;   Оренда – приміщення  1-го поверху, площею 282,5 кв.м. (В)
2 542.50 грн
9.00 грн / м2
Приміщення
Дніпропетровська обл., м. Кривий Ріг, вул. Водоп`янова, 1а; Оренда – приміщення 1-го поверху, площею 282,5 кв.м. (В)
Україна, Дніпропетровська обл., Кривий Ріг, вулиця Водоп'янова, 1а
23.04.2025
Дніпропетровська обл., м. Кривий Ріг, вул. Покровська, 29а. Оренда – приміщення 1-го поверху площею 154,1 кв. м. (В)
5 165.43 грн
33.52 грн / м2
Приміщення
Дніпропетровська обл., м. Кривий Ріг, вул. Покровська, 29а. Оренда – приміщення 1-го поверху площею 154,1 кв. м. (В)
Україна, Дніпропетровська обл., м. Кривий Ріг, вул. Покровська, 29а
30.01.2024
Дніпропетровська обл., м. Кривий Ріг, вул. Героїв АТО, 30. Оренда – приміщення підвалу площею 154,50 кв.м. (В)
7 324.85 грн
47.41 грн / м2
Приміщення
Дніпропетровська обл., м. Кривий Ріг, вул. Героїв АТО, 30. Оренда – приміщення підвалу площею 154,50 кв.м. (В)
Україна, Дніпропетровська обл., м. Кривий Ріг, вул. Героїв АТО, 30
18.10.2024
ДОВГОСТРОКОВА ОРЕНДА! Дніпропетровська обл., м. Кам’янське, вул. Стовби, 3а. Оренда – триповерхова будівля, загальною площею 1811,00 (літ. А-3) (В)
Переглянуті пропозиції
26.10.2023
ДОВГОСТРОКОВА ОРЕНДА!  м. Київ, вул. Василя Макуха (Шевцова Івана),5; Оренда – приміщення 3-го поверху площею 905,3 кв.м. (В)
132 137.59 грн
145.96 грн / м2
Приміщення
ДОВГОСТРОКОВА ОРЕНДА! м. Київ, вул. Василя Макуха (Шевцова Івана),5; Оренда – приміщення 3-го поверху площею 905,3 кв.м. (В)
Україна, м.Київ, Київ, вул. Василя Макуха (Шевцова Івана), 5
м. Дніпро, проспект Пушкіна, 75А. Оренда - приміщення 2-го поверху площею 746,4 кв.м.
14 308.49 грн
19.17 грн / м2
Приміщення
м. Дніпро, проспект Пушкіна, 75А. Оренда - приміщення 2-го поверху площею 746,4 кв.м.
Україна, Дніпропетровська обл., м. Дніпро, проспект Пушкіна, 75А
31.03.2023
м. Київ, вул. Будівельників, 8-Б, оренда – приміщення підвалу, площею 452,6 кв.м. (В)
20 910.12 грн
46.20 грн / м2
Приміщення
м. Київ, вул. Будівельників, 8-Б, оренда – приміщення підвалу, площею 452,6 кв.м. (В)
Україна, м.Київ, Київ, вулиця Будівельників, 8Б
15.08.2023
м. Київ, вул. Ореста Васкула (Феодори Пушиної), 27-А. Оренда – приміщення 3-го поверху, площею 34,5 кв.м. (В)
6 810.99 грн
197.42 грн / м2
Приміщення
м. Київ, вул. Ореста Васкула (Феодори Пушиної), 27-А. Оренда – приміщення 3-го поверху, площею 34,5 кв.м. (В)
Україна, м.Київ, м. Київ, вулиця Ореста Васкула, 27