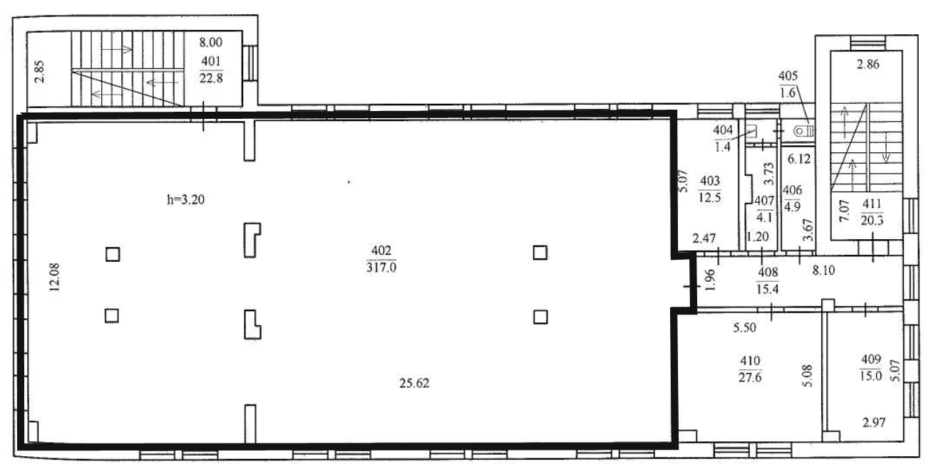
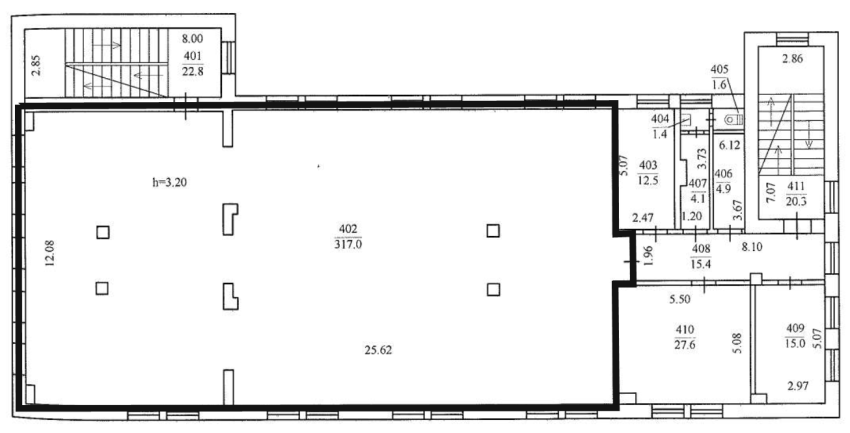
Дніпропетровська обл., м. Кам’янське, просп. Свободи, 44. Оренда – приміщення 4-го поверху загальною площею 317,00 кв.м (В)

3 804.00 грн
12.00 грн / м2
Україна, Дніпропетровська обл., м. Кам’янське, просп. Свободи, 44
Перейти до аукціону на сайті
  • Інформація
  • Опис
  • Документи
Дата оголошення пропозиції:
04 серпня 2025
Площа:
317.00 м2
Тип об’єкта:
Приміщення
Тип аукціону:
Англійський аукціон
Статус аукціону:
Аукціон не відбувся
Тип угоди:
Оренда
Розмір мінімального кроку:
200.00 ₴
Розмір гарантійного внеску:
2 282.40 ₴
Початок прийому пропозицій:
04.08.2025 16:52:56
Завершення прийому пропозицій:
02.09.2025 20:00:00
Проведення аукціону:
03.09.2025 11:25:00
Лот:
CLE001-UA-20250804-86316
№ лоту (УТК):
UTK230224_17P
Лот виставляється на торги (раз):
10
Стислий опис майна:
Пропонується до оренди приміщення 4-го поверху площею 317,00 кв.м (прим.№ 402). Будівля в центрі міста. Поруч знаходяться об’єкти соціальної інфраструктури: відділення пошти та банку, клініка, магазини, ринок тощо. Стан приміщення відмінний, підходить для офісу, ідеальне місце під розвиток будь-якого бізнесу. Зручна транспортна розв’язка та інфраструктура. Характеристики: Кількість поверхів – 5 Загальна площа – 2506,00 кв.м Площа запропонована до оренди – 317,00 кв.м Електропостачання, водопостачання, теплопостачання Земельна ділянка – 0,2324 га (договір оренди) Ресурсні податки – 2,68 грн за 1 кв.м
Адреса місцезнаходження майна:
Україна, Дніпропетровська обл., м. Кам’янське, просп. Свободи, 44
Схожі пропозиції
21.03.2023
Дніпропетровська обл., м. Марганець, вул. Єдності, 25. Оренда – приміщення 1-го поверху площею 31,20 кв.м. (В)
612.46 грн
19.63 грн / м2
Приміщення
Дніпропетровська обл., м. Марганець, вул. Єдності, 25. Оренда – приміщення 1-го поверху площею 31,20 кв.м. (В)
Україна, Дніпропетровська обл., м. Марганець, вул. Єдності, 25
13.10.2023
Дніпропетровська обл., м. Дніпро, вул. Панікахи, 27. Оренда – приміщення 4-го поверху площею 737,0 кв.м.(В)
47 477.54 грн
64.42 грн / м2
Приміщення
Дніпропетровська обл., м. Дніпро, вул. Панікахи, 27. Оренда – приміщення 4-го поверху площею 737,0 кв.м.(В)
Україна, Дніпропетровська обл., м. Дніпро, вул. Панікахи, 27
Дніпропетровська обл., м. Марганець, вул. Єдності, 25. Оренда – приміщення 1-го поверху площею 31,20 кв.м. (В)
1 531.61 грн
49.09 грн / м2
Приміщення
Дніпропетровська обл., м. Марганець, вул. Єдності, 25. Оренда – приміщення 1-го поверху площею 31,20 кв.м. (В)
Україна, Дніпропетровська обл., м. Марганець, вул. Єдності, 25
03.09.2025
Дніпропетровська обл., м. Дніпро, вул. Князя Ярослава Мудрого, 3. Оренда – приміщення 5-го поверху площею 12,10 кв.м. (В)
605.00 грн
50.00 грн / м2
Приміщення
Дніпропетровська обл., м. Дніпро, вул. Князя Ярослава Мудрого, 3. Оренда – приміщення 5-го поверху площею 12,10 кв.м. (В)
Україна, Дніпропетровська обл., м. Дніпро, вул. Князя Ярослава Мудрого, 3
Переглянуті пропозиції
12.01.2024
м.Київ, вул. Миколи Голего,8;   Оренда–приміщення 3-го поверху площею 79,7кв.м.(В)
11 301.46 грн
141.80 грн / м2
Приміщення
м.Київ, вул. Миколи Голего,8; Оренда–приміщення 3-го поверху площею 79,7кв.м.(В)
Україна, м.Київ, Київ, вулиця Миколи Голего, 8
23.01.2024
Дніпропетровська обл., м. Кривий Ріг, вул. Водоп`янова, 1а;   Оренда – приміщення  1-го поверху, площею 282,5 кв.м. (В)
2 542.50 грн
9.00 грн / м2
Приміщення
Дніпропетровська обл., м. Кривий Ріг, вул. Водоп`янова, 1а; Оренда – приміщення 1-го поверху, площею 282,5 кв.м. (В)
Україна, Дніпропетровська обл., Кривий Ріг, вулиця Водоп'янова, 1а