м.Київ, вул. Миколи Голего,8; Оренда–приміщення 3-го поверху площею 79,7кв.м.(В)

11 301.46 грн
141.80 грн / м2
Україна, м.Київ, Київ, вулиця Миколи Голего, 8
Перейти до аукціону на сайті
  • Інформація
  • Опис
  • Документи
Дата оголошення пропозиції:
08 грудня 2023
Площа:
79.70 м2
Тип об’єкта:
Приміщення
Тип аукціону:
Англійський аукціон
Статус аукціону:
Аукціон не відбувся
Тип угоди:
Оренда
Розмір мінімального кроку:
150.00 ₴
Розмір гарантійного внеску:
6 780.88 ₴
Початок прийому пропозицій:
08.12.2023 13:46:52
Завершення прийому пропозицій:
11.01.2024 20:00:00
Проведення аукціону:
12.01.2024 12:45:00
Лот:
CLE001-UA-20231208-45120
№ лоту (УТК):
UTK271222_00Т
Лот виставляється на торги (раз):
10
Стислий опис майна:
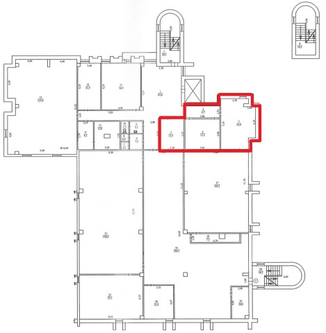
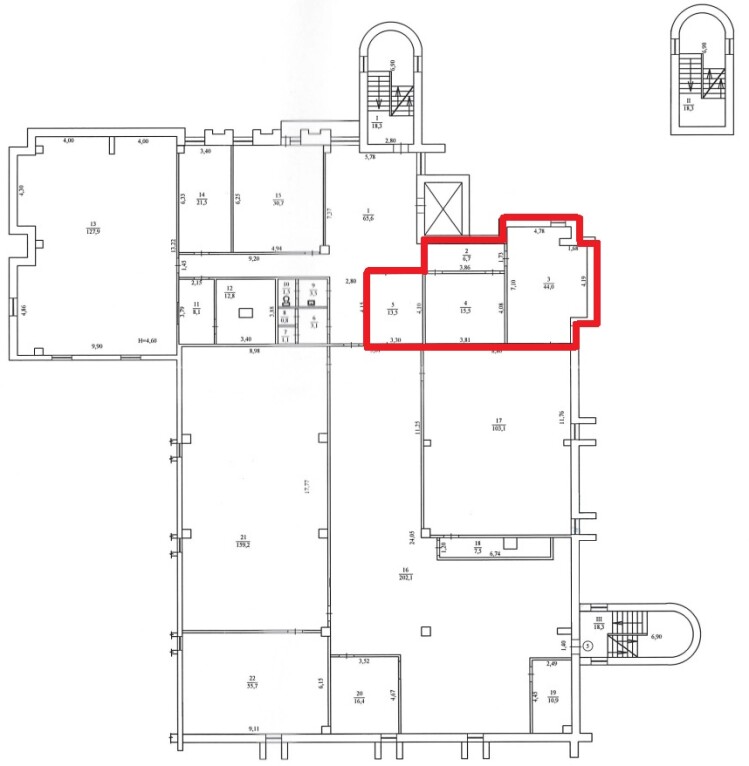
Пропонуються до оренди приміщення 3-го поверху площею 79,7кв.м. Розташування будівлі у Солом'янському районі міста Києва, місцевість Караваєві дачі. Поруч розвинена інфраструктура, зупинки маршрутного транспорту, магазини, кафе, аптеки, середній автомобільний і пішохідний потоки. Характеристики: • загальна площа будівлі – 5639,8 м2 ; • сан. вузол, каналізація, водопостачання – присутне; • кількість поверхів – 4; • енергетична потужність – 5 кВт; • опалення централізоване (міське); • площа земельної ділянки – 0,3625 га*; *земельна ділянка не є предметом оренди.
Адреса місцезнаходження майна:
Україна, м.Київ, Київ, вулиця Миколи Голего, 8
Схожі пропозиції
м. Київ, вул. Малиновського, 19-А, літ. «А». Оренда – приміщення 1го поверху, площею 75,50 кв.м. (В)
12 979.96 грн
171.92 грн / м2
Приміщення
м. Київ, вул. Малиновського, 19-А, літ. «А». Оренда – приміщення 1го поверху, площею 75,50 кв.м. (В)
Україна, м.Київ, Київ, . Малиновського, 19-А, літ. «А»
19.05.2023
м. Київ, вул. Миколи Голего, 8. Оренда – приміщення 3-го поверху площею 79,7 м2 (В)
6 886.08 грн
86.40 грн / м2
Приміщення
м. Київ, вул. Миколи Голего, 8. Оренда – приміщення 3-го поверху площею 79,7 м2 (В)
Україна, м.Київ, Київ, вулиця Миколи Голего, 8
м. Київ, вул. Малиновського, 19-А, літ. «А». Оренда – приміщення 1го поверху, площею 75,50 кв.м. (В)
24 462.00 грн
324.00 грн / м2
Приміщення
м. Київ, вул. Малиновського, 19-А, літ. «А». Оренда – приміщення 1го поверху, площею 75,50 кв.м. (В)
Україна, м.Київ, Київ, . Малиновського, 19-А, літ. «А»
Переглянуті пропозиції
23.01.2024
Дніпропетровська обл., м. Кривий Ріг, вул. Водоп`янова, 1а;   Оренда – приміщення  1-го поверху, площею 282,5 кв.м. (В)
2 542.50 грн
9.00 грн / м2
Приміщення
Дніпропетровська обл., м. Кривий Ріг, вул. Водоп`янова, 1а; Оренда – приміщення 1-го поверху, площею 282,5 кв.м. (В)
Україна, Дніпропетровська обл., Кривий Ріг, вулиця Водоп'янова, 1а