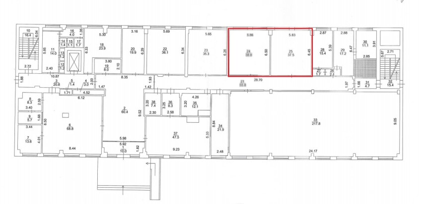
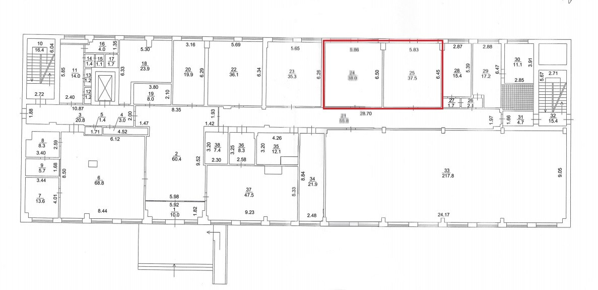
м. Київ, вул. Малиновського, 19-А, літ. «А». Оренда – приміщення 1го поверху, площею 75,50 кв.м. (В)

12 979.96 грн
171.92 грн / м2
Україна, м.Київ, Київ, . Малиновського, 19-А, літ. «А»
Перейти до аукціону на сайті
  • Інформація
  • Опис
  • Документи
Дата оголошення пропозиції:
27 жовтня 2021
Площа:
75.50 м2
Тип об’єкта:
Приміщення
Тип аукціону:
Англійський аукціон
Статус аукціону:
Аукціон не відбувся
Тип угоди:
Оренда
Розмір мінімального кроку:
250.00 ₴
Розмір гарантійного внеску:
7 787.98 ₴
Початок прийому пропозицій:
27.10.2021 11:43:41
Завершення прийому пропозицій:
25.11.2021 20:00:00
Лот:
UA-PS-2021-10-27-000012-3
№ лоту (УТК):
UTK190821_02Т
Лот виставляється на торги (раз):
3
Стислий опис майна:
Пропонуються до оренди приміщення 1-го поверху. Будівля знаходиться біля м. Оболонь, розвинена інфраструктура, зручний під’їзд до будівлі, високі автомобільний і пішохідні потоки. Приміщення потребують косметичного ремонту. Характеристики: •Кількість поверхів –4; •Загальна площа будівлі –4653,3 кв. м.; •Опалення централізоване (міське); •Земельна ділянка –0,4727 га.
Адреса місцезнаходження майна:
Україна, м.Київ, Київ, . Малиновського, 19-А, літ. «А»
Схожі пропозиції
м. Київ, вул. Салютна, 5-А, літ. «Б», Оренда – приміщення 2-го та 3-го поверхів, площею 1048,20 м2.(В)
80 732.36 грн
77.02 грн / м2
Приміщення
м. Київ, вул. Салютна, 5-А, літ. «Б», Оренда – приміщення 2-го та 3-го поверхів, площею 1048,20 м2.(В)
Україна, м.Київ, Київ, вул. Салютна 5-А
27.07.2023
м. Київ, вул. Героїв полку «Азов» (колишня Малиновського Маршала, 19-А)   Оренда – приміщення 1-го поверху площею 55,8 кв.м. (В)
19 911.67 грн
356.84 грн / м2
Приміщення
м. Київ, вул. Героїв полку «Азов» (колишня Малиновського Маршала, 19-А) Оренда – приміщення 1-го поверху площею 55,8 кв.м. (В)
Україна, м.Київ, Київ, вул.Героїв полку«Азов» (М.Малиновського19-А)
31.01.2023
м. Київ, вул. Ореста Васкула (Феодори Пушиної), 27. Оренда – приміщення 3-го поверху, площею 7,5 кв.м (В)
2 223.60 грн
296.48 грн / м2
Приміщення
м. Київ, вул. Ореста Васкула (Феодори Пушиної), 27. Оренда – приміщення 3-го поверху, площею 7,5 кв.м (В)
Україна, м.Київ, м. Київ, вул. Ореста Васкула (Феодори Пушиної), 27
м. Київ, вул. Ісаакяна, 3 Оренда – Приміщення 2-го поверху площею 149,81 кв.м. (В)
39 707.14 грн
265.05 грн / м2
Приміщення
м. Київ, вул. Ісаакяна, 3 Оренда – Приміщення 2-го поверху площею 149,81 кв.м. (В)
Україна, м.Київ, Київ, вул. Ісаакяна, 3
Переглянуті пропозиції
21.06.2024
Рівненська обл., Дубенський р-н., смт. Демидівка, вул. Миру, 28. Оренда – складські приміщення 1 поверху площею 128 м. кв. (В)
2 264.32 грн
17.69 грн / м2
Приміщення
Рівненська обл., Дубенський р-н., смт. Демидівка, вул. Миру, 28. Оренда – складські приміщення 1 поверху площею 128 м. кв. (В)
Україна, Рівненська обл., Дубенський р-н., смт. Демидівка, вул. Миру, 28
09.06.2023
Харківська обл., смт. Борова, вул. Центральна, 3, будівля Літ. А. Оренда – приміщення першого поверху, площею 65,0 кв.м. (В)
500.50 грн
7.70 грн / м2
Приміщення
Харківська обл., смт. Борова, вул. Центральна, 3, будівля Літ. А. Оренда – приміщення першого поверху, площею 65,0 кв.м. (В)
Україна, Харківська обл., смт. Борова, вул. Центральна, 3, будівля Літ. А
26.04.2023
ДОВГОСТРОКОВА ОРЕНДА! м. Київ, вул. Ісаакяна, 3. Оренда – Приміщення 3-го поверху площею 501,5 кв.м. (В)
75 957.19 грн
151.46 грн / м2
Приміщення
ДОВГОСТРОКОВА ОРЕНДА! м. Київ, вул. Ісаакяна, 3. Оренда – Приміщення 3-го поверху площею 501,5 кв.м. (В)
Україна, м.Київ, Київ, вулиця Ісаакяна, 3
27.09.2022
Кіровоградська обл., м. Гайворон, вул. Героїв Майдану, 4. Оренда – приміщення 2-го поверху площею 58,22 кв.м. (В)
500.11 грн
8.59 грн / м2
Приміщення
Кіровоградська обл., м. Гайворон, вул. Героїв Майдану, 4. Оренда – приміщення 2-го поверху площею 58,22 кв.м. (В)
Україна, Харківська обл., м. Гайворон, вул. Героїв Майдану, 4