ДОВГОСТРОКОВА ОРЕНДА! м. Київ, вул. Ісаакяна, 3. Оренда – Приміщення 3-го поверху площею 501,5 кв.м. (В)

75 957.19 грн
151.46 грн / м2
Україна, м.Київ, Київ, вулиця Ісаакяна, 3
Перейти до аукціону на сайті
  • Інформація
  • Опис
  • Документи
Дата оголошення пропозиції:
24 березня 2023
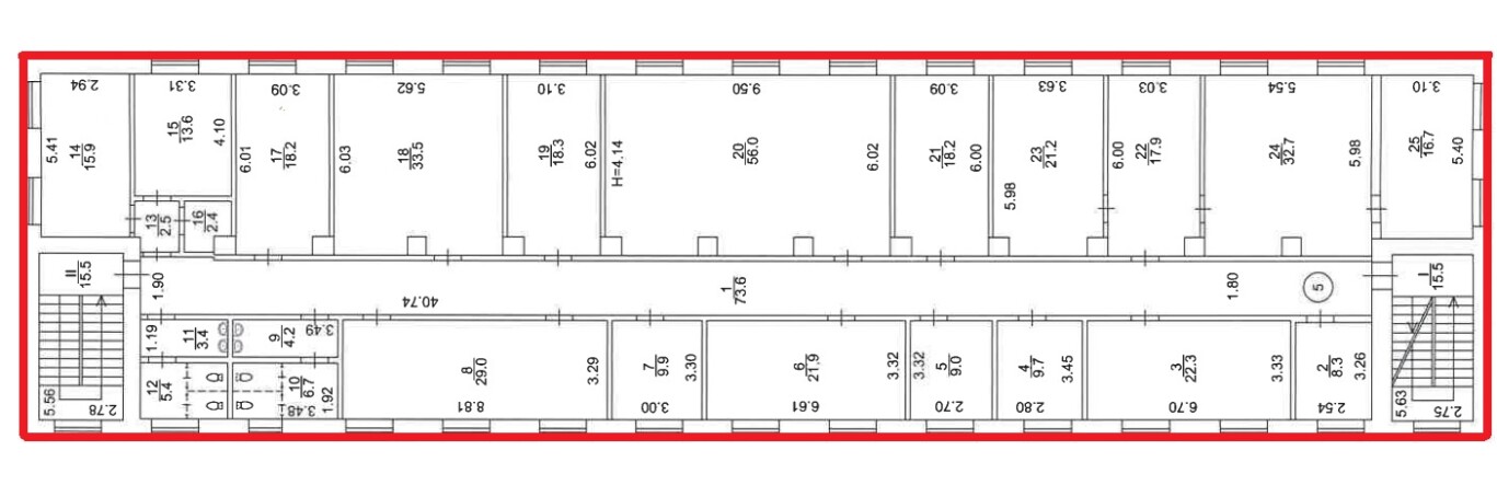
Площа:
501.50 м2
Тип об’єкта:
Приміщення
Тип аукціону:
Англійський аукціон
Статус аукціону:
Аукціон не відбувся
Тип угоди:
Оренда
Розмір мінімального кроку:
800.00 ₴
Розмір гарантійного внеску:
45 574.31 ₴
Початок прийому пропозицій:
24.03.2023 14:12:00
Завершення прийому пропозицій:
25.04.2023 20:00:00
Проведення аукціону:
26.04.2023 12:05:00
Лот:
CLE001-UA-20230324-94323
№ лоту (УТК):
UTK040422_04T
Лот виставляється на торги (раз):
10
Стислий опис майна:
Пропонується до оренди офісні приміщення третього поверху, площею 501,5 кв.м. Розташування будівлі у Шевченківському районі міста Києва, місцевість Шулявка. Поруч розвинена інфраструктура, зупинки швидкісного трамваю, маршрутного та громадського транспорту, магазини, кафе, аптеки. Вхід з двору, через прохідну. Доступ вільний 24/7. Характеристики Загальна площа будівлі – 2069,60 м2; Площа запропонована до оренди – 501,5 м2; Опалення – міське (централізоване) Кількість поверхів – 3; Загальна площа земельної ділянки – 0,2892 га;
Адреса місцезнаходження майна:
Україна, м.Київ, Київ, вулиця Ісаакяна, 3
Схожі пропозиції
27.10.2022
м. Київ, вул. Антоновича, 40, Оренда – приміщення 1-го поверху, площею 66,60 кв. м., (В)
29 471.17 грн
442.51 грн / м2
Приміщення
м. Київ, вул. Антоновича, 40, Оренда – приміщення 1-го поверху, площею 66,60 кв. м., (В)
Україна, м.Київ, Київ, вул. Антоновича, 40
31.07.2025
м. Київ, вул. Василя Макуха (Шевченківський р-н), 5Оренда – приміщення цокольного поверху будівлі, площею 375,80 м. кв. (В)
44 956.95 грн
119.63 грн / м2
Приміщення
м. Київ, вул. Василя Макуха (Шевченківський р-н), 5Оренда – приміщення цокольного поверху будівлі, площею 375,80 м. кв. (В)
Україна, м.Київ, Київ, вулиця Василя Макуха, 5
04.06.2025
м. Київ, вул. Архітектора Вербицького, 3 (Дарницький р-н). Оренда – Приміщення 1-го поверху, площею 215,20 м.кв. (В)
25 023.46 грн
116.28 грн / м2
Приміщення
м. Київ, вул. Архітектора Вербицького, 3 (Дарницький р-н). Оренда – Приміщення 1-го поверху, площею 215,20 м.кв. (В)
Україна, м.Київ, Київ, 02091, м. Київ, вул. Архітектора Вербицького , 3
21.10.2025
м. Київ, пр-т. Академіка Глушкова, 38 (Голосіївський р-н). Оренда – приміщення 1-го поверху, загальною площею – 143,60 кв. м.  (В)
15 862.06 грн
110.46 грн / м2
Приміщення
м. Київ, пр-т. Академіка Глушкова, 38 (Голосіївський р-н). Оренда – приміщення 1-го поверху, загальною площею – 143,60 кв. м. (В)
Україна, м.Київ, Київ, 03187, м. Київ, пр-т. Академіка Глушкова, 38 (Голосіївський р-н)
Переглянуті пропозиції
27.09.2022
Кіровоградська обл., м. Гайворон, вул. Героїв Майдану, 4. Оренда – приміщення 2-го поверху площею 58,22 кв.м. (В)
500.11 грн
8.59 грн / м2
Приміщення
Кіровоградська обл., м. Гайворон, вул. Героїв Майдану, 4. Оренда – приміщення 2-го поверху площею 58,22 кв.м. (В)
Україна, Харківська обл., м. Гайворон, вул. Героїв Майдану, 4
17.10.2023
м. Харків, вул. Конторська,14.Оренда – приміщення 4-го поверху площею 25,8 кв.м (В)
1 787.94 грн
69.30 грн / м2
Приміщення
м. Харків, вул. Конторська,14.Оренда – приміщення 4-го поверху площею 25,8 кв.м (В)
Україна, Харківська обл., м. Харків, вул. Конторська,14
30.12.2022
м. Київ, вул. Ісаакяна, 3 Оренда – Приміщення 2-го поверху площею 149,81 кв.м. (В)
22 690.22 грн
151.46 грн / м2
Приміщення
м. Київ, вул. Ісаакяна, 3 Оренда – Приміщення 2-го поверху площею 149,81 кв.м. (В)
Україна, м.Київ, Київ, вулиця Ісаакяна, 3
21.10.2022
м. Київ, вул. Ісаакяна, 3. Оренда – Приміщення 1-го поверху площею 57,90 кв.м. (В)
10 961.63 грн
189.32 грн / м2
Приміщення
м. Київ, вул. Ісаакяна, 3. Оренда – Приміщення 1-го поверху площею 57,90 кв.м. (В)
Україна, м.Київ, Київ, вулиця Ісаакяна, 3