м. Київ, вул. Ісаакяна, 3. Оренда – Приміщення 1-го поверху площею 57,90 кв.м. (В)

10 961.63 грн
189.32 грн / м2
Україна, м.Київ, Київ, вулиця Ісаакяна, 3
Перейти до аукціону на сайті
  • Інформація
  • Опис
  • Документи
Дата оголошення пропозиції:
20 вересня 2022
Площа:
57.90 м2
Тип об’єкта:
Приміщення
Тип аукціону:
Англійський аукціон
Статус аукціону:
Аукціон не відбувся
Тип угоди:
Оренда
Розмір мінімального кроку:
120.00 ₴
Розмір гарантійного внеску:
6 576.98 ₴
Початок прийому пропозицій:
20.09.2022 15:58:31
Завершення прийому пропозицій:
20.10.2022 20:00:00
Проведення аукціону:
21.10.2022 12:45:00
Лот:
CLE001-UA-20220920-95941
№ лоту (УТК):
UTK040422_03T
Лот виставляється на торги (раз):
6
Стислий опис майна:
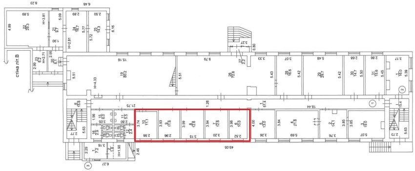
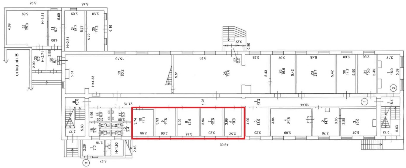
Пропонується до оренди офісні приміщення першого поверху, площею 57,90 кв.м. Розташування будівлі у Шевченківському районі міста Києва, місцевість Шулявка. Поруч розвинена інфраструктура, зупинки швидкісного трамваю, маршрутного та громадського транспорту, магазини, кафе, аптеки. Вхід з двору, через прохідну. Доступ вільний 24/7. Характеристики Загальна площа будівлі – 2069,60 м2; Площа запропонована до оренди – 57,90 м2; Опалення – міське (централізоване) Кількість поверхів – 3; Загальна площа земельної ділянки – 0,2892 га; Сан. вузол, водопостачання, каналізація – присутні (на поверсі)
Адреса місцезнаходження майна:
Україна, м.Київ, Київ, вулиця Ісаакяна, 3
Схожі пропозиції
05.12.2023
м. Київ, вул. Антоновича, 40;  Оренда–Будівля, площею 253,0 кв.м. (В)
55 670.12 грн
220.04 грн / м2
Приміщення
м. Київ, вул. Антоновича, 40; Оренда–Будівля, площею 253,0 кв.м. (В)
Україна, м.Київ, Київ, вул. Антоновича, 40
21.10.2025
м. Київ, вул. Салютна, 5-А, літ. «Б» (В). Оренда – приміщення 3-го та 4-го поверху, площею 992,80 м2
59 568.00 грн
60.00 грн / м2
Приміщення
м. Київ, вул. Салютна, 5-А, літ. «Б» (В). Оренда – приміщення 3-го та 4-го поверху, площею 992,80 м2
Україна, м.Київ, Київ, вул. Салютна, 5-А, літ. «Б»
16.08.2022
м. Київ, вул. Макіївська, 3.Оренда – приміщення 2-го поверху, площею 724,10 м2 (В)
33 453.42 грн
46.20 грн / м2
Приміщення
м. Київ, вул. Макіївська, 3.Оренда – приміщення 2-го поверху, площею 724,10 м2 (В)
Україна, м.Київ, Київ, вул. Макіївська, 3
31.07.2025
м. Київ, пр-т. Академіка Глушкова, 38 (Голосіївський р-н). Оренда – приміщення 1-го поверху, загальною площею – 143,60 кв. м.  (В)
15 862.06 грн
110.46 грн / м2
Приміщення
м. Київ, пр-т. Академіка Глушкова, 38 (Голосіївський р-н). Оренда – приміщення 1-го поверху, загальною площею – 143,60 кв. м. (В)
Україна, м.Київ, Київ, 03187, м. Київ, пр-т. Академіка Глушкова, 38 (Голосіївський р-н)