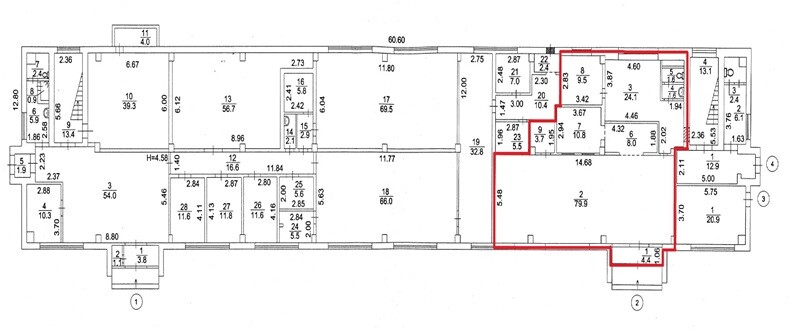
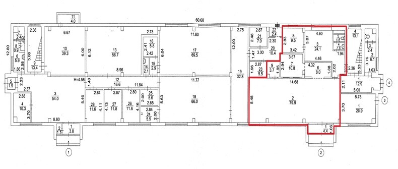
м. Київ, пр-т. Академіка Глушкова, 38 (Голосіївський р-н). Оренда – приміщення 1-го поверху, загальною площею – 143,60 кв. м. (В)

15 862.06 грн
110.46 грн / м2
Україна, м.Київ, Київ, 03187, м. Київ, пр-т. Академіка Глушкова, 38 (Голосіївський р-н)
Перейти до аукціону на сайті
  • Інформація
  • Опис
  • Документи
Дата оголошення пропозиції:
01 липня 2025
Площа:
143.60 м2
Тип об’єкта:
Приміщення
Тип аукціону:
Англійський аукціон
Статус аукціону:
Аукціон не відбувся
Тип угоди:
Оренда
Розмір мінімального кроку:
200.00 ₴
Розмір гарантійного внеску:
9 517.24 ₴
Початок прийому пропозицій:
01.07.2025 00:41:21
Завершення прийому пропозицій:
30.07.2025 20:00:00
Проведення аукціону:
31.07.2025 11:35:00
Лот:
CLE001-UA-20250630-39724
№ лоту (УТК):
UTK200225_42U
Лот виставляється на торги (раз):
4
Стислий опис майна:
Пропонуються до оренди приміщення 1-го поверху, загальною площею 143,6 кв.м. Будівля знаходиться у Голосіївському районі міста Києва, житловий масив Теремки. Зупинки маршрутного транспорту, супермаркети, торгово-розважальні центри. Найближчі станції метро «Теремки». Доступ 24/7. Характеристики: • кількість поверхів – 4; • загальна площа будівлі – 2 777,30 м2; • земельна ділянка – 0,2109 га*; • дозволена потужність – 10,0 кВт; • сан. вузол, водопостачання, каналізація – присутні; • опалення централізоване (міське). *земельна ділянка не є предметом оренди;
Адреса місцезнаходження майна:
Україна, м.Київ, Київ, 03187, м. Київ, пр-т. Академіка Глушкова, 38 (Голосіївський р-н)
Схожі пропозиції
м. Київ, вул. Н. Ужвій, 1. Оренда – приміщення 3-го поверху, площею 21,90 кв.м. (В)
4 328.54 грн
197.65 грн / м2
Приміщення
м. Київ, вул. Н. Ужвій, 1. Оренда – приміщення 3-го поверху, площею 21,90 кв.м. (В)
Україна, м.Київ, Київ, вул. Н. Ужвій, 1
26.10.2023
м. Київ, вул. Героїв Севастополя, 39/8, літ.«В». Оренда – приміщення 1-го поверху блоку зовнішніх споруд, площею 80,60 кв.м. (В)
15 771.00 грн
195.67 грн / м2
Приміщення
м. Київ, вул. Героїв Севастополя, 39/8, літ.«В». Оренда – приміщення 1-го поверху блоку зовнішніх споруд, площею 80,60 кв.м. (В)
Україна, м.Київ, Київ, вулиця Героїв Севастополя, 39/8
08.09.2022
ДОВГОСТРОКОВА ОРЕНДА! м. Київ, проспект Академіка Глушкова, 38. Оренда – приміщення 1-го, 2-го, 3-го, 4-го поверхів, площею 1 932,00 м2 (В)
89 258.40 грн
46.20 грн / м2
Приміщення
ДОВГОСТРОКОВА ОРЕНДА! м. Київ, проспект Академіка Глушкова, 38. Оренда – приміщення 1-го, 2-го, 3-го, 4-го поверхів, площею 1 932,00 м2 (В)
Україна, м.Київ, Київ, проспект Академіка Глушкова, 38
19.11.2025
м. Київ, вул. Академіка Шалімова, 39/8, (Солом'янський р-н). Оренда – гараж, загальною площею – 19,30 кв. м. (В)
3 914.04 грн
202.80 грн / м2
Приміщення
м. Київ, вул. Академіка Шалімова, 39/8, (Солом'янський р-н). Оренда – гараж, загальною площею – 19,30 кв. м. (В)
Україна, м.Київ, Київ, вулиця Академіка Шалімова, 39/8
Переглянуті пропозиції
26.03.2024
Полтавська обл., Кременчуцький р-н, м. Кременчук, вулиця Соборна, 17;  Оренда – приміщення 1-го поверху площею 21,70 кв.м. (В)
1 316.32 грн
60.66 грн / м2
Приміщення
Полтавська обл., Кременчуцький р-н, м. Кременчук, вулиця Соборна, 17; Оренда – приміщення 1-го поверху площею 21,70 кв.м. (В)
Україна, Полтавська обл., Кременчук, Соборна вулиця, 17