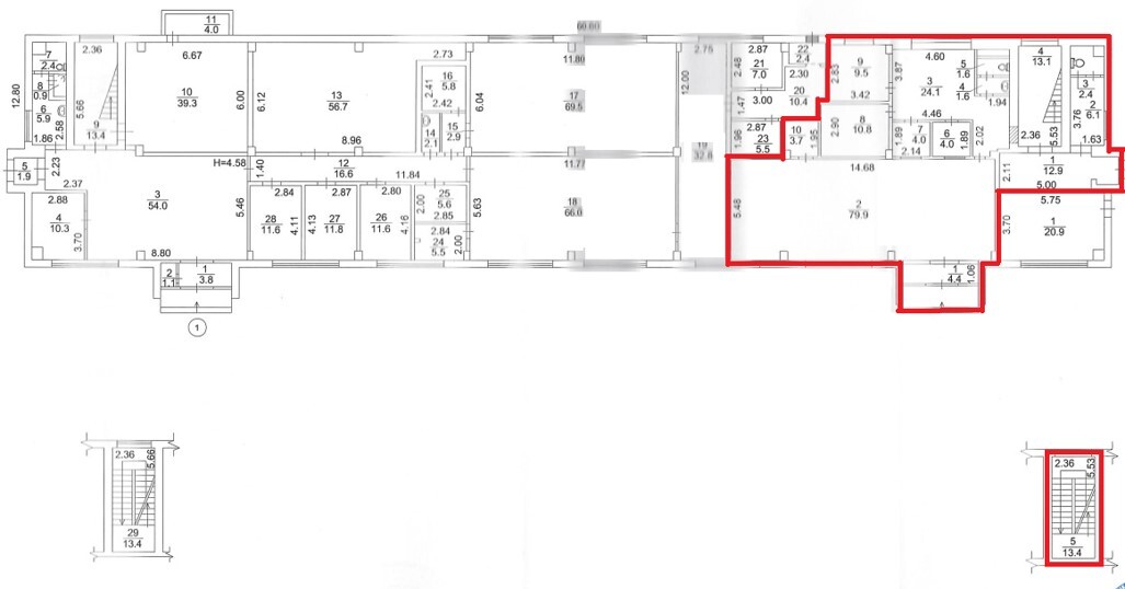
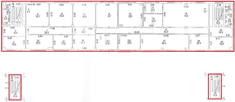
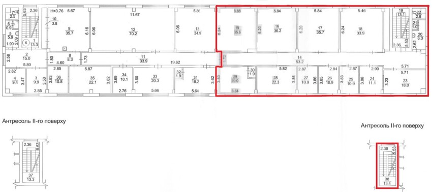
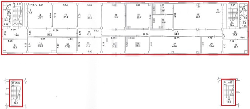
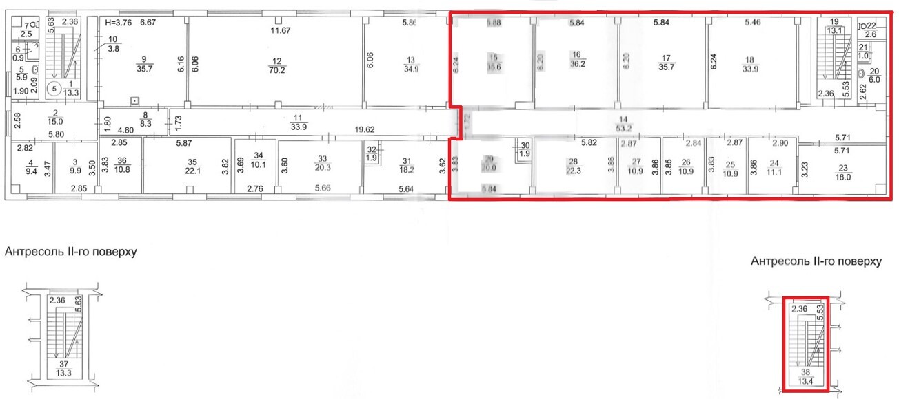
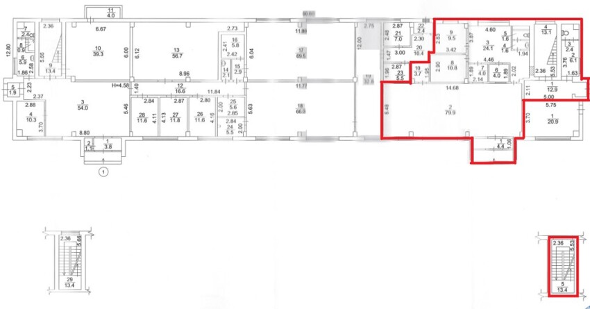
ДОВГОСТРОКОВА ОРЕНДА! м. Київ, проспект Академіка Глушкова, 38. Оренда – приміщення 1-го, 2-го, 3-го, 4-го поверхів, площею 1 932,00 м2 (В)

89 258.40 грн
46.20 грн / м2
Україна, м.Київ, Київ, проспект Академіка Глушкова, 38
Перейти до аукціону на сайті
  • Інформація
  • Опис
  • Документи
Дата оголошення пропозиції:
09 серпня 2022
Площа:
1932.00 м2
Тип об’єкта:
Приміщення
Тип аукціону:
Англійський аукціон
Статус аукціону:
Аукціон не відбувся
Тип угоди:
Оренда
Розмір мінімального кроку:
900.00 ₴
Розмір гарантійного внеску:
53 555.04 ₴
Початок прийому пропозицій:
09.08.2022 15:36:12
Завершення прийому пропозицій:
07.09.2022 20:00:00
Проведення аукціону:
08.09.2022 11:35:00
Лот:
CLE001-UA-20220809-12273
№ лоту (УТК):
UTK180322T
Лот виставляється на торги (раз):
5
Стислий опис майна:
Пропонується до оренди приміщення 1-го, 2-го, 3-го, 4-го поверхів, площею 1932,00 м2. Будівля знаходиться у Голосіївському районі міста Києва, житловий масив Теремки. Зупинки маршрутного транспорту, супермаркети, торговорозважальні центри. Найближчі станції метро «Теремки». Доступ 24/7. Характеристики: • загальна площа будівлі – 2 777,30 м2; • кількість поверхів – 4; • опалення централізоване (міське); • земельна ділянка – 0,2109 га; • каналізація, водозабезпечення, сан. вузол – присутні;
Адреса місцезнаходження майна:
Україна, м.Київ, Київ, проспект Академіка Глушкова, 38
Схожі пропозиції
18.11.2022
м. Київ, вул. Джона Маккейна, №40 , Оренда – приміщення підвалу, площею 44,26 м2 , (В)
9 172.89 грн
207.53 грн / м2
Приміщення
м. Київ, вул. Джона Маккейна, №40 , Оренда – приміщення підвалу, площею 44,26 м2 , (В)
Україна, м.Київ, Київ, вулиця Джона Маккейна, 40
30.12.2022
м. Київ, вул. Маршала Малиновського, 19а. Оренда – приміщення 1-го поверху, площею 91,3 кв.м. (В)
13 178.24 грн
144.34 грн / м2
Приміщення
м. Київ, вул. Маршала Малиновського, 19а. Оренда – приміщення 1-го поверху, площею 91,3 кв.м. (В)
Україна, м.Київ, м. Київ, вулиця Маршала Малиновського, 19А
22.03.2023
м. Київ, вул. Ісаакяна, 3. Оренда – Приміщення 1-го поверху площею 57,9 кв.м. (В)
10 961.63 грн
189.32 грн / м2
Приміщення
м. Київ, вул. Ісаакяна, 3. Оренда – Приміщення 1-го поверху площею 57,9 кв.м. (В)
Україна, м.Київ, Київ, вулиця Ісаакяна, 3
Переглянуті пропозиції
16.01.2024
Рівненська обл., Дубенський р-н. с. Верба вул. Грушевського ,4 . Оренда – виробничі приміщення площею 146,7 кв.м. (В)
2 287.05 грн
15.59 грн / м2
Приміщення
Рівненська обл., Дубенський р-н. с. Верба вул. Грушевського ,4 . Оренда – виробничі приміщення площею 146,7 кв.м. (В)
Україна, Рівненська обл., Дубенський р-н. с. Верба, вул. Грушевського ,4