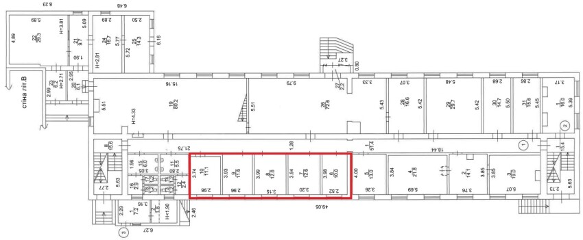
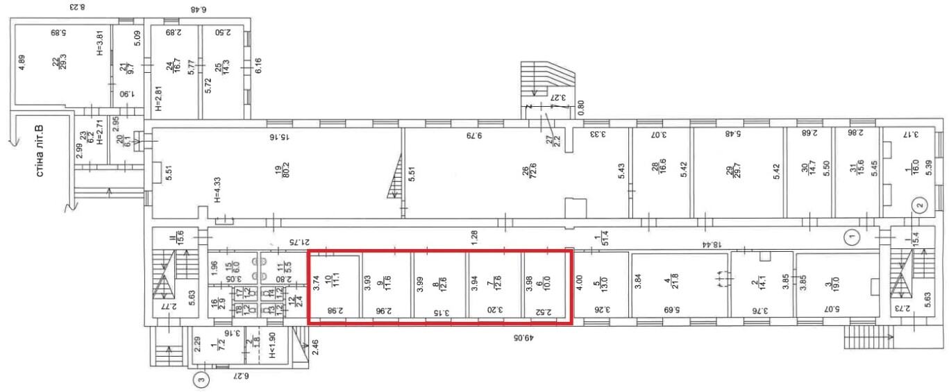
м. Київ, вул. Ісаакяна, 3. Оренда – Приміщення 1-го поверху площею 57,9 кв.м. (В)

10 961.63 грн
189.32 грн / м2
Україна, м.Київ, Київ, вулиця Ісаакяна, 3
Перейти до аукціону на сайті
  • Інформація
  • Опис
  • Документи
Дата оголошення пропозиції:
17 лютого 2023
Площа:
57.90 м2
Тип об’єкта:
Приміщення
Тип аукціону:
Англійський аукціон
Статус аукціону:
Аукціон не відбувся
Тип угоди:
Оренда
Розмір мінімального кроку:
120.00 ₴
Розмір гарантійного внеску:
6 576.98 ₴
Початок прийому пропозицій:
17.02.2023 13:56:28
Завершення прийому пропозицій:
21.03.2023 20:00:00
Проведення аукціону:
22.03.2023 12:50:00
Лот:
CLE001-UA-20230217-93185
№ лоту (УТК):
UTK040422_03T
Лот виставляється на торги (раз):
10
Стислий опис майна:
Пропонується до оренди офісні приміщення першого поверху, площею 57,9 кв.м. Розташування будівлі у Шевченківському районі міста Києва, місцевість Шулявка. Поруч розвинена інфраструктура, зупинки швидкісного трамваю, маршрутного та громадського транспорту, магазини, кафе, аптеки. Вхід з двору, через прохідну. Доступ вільний 24/7. Характеристики Загальна площа будівлі – 2069,6 м2; Площа запропонована до оренди – 57,9 м2; Опалення – міське (централізоване) Кількість поверхів – 3; Загальна площа земельної ділянки – 0,2892 га; Сан. вузол, водопостачання, каналізація – присутні (на поверсі)
Адреса місцезнаходження майна:
Україна, м.Київ, Київ, вулиця Ісаакяна, 3
Схожі пропозиції
23.02.2023
м. Київ, вул. Героїв Севастополя, 39/8. Оренда – приміщення 1-го поверху площею 74,4 м² (В)
10 124.35 грн
136.08 грн / м2
Приміщення
м. Київ, вул. Героїв Севастополя, 39/8. Оренда – приміщення 1-го поверху площею 74,4 м² (В)
Україна, м.Київ, Київ, вулиця Героїв Севастополя, 39/8
м. Київ, вул. Будівельників, 8-Б, оренда – приміщення підвалу, площею 452,60 кв.м. (В)
52 021.84 грн
114.94 грн / м2
Приміщення
м. Київ, вул. Будівельників, 8-Б, оренда – приміщення підвалу, площею 452,60 кв.м. (В)
Україна, м.Київ, Київ, вул. Будівельників, 8-Б
м. Київ, вул. Антоновича, 40, оренда – приміщення підвалу площею 77,00 кв.м. (В)
3 557.40 грн
46.20 грн / м2
Приміщення
м. Київ, вул. Антоновича, 40, оренда – приміщення підвалу площею 77,00 кв.м. (В)
Україна, м.Київ, Київ, вул. Антоновича, 40
15.12.2022
ДОВГОСТРОКОВА ОРЕНДА! м. Київ, вул. Героїв Севастополя, 39/8 літ. «Е». Оренда – приміщення 2-го та 4-го поверхів, площею 1751,80 м2 (В)
80 933.16 грн
46.20 грн / м2
Приміщення
ДОВГОСТРОКОВА ОРЕНДА! м. Київ, вул. Героїв Севастополя, 39/8 літ. «Е». Оренда – приміщення 2-го та 4-го поверхів, площею 1751,80 м2 (В)
Україна, м.Київ, Київ, вулиця Героїв Севастополя, 39
Переглянуті пропозиції
02.09.2025
Полтавська обл., м. Полтава, провулок Латишева, буд. 11-А. Оренда – Частина будівлі площею 1287,60 кв.м. (В)
77 256.00 грн
60.00 грн / м2
Будівля
Полтавська обл., м. Полтава, провулок Латишева, буд. 11-А. Оренда – Частина будівлі площею 1287,60 кв.м. (В)
Україна, Полтавська обл., м. Полтава, провулок Латишева, буд. 11-А
18.07.2025
Дніпропетровська обл., м. Кам’янське, просп. Героїв АТО, 1. Оренда – приміщення 2-го поверху загальною площею 161,0 кв.м (В)
1 932.00 грн
12.00 грн / м2
Приміщення
Дніпропетровська обл., м. Кам’янське, просп. Героїв АТО, 1. Оренда – приміщення 2-го поверху загальною площею 161,0 кв.м (В)
Україна, Дніпропетровська обл., м. Кам’янське, просп. Героїв АТО, 1
Дніпропетровська обл., м. Кам’янське, просп. Свободи, 44. Оренда – приміщення 4-го поверху
477.00 грн
31.80 грн / м2
Приміщення
Дніпропетровська обл., м. Кам’янське, просп. Свободи, 44. Оренда – приміщення 4-го поверху
Україна, Дніпропетровська обл., м. Кам’янське, просп. Свободи, 44
18.04.2025
м. Харків, вул. Амосова,13 в. Оренда – приміщення 2-го поверху площею 34,8 кв.м (В)
2 259.22 грн
64.92 грн / м2
Приміщення
м. Харків, вул. Амосова,13 в. Оренда – приміщення 2-го поверху площею 34,8 кв.м (В)
Україна, Харківська обл., м. Харків, вул. Амосова,13 в