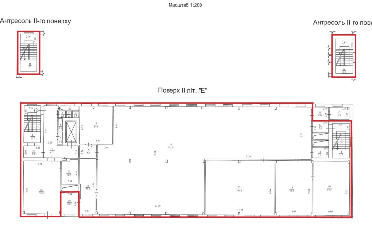
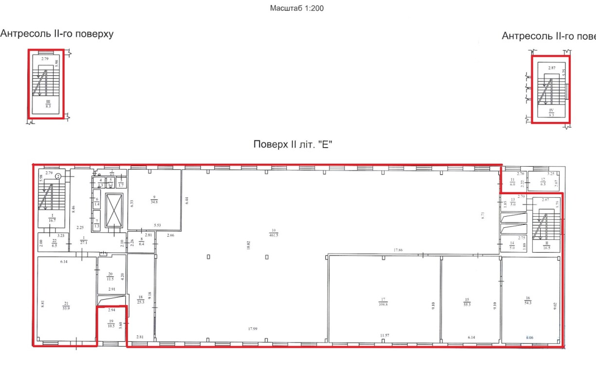
ДОВГОСТРОКОВА ОРЕНДА! м. Київ, вул. Героїв Севастополя, 39/8 літ. «Е». Оренда – приміщення 2-го та 4-го поверхів, площею 1751,80 м2 (В)

80 933.16 грн
46.20 грн / м2
Україна, м.Київ, Київ, вулиця Героїв Севастополя, 39
Перейти до аукціону на сайті
  • Інформація
  • Опис
  • Документи
Дата оголошення пропозиції:
14 листопада 2022
Площа:
1751.80 м2
Тип об’єкта:
Приміщення
Тип аукціону:
Англійський аукціон
Статус аукціону:
Аукціон не відбувся
Тип угоди:
Оренда
Розмір мінімального кроку:
850.00 ₴
Розмір гарантійного внеску:
48 559.90 ₴
Початок прийому пропозицій:
14.11.2022 19:27:23
Завершення прийому пропозицій:
14.12.2022 20:00:00
Проведення аукціону:
15.12.2022 12:25:00
Лот:
CLE001-UA-20221114-36442
№ лоту (УТК):
UTK270522_6T
Лот виставляється на торги (раз):
6
Стислий опис майна:
Пропонується до оренди приміщення 2-го та 4-го поверху площею 1751,80 м². Перегляд запропонованих приміщень за попереднім записом, в робочі дні з пн по пт з 9.00 до 17.00. Контактний тел. для запису: +38 044-234-43-31; 091-114-04-65
Адреса місцезнаходження майна:
Україна, м.Київ, Київ, вулиця Героїв Севастополя, 39
Схожі пропозиції
05.12.2023
ДОВГОСТРОКОВА ОРЕНДА!  м. Київ, вул. Василя Макуха (Шевцова Івана),5; Оренда – приміщення 3-го поверху площею 905,3 кв.м. (В)
132 137.59 грн
145.96 грн / м2
Приміщення
ДОВГОСТРОКОВА ОРЕНДА! м. Київ, вул. Василя Макуха (Шевцова Івана),5; Оренда – приміщення 3-го поверху площею 905,3 кв.м. (В)
Україна, м.Київ, Київ, вул. Василя Макуха (Шевцова Івана), 5
14.03.2025
 м. Київ, вул. Стрілецька, 4-6;  Оренда – приміщення другого поверху площею – 570,00 кв.м (В)
178 489.80 грн
313.14 грн / м2
Приміщення
м. Київ, вул. Стрілецька, 4-6; Оренда – приміщення другого поверху площею – 570,00 кв.м (В)
Україна, м.Київ, Київ, Стрілецька вулиця, 4-6
12.01.2024
м. Київ, вул. Антоновича, 40;  Оренда–Будівля, площею 253,0 кв.м. (В)
55 670.12 грн
220.04 грн / м2
Приміщення
м. Київ, вул. Антоновича, 40; Оренда–Будівля, площею 253,0 кв.м. (В)
Україна, м.Київ, Київ, вул. Антоновича, 40
Переглянуті пропозиції
14.10.2025
м. Київ, вулиця Академіка Шалімова, 39/8, літ. «Е» (Солом’янський р-н). Оренда – приміщення 1-го поверху, площею 74,40 м. кв. (В)
6 858.19 грн
92.18 грн / м2
Приміщення
м. Київ, вулиця Академіка Шалімова, 39/8, літ. «Е» (Солом’янський р-н). Оренда – приміщення 1-го поверху, площею 74,40 м. кв. (В)
Україна, м.Київ, Київ, вулиця Академіка Шалімова, 39/8
01.09.2023
Дніпропетровська обл., м. Дніпро, вул. Князя Ярослава Мудрого, 3. Оренда – приміщення 5-го поверху площею 34,80 кв.м.(В)
4 163.81 грн
119.65 грн / м2
Приміщення
Дніпропетровська обл., м. Дніпро, вул. Князя Ярослава Мудрого, 3. Оренда – приміщення 5-го поверху площею 34,80 кв.м.(В)
Україна, Дніпропетровська обл., м. Дніпро, вул. Князя Ярослава Мудрого, 3
м. Київ, вул. Макіївська, 3.Оренда – приміщення 2-го поверху, площею 724,10 м2 (В)
77 761.10 грн
107.39 грн / м2
Приміщення
м. Київ, вул. Макіївська, 3.Оренда – приміщення 2-го поверху, площею 724,10 м2 (В)
Україна, м.Київ, Київ, вул. Макіївська, 3
14.08.2025
Дніпропетровська обл., м. Кривий Ріг, вул. Покровська, 29а. Оренда – приміщення 1-го поверху площею 74,1 кв. м. (В)
1 482.00 грн
20.00 грн / м2
Приміщення
Дніпропетровська обл., м. Кривий Ріг, вул. Покровська, 29а. Оренда – приміщення 1-го поверху площею 74,1 кв. м. (В)
Україна, Дніпропетровська обл., Кривий Ріг, Кривий Ріг, вул. Покровська, 29а