м. Київ, вул. Героїв Севастополя, 39/8, літ.«В». Оренда – приміщення 1-го поверху блоку зовнішніх споруд, площею 80,60 кв.м. (В)

15 771.00 грн
195.67 грн / м2
Україна, м.Київ, Київ, вулиця Героїв Севастополя, 39/8
Перейти до аукціону на сайті
  • Інформація
  • Опис
  • Документи
Дата оголошення пропозиції:
25 вересня 2023
Площа:
80.60 м2
Тип об’єкта:
Приміщення
Тип аукціону:
Англійський аукціон
Статус аукціону:
Аукціон не відбувся
Тип угоди:
Оренда
Розмір мінімального кроку:
1 600.00 ₴
Розмір гарантійного внеску:
9 462.60 ₴
Початок прийому пропозицій:
25.09.2023 19:56:10
Завершення прийому пропозицій:
25.10.2023 20:00:00
Проведення аукціону:
26.10.2023 12:20:00
Лот:
CLE001-UA-20230925-28626
№ лоту (УТК):
UTK010323_1T
Лот виставляється на торги (раз):
6
Стислий опис майна:
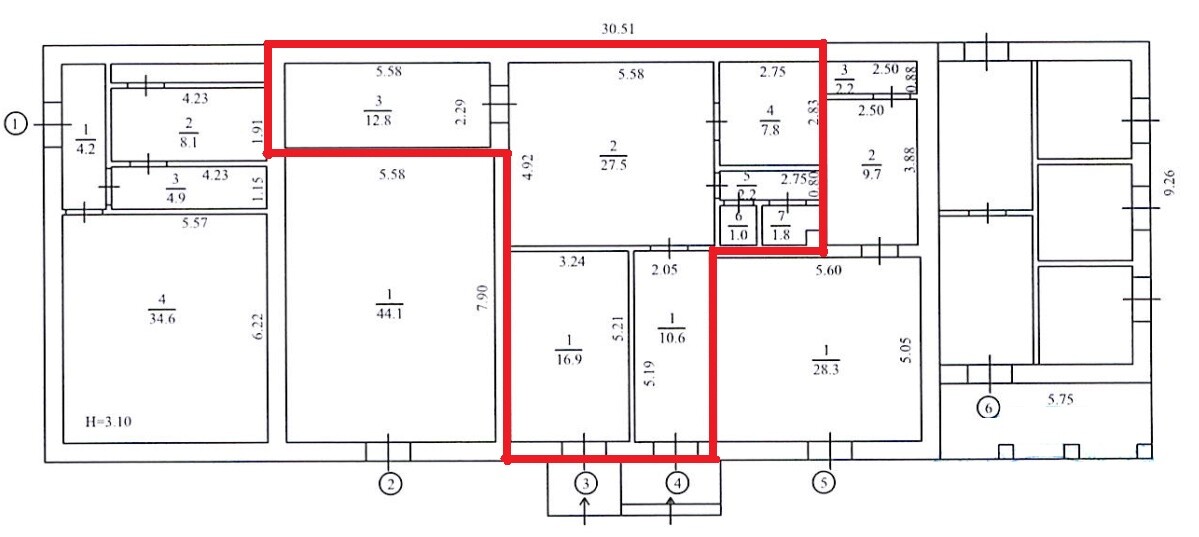
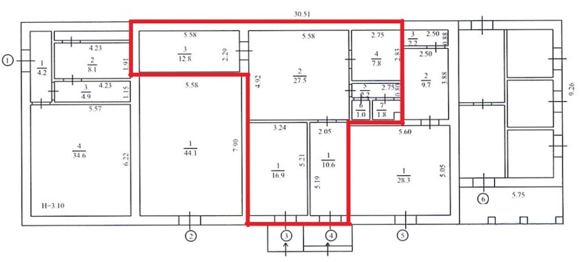
Пропонується до оренди приміщення 1-го поверху блоку зовнішніх споруд, площею 80,60 кв.м.. Розташування будівлі у Солом'янському районі міста Києва, місцевості Відрадний та Новокараваєві дачі. Поруч розвинена інфраструктура, зупинки маршрутного транспорту, трамваю, магазини, кафе, аптеки, середній автомобільний і пішохідний потоки. Вхід з вулиці Героїв Севастополя та з прохідної. Доступ 24/7. Характеристики: - загальна площа будівлі – 216,40 кв.м.; - кількість поверхів – 1; - загальна площа земельної ділянки – 0,9713 га; - опалення – відсутнє; - сан. вузол, каналізація, водопостачання – присутне;
Адреса місцезнаходження майна:
Україна, м.Київ, Київ, вулиця Героїв Севастополя, 39/8
Схожі пропозиції
м. Київ, вул. Архітектора Вербицького, 3. Оренда – Приміщення 1-го, 3-го, 4-го поверхів, площею 1191,50 м2 (В)
114 098.04 грн
95.76 грн / м2
Приміщення
м. Київ, вул. Архітектора Вербицького, 3. Оренда – Приміщення 1-го, 3-го, 4-го поверхів, площею 1191,50 м2 (В)
Україна, м.Київ, Київ, вул. Архітектора Вербицького, 3
05.09.2025
Довгострокова оренда! 01033, м. Київ, вул. Антоновича, 40 (В). Оренда – Будівля, площею - 253,00 м. кв.
51 217.32 грн
202.44 грн / м2
Приміщення
Довгострокова оренда! 01033, м. Київ, вул. Антоновича, 40 (В). Оренда – Будівля, площею - 253,00 м. кв.
Україна, м.Київ, Київ, 01033, м. Київ, вул. Антоновича, 40
17.06.2025
м. Київ, вул. Наталії Ужвій 1 (Подільський р-н). Оренда – приміщення 3-го поверху, загальною площею – 68,50 м. кв. (В)
8 883.94 грн
129.69 грн / м2
Приміщення
м. Київ, вул. Наталії Ужвій 1 (Подільський р-н). Оренда – приміщення 3-го поверху, загальною площею – 68,50 м. кв. (В)
Україна, м.Київ, Київ, 04108, м. Київ, вул. Наталії Ужвій 1
м. Київ, вул. Антоновича, 40, оренда – приміщення 1-го поверху, площею 66,60 кв.м. (В)
37 511.12 грн
563.23 грн / м2
Приміщення
м. Київ, вул. Антоновича, 40, оренда – приміщення 1-го поверху, площею 66,60 кв.м. (В)
Україна, м.Київ, Київ, вул. Антоновича, 40
Переглянуті пропозиції
05.06.2024
Чернігівська обл., м. Городня, вул. Чернігівська (Чорновуса), 7;   Оренда – гаражно-складське приміщення загальною площею 223,1 кв.м. (В)
1 325.21 грн
5.94 грн / м2
Приміщення
Чернігівська обл., м. Городня, вул. Чернігівська (Чорновуса), 7; Оренда – гаражно-складське приміщення загальною площею 223,1 кв.м. (В)
Україна, Чернігівська обл., Городня, вулиця Чернігівська, 7
30.04.2025
Чернігівська обл., с-ще Варва, вул. Шевченка, 39. Оренда – приміщення 2-го поверху площею 212,80 кв.м ( В)
6 530.83 грн
30.69 грн / м2
Приміщення
Чернігівська обл., с-ще Варва, вул. Шевченка, 39. Оренда – приміщення 2-го поверху площею 212,80 кв.м ( В)
Україна, Чернігівська обл., Варва, 17600 Чернігівська обл., с-ще Варва, вул. Шевченка, 39
07.12.2023
Львівська обл., смт. Новий Яричів, вул. І. Франка , 1. Оренда – гараж, площею 40,70 кв.м. (В)
1 214.49 грн
29.84 грн / м2
Приміщення
Львівська обл., смт. Новий Яричів, вул. І. Франка , 1. Оренда – гараж, площею 40,70 кв.м. (В)
Україна, Львівська обл., смт. Новий Яричів, вул. І. Франка , 1
05.11.2024
Харківська обл., м. Харків, вул. Коцарська, 45, літер «А-4»;  Оренда – приміщення на 2-му поверсі загальною площею 14,30 кв.м. (В)
768.77 грн
53.76 грн / м2
Приміщення
Харківська обл., м. Харків, вул. Коцарська, 45, літер «А-4»; Оренда – приміщення на 2-му поверсі загальною площею 14,30 кв.м. (В)
Україна, Харківська обл., Харків, вулиця Коцарська, 45