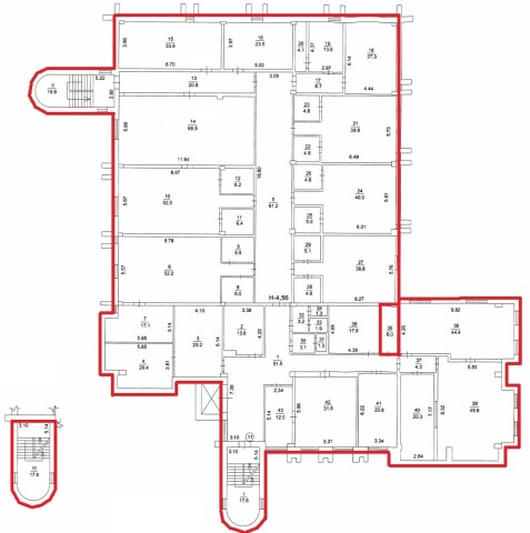
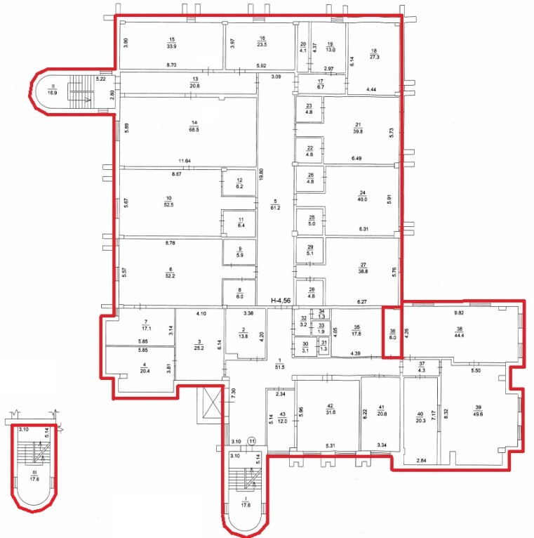
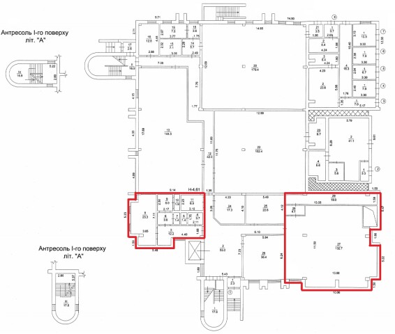
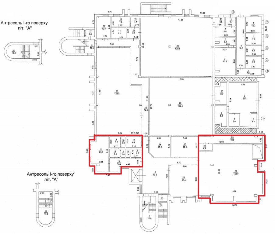
м. Київ, вул. Архітектора Вербицького, 3. Оренда – Приміщення 1-го, 3-го, 4-го поверхів, площею 1191,50 м2 (В)

114 098.04 грн
95.76 грн / м2
Україна, м.Київ, Київ, вул. Архітектора Вербицького, 3
Перейти до аукціону на сайті
  • Інформація
  • Опис
  • Документи
Дата оголошення пропозиції:
22 березня 2022
Площа:
1191.50 м2
Тип об’єкта:
Приміщення
Тип аукціону:
Англійський аукціон
Статус аукціону:
Аукціон не відбувся
Тип угоди:
Оренда
Розмір мінімального кроку:
1 200.00 ₴
Розмір гарантійного внеску:
68 458.82 ₴
Початок прийому пропозицій:
22.03.2022 14:02:05
Завершення прийому пропозицій:
19.04.2022 20:00:00
Лот:
UA-PS-2022-03-22-000012-2
№ лоту (УТК):
UTK080222_02T
Лот виставляється на торги (раз):
2
Стислий опис майна:
Пропонується до оренди приміщення 1-го, 3-го, 4-го поверхів площею 1191,50 м2. Будівля знаходиться в Дарницькому районі міста Києва, житловий масив Харківський. Зупинки маршрутного транспорту, супермаркети, торгово-розважальні центри. Найближчі станції метро «Харківська», «Вирлиця». Характеристики: • загальна площа будівлі – 4804,70 м2; • кількість поверхів – 5; • опалення централізоване (міське); • земельна ділянка – 0,5530 га; • каналізація, водозабезпечення, сан. вузол – присутні;
Адреса місцезнаходження майна:
Україна, м.Київ, Київ, вул. Архітектора Вербицького, 3
Схожі пропозиції
м. Київ, вул. Антоновича, 40, оренда – приміщення підвалу площею 77,00 кв.м. (В)
14 960.33 грн
194.29 грн / м2
Приміщення
м. Київ, вул. Антоновича, 40, оренда – приміщення підвалу площею 77,00 кв.м. (В)
Україна, м.Київ, Київ, вул. Антоновича, 40
21.10.2025
м. Київ, вул. Василя Макуха (Шевченківський р-н), 5. Оренда – приміщення 3-го поверху площею 905,30 м2 (В)
54 318.00 грн
60.00 грн / м2
Приміщення
м. Київ, вул. Василя Макуха (Шевченківський р-н), 5. Оренда – приміщення 3-го поверху площею 905,30 м2 (В)
Україна, м.Київ, Київ, вулиця Василя Макуха, 5
25.07.2025
м. Київ, вул. Академіка Шалімова, 39/8, літ. «Е» (Солом’янський р-н) (В). Оренда – приміщення 2-го та 4-го поверхів, площею 1751,80 м2
105 108.00 грн
60.00 грн / м2
Приміщення
м. Київ, вул. Академіка Шалімова, 39/8, літ. «Е» (Солом’янський р-н) (В). Оренда – приміщення 2-го та 4-го поверхів, площею 1751,80 м2
Україна, м.Київ, Київ, м. Київ, вул. Академіка Шалімова, 39/8
Переглянуті пропозиції
Рівненська обл., смт. Гоща вул. Незалежності, 37. Оренда приміщення 1-го поверху
63.80 грн
5.80 грн / м2
Приміщення
Рівненська обл., смт. Гоща вул. Незалежності, 37. Оренда приміщення 1-го поверху
Україна, Рівненська обл., смт. Гоща, вул. Незалежності, 37
16.05.2024
Харківська обл., Лозівський р-н, м. Первомайський, 3-й мікрорайон, буд.1-А. Оренда – приміщення на 1-му поверсі загальною площею 221,70 кв.м. (В)
5 145.66 грн
23.21 грн / м2
Приміщення
Харківська обл., Лозівський р-н, м. Первомайський, 3-й мікрорайон, буд.1-А. Оренда – приміщення на 1-му поверсі загальною площею 221,70 кв.м. (В)
Україна, Харківська обл., Лозівський р-н, м. Первомайський, 3-й мікрорайон, буд.1-А