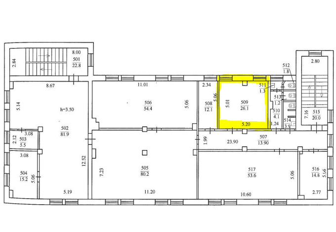
Дніпропетровська обл., м. Кам’янське, просп. Свободи, 44. Оренда – приміщення 5-го поверху загальною площею 26,10 кв.м (В)

1 412.01 грн
54.10 грн / м2
Україна, Дніпропетровська обл., м. Кам’янське, просп. Свободи, 44
Перейти до аукціону на сайті
  • Інформація
  • Опис
  • Документи
Дата оголошення пропозиції:
26 березня 2024
Площа:
26.10 м2
Тип об’єкта:
Приміщення
Тип аукціону:
Англійський аукціон
Статус аукціону:
Аукціон не відбувся
Тип угоди:
Оренда
Розмір мінімального кроку:
100.00 ₴
Розмір гарантійного внеску:
847.21 ₴
Початок прийому пропозицій:
26.03.2024 11:01:14
Завершення прийому пропозицій:
25.04.2024 20:00:00
Проведення аукціону:
26.04.2024 11:30:00
Лот:
CLE001-UA-20240326-71513
№ лоту (УТК):
UTK230224_14P
Лот виставляється на торги (раз):
2
Стислий опис майна:
Пропонується до оренди приміщення 5-го поверху площею 26,10 кв.м (прим.№509). Будівля в центрі міста. Поруч знаходяться об’єкти соціальної інфраструктури: відділення пошти та банку, клініка, магазини, ринок тощо. Стан приміщення задовільний, підходить для офісу, ідеальне місце під розвиток будь-якого бізнесу. Зручна транспортна розв’язка та інфраструктура. Характеристики: Кількість поверхів – 5 Загальна площа – 2506,00 кв.м Площа запропонована до оренди – 26,10 кв.м Електропостачання, водопостачання, теплопостачання Земельна ділянка – 0,2324 га (договір оренди) Ресурсні податки – 2,68 грн за 1 кв.м
Адреса місцезнаходження майна:
Україна, Дніпропетровська обл., м. Кам’янське, просп. Свободи, 44
Схожі пропозиції
Дніпропетровська обл., м. Кривий Ріг, вул. Головка Адмірала, 71. Оренда – приміщення 3-го поверху, площею 777,3 кв.м. (В)
39 828.85 грн
51.24 грн / м2
Приміщення
Дніпропетровська обл., м. Кривий Ріг, вул. Головка Адмірала, 71. Оренда – приміщення 3-го поверху, площею 777,3 кв.м. (В)
Україна, Дніпропетровська обл., Кривий Ріг, вул. Головка Адмірала, 71
09.12.2022
Дніпропетровська обл., м. Кривий Ріг, вул. Бикова, 9А. Оренда – приміщення гаражу площею 282,10 кв.м. (П)
12 812.98 грн
45.42 грн / м2
Приміщення
Дніпропетровська обл., м. Кривий Ріг, вул. Бикова, 9А. Оренда – приміщення гаражу площею 282,10 кв.м. (П)
Україна, Дніпропетровська обл., м. Кривий Ріг, вул. Бикова, 9А
29.10.2024
Дніпропетровська обл., м. Дніпро, вул. Князя Ярослава Мудрого, 3. Оренда – приміщення 4-го поверху площею 51,40 кв.м (В)
8 679.40 грн
168.86 грн / м2
Приміщення
Дніпропетровська обл., м. Дніпро, вул. Князя Ярослава Мудрого, 3. Оренда – приміщення 4-го поверху площею 51,40 кв.м (В)
Україна, Дніпропетровська обл., м. Дніпро, вул. Князя Ярослава Мудрого, 3
Дніпропетровська обл., м. Дніпро, вул. Князя Ярослава Мудрого, 3. Оренда – приміщення  4-го  поверху площею 21,60 кв.м. (В)
3 066.12 грн
141.95 грн / м2
Приміщення
Дніпропетровська обл., м. Дніпро, вул. Князя Ярослава Мудрого, 3. Оренда – приміщення 4-го поверху площею 21,60 кв.м. (В)
Україна, Дніпропетровська обл., м. Дніпро, вул. Князя Ярослава Мудрого, 3
Переглянуті пропозиції
Дніпропетровська обл., м. Першотравенськ, вул. Кобзаря, 15. Оренда – приміщення 1-го поверху площею 15,30 кв.м. (В)
734.40 грн
48.00 грн / м2
Приміщення
Дніпропетровська обл., м. Першотравенськ, вул. Кобзаря, 15. Оренда – приміщення 1-го поверху площею 15,30 кв.м. (В)
Україна, Дніпропетровська обл., м. Першотравенськ, вул. Кобзаря, 15
18.03.2025
Дніпропетровська обл., м. Дніпро, просп. Героїв, 14. Оренда – приміщення 2-го поверху загальною площею 77,70 кв.м (В)
4 998.15 грн
64.33 грн / м2
Приміщення
Дніпропетровська обл., м. Дніпро, просп. Героїв, 14. Оренда – приміщення 2-го поверху загальною площею 77,70 кв.м (В)
Україна, Дніпропетровська обл., м. Дніпро, просп. Героїв, 14
26.10.2023
ДОВГОСТРОКОВА ОРЕНДА!  м. Київ, вул. Василя Макуха (Шевцова Івана),5; Оренда – приміщення 3-го поверху площею 905,3 кв.м. (В)
132 137.59 грн
145.96 грн / м2
Приміщення
ДОВГОСТРОКОВА ОРЕНДА! м. Київ, вул. Василя Макуха (Шевцова Івана),5; Оренда – приміщення 3-го поверху площею 905,3 кв.м. (В)
Україна, м.Київ, Київ, вул. Василя Макуха (Шевцова Івана), 5
м. Дніпро, проспект Пушкіна, 75А. Оренда - приміщення 2-го поверху площею 746,4 кв.м.
14 308.49 грн
19.17 грн / м2
Приміщення
м. Дніпро, проспект Пушкіна, 75А. Оренда - приміщення 2-го поверху площею 746,4 кв.м.
Україна, Дніпропетровська обл., м. Дніпро, проспект Пушкіна, 75А