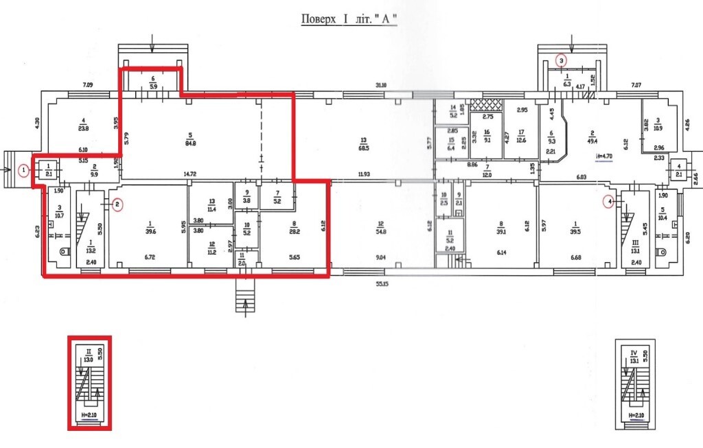
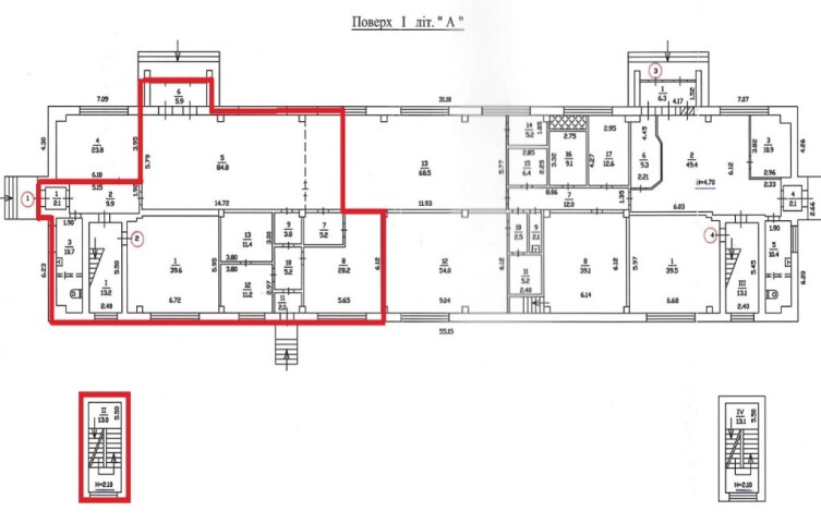
Довгострокова оренда – приміщення 1,2,3-го поверху виробничого будинку АТС-440, площею 1129,9 кв.м. м. Київ, вул. Олени Теліги, 39-г, літ. «А» (В)

52 201.38 грн
46.20 грн / м2
Україна, м.Київ, Київ, вулиця Олени Теліги, 39
Перейти до аукціону на сайті
  • Інформація
  • Опис
  • Документи
Дата оголошення пропозиції:
15 травня 2023
Площа:
1129.90 м2
Тип об’єкта:
Приміщення
Тип аукціону:
Англійський аукціон
Статус аукціону:
Аукціон не відбувся
Тип угоди:
Оренда
Розмір мінімального кроку:
600.00 ₴
Розмір гарантійного внеску:
31 320.83 ₴
Початок прийому пропозицій:
15.05.2023 10:20:50
Завершення прийому пропозицій:
19.06.2023 20:00:00
Проведення аукціону:
20.06.2023 11:25:00
Лот:
CLE001-UA-20230515-54352
№ лоту (УТК):
UTK080722_02T
Лот виставляється на торги (раз):
10
Стислий опис майна:
Пропонуються до оренди приміщення будинку виробничого АТС -440, літ. «А», площею 1129,9 м2. Будівля розташована в Шевченківському районі міста Києва, місцевість Сирець. Поруч розвинена інфраструктура, зупинки маршрутного транспорту, супермаркети, 5 хв. від ст. м. «Дорогожичі». Вхід з двору. Доступ 24/7. Характеристики • кількість поверхів – 3; • максимальна електропотужність – 60 кВт; • сан. вузол, каналізація, теплозабезпечення – присутнє, не задовільний стан; • площа будівлі – літ. «А» - 2000,4 м2; • опалення централізоване (міське); • земельна ділянка – 0,3000 га;* *земельна ділянка не є предметом оренди
Адреса місцезнаходження майна:
Україна, м.Київ, Київ, вулиця Олени Теліги, 39
Схожі пропозиції
23.04.2025
м. Київ, вул. Наталії Ужвій 1 (Подільський р-н). Оренда – приміщення 1-го поверху, загальною площею – 41,00 м. кв.(В)
5 362.80 грн
130.80 грн / м2
Приміщення
м. Київ, вул. Наталії Ужвій 1 (Подільський р-н). Оренда – приміщення 1-го поверху, загальною площею – 41,00 м. кв.(В)
Україна, м.Київ, Київ, 04108, м. Київ, вул. Наталії Ужвій 1
30.03.2023
м. Київ, вул. Героїв Севастополя, 39/8. Оренда – приміщення 1-го поверху площею 74,4 м² (В)
7 231.68 грн
97.20 грн / м2
Приміщення
м. Київ, вул. Героїв Севастополя, 39/8. Оренда – приміщення 1-го поверху площею 74,4 м² (В)
Україна, м.Київ, Київ, вулиця Героїв Севастополя, 39/8
31.07.2025
 м. Київ, вул. Архітектора Вербицького, 3 (Дарницький р-н). Оренда – Приміщення підвалу, площею 198,70 кв.м. (В)
13 591.08 грн
68.40 грн / м2
Приміщення
м. Київ, вул. Архітектора Вербицького, 3 (Дарницький р-н). Оренда – Приміщення підвалу, площею 198,70 кв.м. (В)
Україна, м.Київ, Київ, 02091, м. Київ, вул. Архітектора Вербицького , 3
01.03.2023
ДОВГОСТРОКОВА ОРЕНДА! м. Київ, вул. Героїв Севастополя, 39/8 літ. «Е». Оренда – приміщення 2-го та 4-го поверхів, площею 1751,8 м2 (В)
80 933.16 грн
46.20 грн / м2
Приміщення
ДОВГОСТРОКОВА ОРЕНДА! м. Київ, вул. Героїв Севастополя, 39/8 літ. «Е». Оренда – приміщення 2-го та 4-го поверхів, площею 1751,8 м2 (В)
Україна, м.Київ, Київ, вулиця Героїв Севастополя, 39
Переглянуті пропозиції
29.03.2024
ДОВГОСТРОКОВА ОРЕНДА! м. Київ, вул. Героїв Севастополя, 39/8 літ. «Е»;  Оренда – приміщення 2-го та 4-го поверхів, площею 1751,8 кв.м. (В)
239 944.05 грн
136.97 грн / м2
Приміщення
ДОВГОСТРОКОВА ОРЕНДА! м. Київ, вул. Героїв Севастополя, 39/8 літ. «Е»; Оренда – приміщення 2-го та 4-го поверхів, площею 1751,8 кв.м. (В)
Україна, м.Київ, Київ, вул. Героїв Севастополя, 39/8(Е)