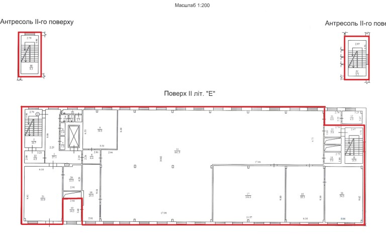
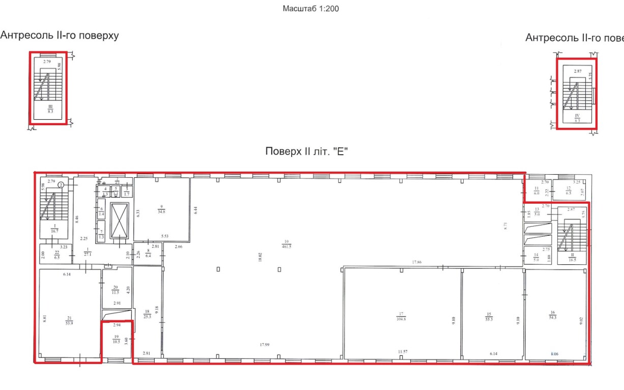
ДОВГОСТРОКОВА ОРЕНДА! м. Київ, вул. Героїв Севастополя, 39/8 літ. «Е». Оренда – приміщення 2-го та 4-го поверхів, площею 1751,8 м2 (В)

80 933.16 грн
46.20 грн / м2
Україна, м.Київ, Київ, вулиця Героїв Севастополя, 39
Перейти до аукціону на сайті
  • Інформація
  • Опис
  • Документи
Дата оголошення пропозиції:
27 січня 2023
Площа:
1751.80 м2
Тип об’єкта:
Приміщення
Тип аукціону:
Англійський аукціон
Статус аукціону:
Аукціон не відбувся
Тип угоди:
Оренда
Розмір мінімального кроку:
850.00 ₴
Розмір гарантійного внеску:
48 559.90 ₴
Початок прийому пропозицій:
27.01.2023 13:55:43
Завершення прийому пропозицій:
28.02.2023 20:00:00
Проведення аукціону:
01.03.2023 11:10:00
Лот:
CLE001-UA-20230127-36010
№ лоту (УТК):
UTK270522_6T
Лот виставляється на торги (раз):
8
Стислий опис майна:
Пропонується до оренди приміщення 2-го та 4-го поверху площею 1751,8 м². Перегляд запропонованих приміщень за попереднім записом, в робочі дні з пн по пт з 9.00 до 17.00. Контактний тел. для запису: +38 044-234-43-31; 091-114-04-65
Адреса місцезнаходження майна:
Україна, м.Київ, Київ, вулиця Героїв Севастополя, 39
Схожі пропозиції
ДОВГОСТРОКОВА ОРЕНДА! м. Київ, вул. Антоновича, 40, оренда – приміщення 5-го поверху, площею 768,70 кв.м. (В)
276 732.00 грн
360.00 грн / м2
Приміщення
ДОВГОСТРОКОВА ОРЕНДА! м. Київ, вул. Антоновича, 40, оренда – приміщення 5-го поверху, площею 768,70 кв.м. (В)
Україна, м.Київ, Київ, вул. Антоновича, 40
21.10.2025
м. Київ, вул. Джона Маккейна, 40, літ. «А» (Печерський р-н). Оренда – група приміщень у підвалі, площею 24,80 кв.м (В)
4 192.69 грн
169.06 грн / м2
Приміщення
м. Київ, вул. Джона Маккейна, 40, літ. «А» (Печерський р-н). Оренда – група приміщень у підвалі, площею 24,80 кв.м (В)
Україна, м.Київ, Київ, вул. Джона Маккейна, 40, літ. «А» (Печерський р-н)
26.12.2024
ДОВГОСТРОКОВА ОРЕНДА! м. Київ, вул. Героїв Севастополя, 39/8 літ. «Е»;  Оренда – приміщення 2-го та 4-го поверхів, площею 1751,8 кв.м. (В)
239 944.05 грн
136.97 грн / м2
Приміщення
ДОВГОСТРОКОВА ОРЕНДА! м. Київ, вул. Героїв Севастополя, 39/8 літ. «Е»; Оренда – приміщення 2-го та 4-го поверхів, площею 1751,8 кв.м. (В)
Україна, м.Київ, Київ, вул. Героїв Севастополя, 39/8(Е)
30.04.2025
м. Київ, вул. Ореста Васкула, 27 (Святошинський р-н). Оренда – приміщення на 3-му поверсі, загальною площею - 521,10 м.кв. (В)
83 626.13 грн
160.48 грн / м2
Приміщення
м. Київ, вул. Ореста Васкула, 27 (Святошинський р-н). Оренда – приміщення на 3-му поверсі, загальною площею - 521,10 м.кв. (В)
Україна, м.Київ, Київ, вулиця Ореста Васкула, 27
Переглянуті пропозиції
06.11.2024
Полтавська обл., смт. Семенівка, вулиця Воїнів Інтернаціоналістів, 12/9. Оренда – приміщення 3-го поверху загальною площею 114,00 кв.м. (В)
2 015.52 грн
17.68 грн / м2
Приміщення
Полтавська обл., смт. Семенівка, вулиця Воїнів Інтернаціоналістів, 12/9. Оренда – приміщення 3-го поверху загальною площею 114,00 кв.м. (В)
Україна, Полтавська обл., смт. Семенівка, вулиця Воїнів Інтернаціоналістів, 12/9
15.10.2025
Сумська обл., м. Суми, вул. Іллінська, буд. 2. Оренда – офісні приміщення 8-го поверху площею 81,30 кв.м. (В)
2 439.00 грн
30.00 грн / м2
Офіс
Сумська обл., м. Суми, вул. Іллінська, буд. 2. Оренда – офісні приміщення 8-го поверху площею 81,30 кв.м. (В)
Україна, Сумська обл., м. Суми, вул. Іллінська, буд. 2
09.08.2022
Полтавська обл., Кременчуцький р-н., смт. Градизьк, вул. Героїв Дніпра, буд. 15. Оренда – частина будівлі площею 33,60 кв.м. (В)
499.63 грн
14.87 грн / м2
Будівля
Полтавська обл., Кременчуцький р-н., смт. Градизьк, вул. Героїв Дніпра, буд. 15. Оренда – частина будівлі площею 33,60 кв.м. (В)
Україна, Полтавська обл., Градизьк, вул. Героїв Дніпра, буд. 15
14.06.2024
м. Київ, вул. Архітектора Вербицького, 3;   Оренда – приміщення 1-го та 3-го поверху площею 263,7 кв.м. (В)
25 251.91 грн
95.76 грн / м2
Приміщення
м. Київ, вул. Архітектора Вербицького, 3; Оренда – приміщення 1-го та 3-го поверху площею 263,7 кв.м. (В)
Україна, м.Київ, Київ, вул. Архітектора Вербицького, 3