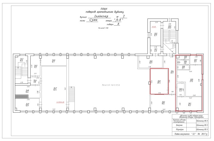
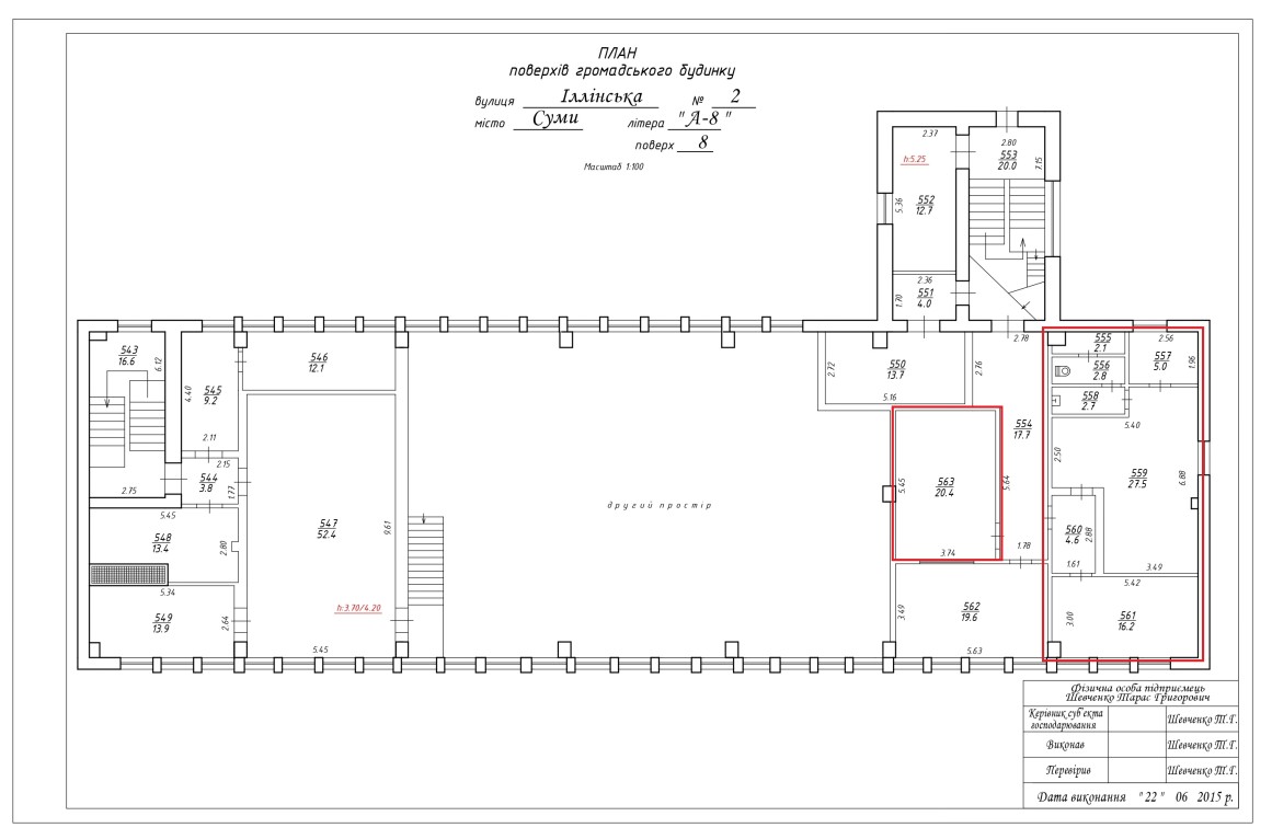
Сумська обл., м. Суми, вул. Іллінська, буд. 2. Оренда – офісні приміщення 8-го поверху площею 81,30 кв.м. (В)

2 439.00 грн
30.00 грн / м2
Україна, Сумська обл., м. Суми, вул. Іллінська, буд. 2
Перейти до аукціону на сайті
  • Інформація
  • Опис
  • Документи
Дата оголошення пропозиції:
15 вересня 2025
Площа:
81.30 м2
Тип об’єкта:
Офіс
Тип аукціону:
Англійський аукціон
Статус аукціону:
Аукціон не відбувся
Тип угоди:
Оренда
Розмір мінімального кроку:
100.00 ₴
Розмір гарантійного внеску:
1 463.40 ₴
Початок прийому пропозицій:
15.09.2025 13:42:29
Завершення прийому пропозицій:
14.10.2025 20:00:00
Проведення аукціону:
15.10.2025 11:05:00
Лот:
CLE001-UA-20250915-01770
№ лоту (УТК):
UTK060922_06P
Лот виставляється на торги (раз):
10
Стислий опис майна:
Пропонується до оренди офісні приміщення 8-го поверху площею 81,30 кв. м. на восьмиповерхового будинку зв`язку в центральній частині міста. Окремий вхід з фасаду будівлі. Чудова візуалізація з дороги, поруч зупинки, магазини, аптеки, універмаг. Відсутній доступ до приміщення маломобільних груп населення. Характеристики: кількість поверхів – 8; Загальна площа – 11 677,00 кв. м.; Площа запропонована до оренди – 81,30 кв. м.; Опалення, електропостачання, санвузол та водопостачання - наявні; земельна ділянка – 0.6776 га (договір оренди ЗД); стан приміщення – добрий
Адреса місцезнаходження майна:
Україна, Сумська обл., м. Суми, вул. Іллінська, буд. 2
Схожі пропозиції
21.03.2024
Сумська обл., м. Путивль, вул. Першотравнева, буд. 86. Оренда – офісні приміщення 2-го поверху площею 54,60 кв.м. (В)
518.70 грн
9.50 грн / м2
Офіс
Сумська обл., м. Путивль, вул. Першотравнева, буд. 86. Оренда – офісні приміщення 2-го поверху площею 54,60 кв.м. (В)
Україна, Сумська обл., м. Путивль, вул. Першотравнева, буд. 86
18.08.2022
Сумська обл., м. Білопілля, вул. Старопутивльська, буд. 47. Оренда – офісні приміщення 2-го поверху, площею 85,6 кв.м. (В)
505.04 грн
5.90 грн / м2
Офіс
Сумська обл., м. Білопілля, вул. Старопутивльська, буд. 47. Оренда – офісні приміщення 2-го поверху, площею 85,6 кв.м. (В)
Україна, Сумська обл., м. Білопілля, вул. Старопутивльська, буд. 47
24.11.2022
Сумська обл., м. Буринь, вул. Першотравнева, 5. Оренда – офісні приміщення 2-го поверху площею 22,10 кв.м. (В)
823.89 грн
37.28 грн / м2
Офіс
Сумська обл., м. Буринь, вул. Першотравнева, 5. Оренда – офісні приміщення 2-го поверху площею 22,10 кв.м. (В)
Україна, Сумська обл., м. Буринь, вул. Першотравнева, 5
Переглянуті пропозиції
09.08.2022
Полтавська обл., Кременчуцький р-н., смт. Градизьк, вул. Героїв Дніпра, буд. 15. Оренда – частина будівлі площею 33,60 кв.м. (В)
499.63 грн
14.87 грн / м2
Будівля
Полтавська обл., Кременчуцький р-н., смт. Градизьк, вул. Героїв Дніпра, буд. 15. Оренда – частина будівлі площею 33,60 кв.м. (В)
Україна, Полтавська обл., Градизьк, вул. Героїв Дніпра, буд. 15
14.06.2024
м. Київ, вул. Архітектора Вербицького, 3;   Оренда – приміщення 1-го та 3-го поверху площею 263,7 кв.м. (В)
25 251.91 грн
95.76 грн / м2
Приміщення
м. Київ, вул. Архітектора Вербицького, 3; Оренда – приміщення 1-го та 3-го поверху площею 263,7 кв.м. (В)
Україна, м.Київ, Київ, вул. Архітектора Вербицького, 3
26.11.2025
Харківська обл., м. Харків, вул. Старошишківська, 5-А. Оренда – приміщення на 1-му поверсі площею 35,90 кв.м. (В)
1 077.00 грн
30.00 грн / м2
Приміщення
Харківська обл., м. Харків, вул. Старошишківська, 5-А. Оренда – приміщення на 1-му поверсі площею 35,90 кв.м. (В)
Україна, Харківська обл., м. Харків, вул. Старошишківська, 5-А