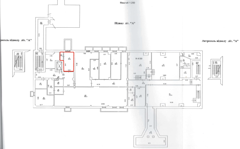
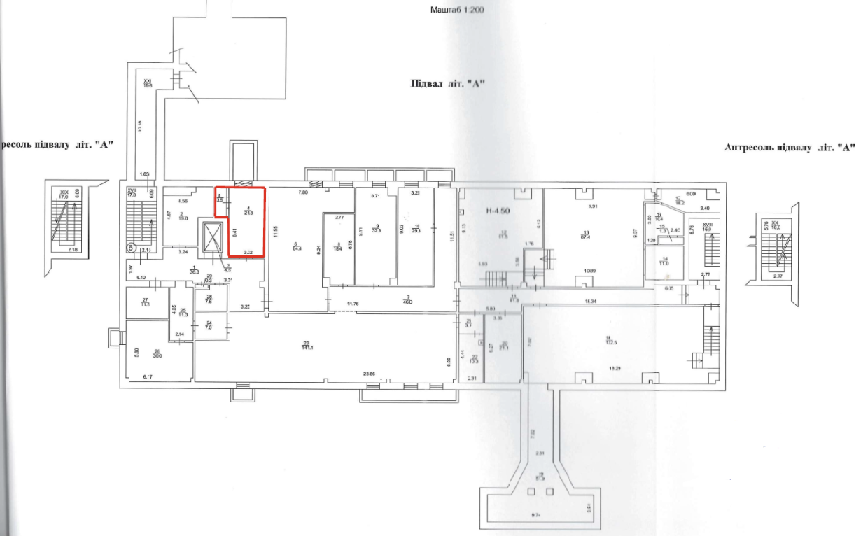
м. Київ, вул. Джона Маккейна, 40, літ. «А» (Печерський р-н). Оренда – група приміщень у підвалі, площею 24,80 кв.м (В)

4 192.69 грн
169.06 грн / м2
Україна, м.Київ, Київ, вул. Джона Маккейна, 40, літ. «А» (Печерський р-н)
Перейти до аукціону на сайті
  • Інформація
  • Опис
  • Документи
Дата оголошення пропозиції:
18 вересня 2025
Площа:
24.80 м2
Тип об’єкта:
Приміщення
Тип аукціону:
Англійський аукціон
Статус аукціону:
Аукціон не відбувся
Тип угоди:
Оренда
Розмір мінімального кроку:
350.00 ₴
Розмір гарантійного внеску:
2 515.61 ₴
Початок прийому пропозицій:
18.09.2025 14:24:04
Завершення прийому пропозицій:
20.10.2025 20:00:00
Проведення аукціону:
21.10.2025 12:15:00
Лот:
CLE001-UA-20250918-56965
№ лоту (УТК):
UTK200225_33U
Лот виставляється на торги (раз):
6
Стислий опис майна:
До оренди пропонується група приміщень у підвалі, площею 24,80 кв. м. Будівля знаходиться в Печерському районі міста Києва, місцевість Саперне поле, в пішому доступі до ст. м. Дружби Народів (до 5 хв.) та ст. м. Либідська, ст. м. Печерська (до 10 хв.), у районі розвинена інфраструктура й відмінна транспортна розв’язка, поруч торгові центри, супермаркети, парки.. Вхід з вул. Джона Маккейна. Характеристики • кількість поверхів – 4; • загальна площа – 4 778,70 кв. м; • площа запропонована до оренди – 24,80 кв.м; • опалення централізоване (міське); • водопостачання, каналізація, сан. вузол – відсутні на поверсі; • земельна ділянка – 0,465 га (договір оренди)
Адреса місцезнаходження майна:
Україна, м.Київ, Київ, вул. Джона Маккейна, 40, літ. «А» (Печерський р-н)
Схожі пропозиції
30.08.2022
м. Київ, вул. Джона Маккейна, №40. Оренда – приміщення підвалу, площею 24,80 м2 (В)
1 145.76 грн
46.20 грн / м2
Приміщення
м. Київ, вул. Джона Маккейна, №40. Оренда – приміщення підвалу, площею 24,80 м2 (В)
Україна, м.Київ, Київ, вулиця Джона Маккейна, 40
14.03.2023
м. Київ, вул. Князів Острозьких (Московська), 23. Оренда – приміщення 1-го поверху будівлі, площею 197,3 м2 (В)
77 546.79 грн
393.04 грн / м2
Приміщення
м. Київ, вул. Князів Острозьких (Московська), 23. Оренда – приміщення 1-го поверху будівлі, площею 197,3 м2 (В)
Україна, м.Київ, Київ, вул. Князів Острозьких (Московська), 23
18.10.2022
м. Київ, вул. Дегтярівська, 28-А. Оренда – приміщення 1-го поверху площею 115,95 кв.м. (В)
12 453.03 грн
107.40 грн / м2
Приміщення
м. Київ, вул. Дегтярівська, 28-А. Оренда – приміщення 1-го поверху площею 115,95 кв.м. (В)
Україна, м.Київ, Київ, вулиця Дегтярівська, 28А