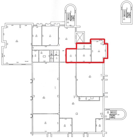
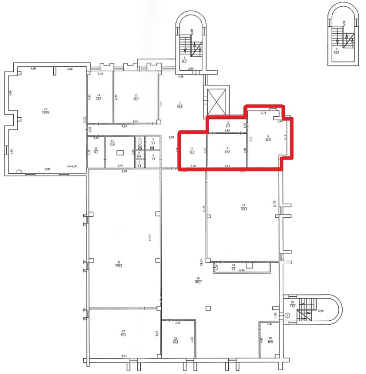
м. Київ, вул. Миколи Голего, 8. Оренда – приміщення 3-го поверху площею 79,7 м2 (В)

17 215.20 грн
216.00 грн / м2
Україна, м.Київ, Київ, вулиця Миколи Голего, 8
Перейти до аукціону на сайті
  • Інформація
  • Опис
  • Документи
Дата оголошення пропозиції:
28 грудня 2022
Площа:
79.70 м2
Тип об’єкта:
Приміщення
Тип аукціону:
Англійський аукціон
Статус аукціону:
Аукціон не відбувся
Тип угоди:
Оренда
Розмір мінімального кроку:
173.00 ₴
Розмір гарантійного внеску:
10 329.12 ₴
Початок прийому пропозицій:
28.12.2022 00:53:02
Завершення прийому пропозицій:
30.01.2023 20:00:00
Проведення аукціону:
31.01.2023 11:30:00
Лот:
CLE001-UA-20221227-62498
№ лоту (УТК):
UTK271222_00Т
Лот виставляється на торги (раз):
1
Стислий опис майна:
Пропонуються до оренди приміщення 3-го поверху площею 79,7 м2. Розташування будівлі у Солом'янському районі міста Києва, місцевість Караваєві дачі. Поруч розвинена інфраструктура, зупинки маршрутного транспорту, магазини, кафе, аптеки, середній автомобільний і пішохідний потоки. Характеристики: • загальна площа будівлі – 5639,8 м2 ; • сан. вузол, каналізація, водопостачання – присутне; • кількість поверхів – 4; • енергетична потужність – 5 кВт; • опалення централізоване (міське); • площа земельної ділянки – 0,3625 га*; *земельна ділянка не є предметом оренди.
Адреса місцезнаходження майна:
Україна, м.Київ, Київ, вулиця Миколи Голего, 8
Схожі пропозиції
08.04.2025
м. Київ, вул. Наталії Ужвій 1 (Подільський р-н). Оренда – приміщення 3-го поверху, загальною площею – 68,50 м. кв. (В)
7 615.83 грн
111.18 грн / м2
Приміщення
м. Київ, вул. Наталії Ужвій 1 (Подільський р-н). Оренда – приміщення 3-го поверху, загальною площею – 68,50 м. кв. (В)
Україна, м.Київ, Київ, 04108, м. Київ, вул. Наталії Ужвій 1
м. Київ, вул. Макіївська, 3.Оренда – приміщення 2-го поверху площею 724,1 кв.м. (В)
23 417.39 грн
32.34 грн / м2
Приміщення
м. Київ, вул. Макіївська, 3.Оренда – приміщення 2-го поверху площею 724,1 кв.м. (В)
Україна, м.Київ, Київ, вул. Макіївська, 3
06.04.2023
м. Київ, вул. Будівельників, 8-Б Оренда – приміщення 1-го, 2-го та 3-го поверхів, площею 1520,3 м. кв. (П)
133 558.36 грн
87.85 грн / м2
Приміщення
м. Київ, вул. Будівельників, 8-Б Оренда – приміщення 1-го, 2-го та 3-го поверхів, площею 1520,3 м. кв. (П)
Україна, м.Київ, м. Київ, вулиця Будівельників, 8-Б
Переглянуті пропозиції
22.01.2025
ДОВГОСТРОКОВА ОРЕНДА!  м. Київ, вул. Петра Курінного, 2-Б;  Оренда – приміщення 3-го поверху площею - 614,80 кв.м. (В)
86 815.90 грн
141.21 грн / м2
Приміщення
ДОВГОСТРОКОВА ОРЕНДА! м. Київ, вул. Петра Курінного, 2-Б; Оренда – приміщення 3-го поверху площею - 614,80 кв.м. (В)
Україна, м.Київ, Київ, вулиця Петра Курінного, 2-Б
12.01.2024
м. Київ, вул. Будівельників, 8-Б;   Оренда – приміщення підвалу, площею 452,6 кв.м. (В)
42 300.00 грн
93.46 грн / м2
Приміщення
м. Київ, вул. Будівельників, 8-Б; Оренда – приміщення підвалу, площею 452,6 кв.м. (В)
Україна, м.Київ, Київ, вулиця Будівельників, 8-Б
26.11.2025
Чернігівська обл., м. Новгород-Сіверський, вул. Князя Ігоря, 34-А. Оренда – приміщення 2-го поверху площею 100,10 кв.м. (В)
1 851.85 грн
18.50 грн / м2
Приміщення
Чернігівська обл., м. Новгород-Сіверський, вул. Князя Ігоря, 34-А. Оренда – приміщення 2-го поверху площею 100,10 кв.м. (В)
Україна, Чернігівська обл., м. Новгород-Сіверський, вул. Князя Ігоря, 34-А
14.12.2022
Сумська обл., Шосткинський р-н., смт. Свеса, вул. Грушевського (Леніна), буд. 4. Оренда – нежитлове приміщення площею 27,50 кв.м. (В)