м. Київ, вул. Будівельників, 8-Б Оренда – приміщення 1-го, 2-го та 3-го поверхів, площею 1520,3 м. кв. (П)

133 558.36 грн
87.85 грн / м2
Україна, м.Київ, м. Київ, вулиця Будівельників, 8-Б
Перейти до аукціону на сайті
  • Інформація
  • Опис
  • Документи
Дата оголошення пропозиції:
06 березня 2023
Площа:
1520.30 м2
Тип об’єкта:
Приміщення
Тип аукціону:
Англійський аукціон
Статус аукціону:
Аукціон не відбувся
Тип угоди:
Оренда
Розмір мінімального кроку:
1 500.00 ₴
Розмір гарантійного внеску:
80 135.01 ₴
Початок прийому пропозицій:
06.03.2023 18:10:58
Завершення прийому пропозицій:
05.04.2023 20:00:00
Проведення аукціону:
06.04.2023 12:50:00
Лот:
CLE001-UA-20230306-02469
№ лоту (УТК):
UTK270123_03Т
Лот виставляється на торги (раз):
2
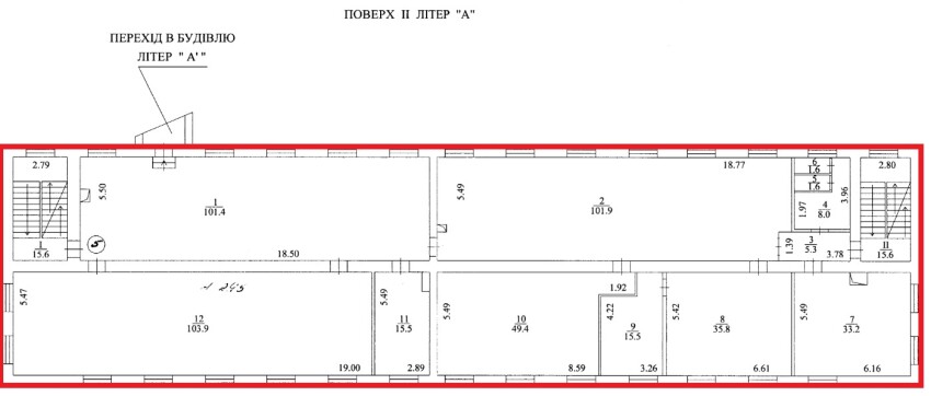
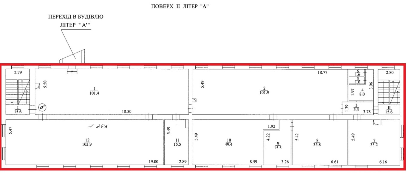
Стислий опис майна:
Пропонуються до оренди приміщення 1-го, 2-го та 3-го поверхів, площею 1520,3 м. кв. Будівля знаходиться у Дніпровському районі міста Києва, місцевість Соцмісто. Поруч розвинена інфраструктура, зупинки маршрутного транспорту, супермаркети, кафе, аптеки, фінансові заклади, в’їзд через майданчик з парко-місцями. Окремий вхід. Доступ 24/7. Характеристики: • кількість поверхів – 3; • опалення централізоване (міське); • земельна ділянка – 0,4851 га; • загальна площа будівлі – 2022,7 м2; • сан. вузол, каналізація, водопостачання – присутні; • енерго потужність – 30 кВт.
Адреса місцезнаходження майна:
Україна, м.Київ, м. Київ, вулиця Будівельників, 8-Б
Схожі пропозиції
05.09.2025
Довгострокова оренда! 01033, м. Київ, вул. Антоновича, 40 (В). Оренда – Будівля, площею - 253,00 м. кв.
51 217.32 грн
202.44 грн / м2
Приміщення
Довгострокова оренда! 01033, м. Київ, вул. Антоновича, 40 (В). Оренда – Будівля, площею - 253,00 м. кв.
Україна, м.Київ, Київ, 01033, м. Київ, вул. Антоновича, 40
м. Київ, вул. Олени Теліги, 39-г, літ. «А», оренда – приміщення виробничої будівлі, площею 1116,90 м2 (В)
131 894.72 грн
118.09 грн / м2
Приміщення
м. Київ, вул. Олени Теліги, 39-г, літ. «А», оренда – приміщення виробничої будівлі, площею 1116,90 м2 (В)
Україна, м.Київ, Київ, вул. Олени Теліги, 39-Г
19.09.2023
м. Київ, вул. Миколи Голего, 8. Оренда – приміщення 1-го поверху площею 30,9 м2 (В)
6 259.41 грн
202.57 грн / м2
Приміщення
м. Київ, вул. Миколи Голего, 8. Оренда – приміщення 1-го поверху площею 30,9 м2 (В)
Україна, м.Київ, Київ, вулиця Миколи Голего, 8
м. Київ, вул. Райдужна, 27-А, оренда – приміщення підвалу, площею 274,70 кв.м. (В)
14 833.80 грн
54.00 грн / м2
Приміщення
м. Київ, вул. Райдужна, 27-А, оренда – приміщення підвалу, площею 274,70 кв.м. (В)
Україна, м.Київ, Київ, вул. Райдужна, 27-А