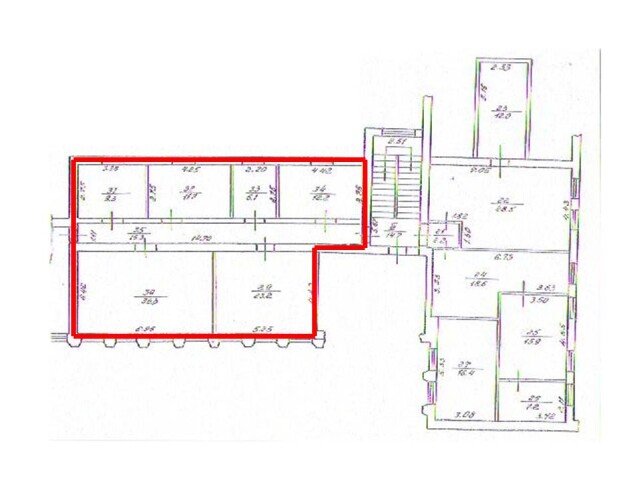
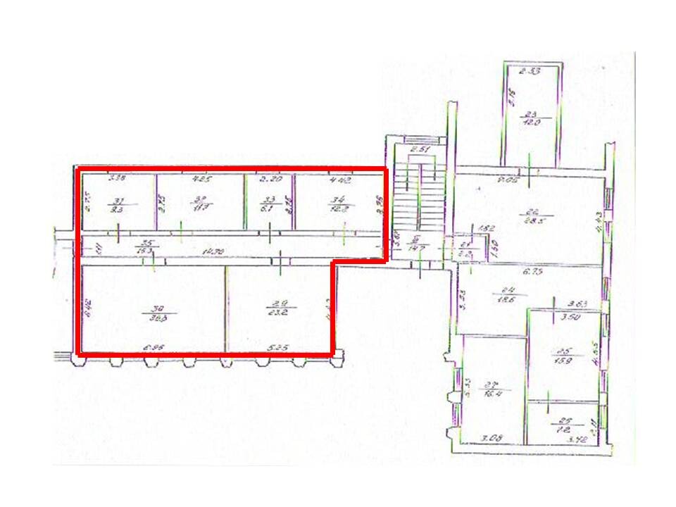
Івано-Франківська обл., Калуський район, смт.Рожнятів, площа Єдності, 9, оренда – Приміщення 3-го поверху площею 109,6 м.кв. (В)

500.87 грн
4.57 грн / м2
Україна, Івано-Франківська обл., Рожнятів, площа Єдності, 9
Перейти до аукціону на сайті
  • Інформація
  • Опис
  • Документи
Дата оголошення пропозиції:
08 червня 2022
Площа:
109.60 м2
Тип об’єкта:
Приміщення
Тип аукціону:
Англійський аукціон
Статус аукціону:
Аукціон не відбувся
Тип угоди:
Оренда
Розмір мінімального кроку:
40.00 ₴
Розмір гарантійного внеску:
300.52 ₴
Початок прийому пропозицій:
08.06.2022 15:42:29
Завершення прийому пропозицій:
11.07.2022 20:00:00
Лот:
UA-PS-2022-06-08-000005-2
№ лоту (УТК):
UTK070721_10Т
Стислий опис майна:
Пропонуються до оренди приміщення 3-го поверху. Будівля знаходиться в центральній частині населеного пункту. Високі пішохідний та транспортний потоки. Характеристики: • кількість поверхів – 3 • опалення газове • земельна ділянка – 0,1126 га (договір оренди)
Адреса місцезнаходження майна:
Україна, Івано-Франківська обл., Рожнятів, площа Єдності, 9
Схожі пропозиції
Івано-Франківська обл., смт. Верховина, вул. Франка, 6. Оренда – Приміщення 2-го поверху 10,8 кв.м.
160.70 грн
14.88 грн / м2
Приміщення
Івано-Франківська обл., смт. Верховина, вул. Франка, 6. Оренда – Приміщення 2-го поверху 10,8 кв.м.
Україна, Івано-Франківська обл., смт. Верховина, вул. Франка, 6
26.02.2021
Івано-Франківська обл., м. Надвірна, вул. Мазепи, 1. Оренда – приміщення 1-го, 4-го та 5-го поверху, площею 775,4 кв.м. (В)
27 759.32 грн
35.80 грн / м2
Приміщення
Івано-Франківська обл., м. Надвірна, вул. Мазепи, 1. Оренда – приміщення 1-го, 4-го та 5-го поверху, площею 775,4 кв.м. (В)
Україна, Івано-Франківська обл., м. Надвірна , вул. Мазепи, 1
28.02.2023
м. Івано-Франківськ, вул. Ребета, 2. Оренда – приміщення складу площею 118,0 кв.м. (В)
5 466.94 грн
46.33 грн / м2
Приміщення
м. Івано-Франківськ, вул. Ребета, 2. Оренда – приміщення складу площею 118,0 кв.м. (В)
Україна, Івано-Франківська обл., м. Івано-Франківськ, вул. Ребета, 2
18.11.2025
Івано-Франківська обл., Калуський р-н, смт. Рожнятів, площа Єдності, 9. Оренда – Приміщення 3-го поверху площею 100,80 м.кв. (В)
1 257.98 грн
12.48 грн / м2
Приміщення
Івано-Франківська обл., Калуський р-н, смт. Рожнятів, площа Єдності, 9. Оренда – Приміщення 3-го поверху площею 100,80 м.кв. (В)
Україна, Івано-Франківська обл., Рожнятів, площа Єдності, 9
Переглянуті пропозиції
22.12.2021
Дніпропетровська обл., м. Кам`янське, пр. Героїв АТО, 1. Оренда – приміщення 4-го поверху площею 293,05 кв.м. (В)
11 569.61 грн
39.49 грн / м2
Приміщення
Дніпропетровська обл., м. Кам`янське, пр. Героїв АТО, 1. Оренда – приміщення 4-го поверху площею 293,05 кв.м. (В)
Україна, Дніпропетровська обл., м. Кам`янське, пр. Героїв АТО, 1