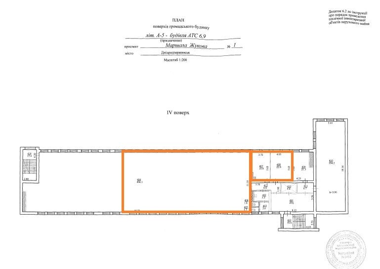
Дніпропетровська обл., м. Кам`янське, пр. Героїв АТО, 1. Оренда – приміщення 4-го поверху площею 293,05 кв.м. (В)

11 569.61 грн
39.49 грн / м2
Україна, Дніпропетровська обл., м. Кам`янське, пр. Героїв АТО, 1
Перейти до аукціону на сайті
  • Інформація
  • Опис
  • Документи
Дата оголошення пропозиції:
22 листопада 2021
Площа:
293.00 м2
Тип об’єкта:
Приміщення
Тип аукціону:
Англійський аукціон
Статус аукціону:
Аукціон не відбувся
Тип угоди:
Оренда
Розмір мінімального кроку:
150.00 ₴
Розмір гарантійного внеску:
6 941.77 ₴
Початок прийому пропозицій:
22.11.2021 13:07:38
Завершення прийому пропозицій:
21.12.2021 20:00:00
Проведення аукціону:
22.12.2021 12:52:23
Лот:
UA-PS-2021-11-22-000032-2
№ лоту (УТК):
UTK130921_02P
Лот виставляється на торги (раз):
3
Стислий опис майна:
Пропонується до оренди приміщення 4-го поверху площею 293,05 кв.м. Будівля в діловому центрі міста. Поруч розташовані відділення пошти, церква, магазини тощо. Вхід в приміщення спільний. Зручна транспортна розв’язка та інфраструктура. Характеристики: Кількість поверхів – 5; Загальна площа – 3830,20 кв.м_ Площа запропонована до оренди – 293,05 кв.м Теплопостачання, електропостачання, водопостачання. Земельна ділянка – 0,2793 га (договір оренди)
Адреса місцезнаходження майна:
Україна, Дніпропетровська обл., м. Кам`янське, пр. Героїв АТО, 1
Схожі пропозиції
06.06.2025
Дніпропетровська обл., м. Дніпро, вул. Пушкіна, 75А. Оренда – приміщення технічного поверху площею 66,80 кв.м (В)
6 710.06 грн
100.45 грн / м2
Приміщення
Дніпропетровська обл., м. Дніпро, вул. Пушкіна, 75А. Оренда – приміщення технічного поверху площею 66,80 кв.м (В)
Україна, Дніпропетровська обл., м. Дніпро, вул. Пушкіна, 75А
10.10.2025
Дніпропетровська обл., м. Кривий Ріг, вул. Водоп`янова, 1а. Оренда – приміщення 1-го поверху, площею 282,50 кв.м. (В)
3 390.00 грн
12.00 грн / м2
Приміщення
Дніпропетровська обл., м. Кривий Ріг, вул. Водоп`янова, 1а. Оренда – приміщення 1-го поверху, площею 282,50 кв.м. (В)
Україна, Дніпропетровська обл., Кривий Ріг, вул. Водоп`янова, 1а
10.10.2025
ДОВГОСТРОКОВА ОРЕНДА! Дніпропетровська обл., м. Кривий Ріг, вул. Героїв АТО, 97. Оренда – приміщення 2-го поверху площею 656,8 кв. м. (В)
19 704.00 грн
30.00 грн / м2
Приміщення
ДОВГОСТРОКОВА ОРЕНДА! Дніпропетровська обл., м. Кривий Ріг, вул. Героїв АТО, 97. Оренда – приміщення 2-го поверху площею 656,8 кв. м. (В)
Україна, Дніпропетровська обл., м. Кривий Ріг, вул. Героїв АТО, 97
Дніпропетровська обл., м. Кривий Ріг, вул. Героїв АТО, 30. Оренда – приміщення 1-го поверху площею 45,3 кв.м. (В)
4 342.01 грн
95.85 грн / м2
Приміщення
Дніпропетровська обл., м. Кривий Ріг, вул. Героїв АТО, 30. Оренда – приміщення 1-го поверху площею 45,3 кв.м. (В)
Україна, Дніпропетровська обл., м. Кривий Ріг, вул. Героїв АТО, 30