Дніпропетровська обл., м. Дніпро, вул. Пушкіна, 75А. Оренда – приміщення технічного поверху площею 66,80 кв.м (В)

6 710.06 грн
100.45 грн / м2
Україна, Дніпропетровська обл., м. Дніпро, вул. Пушкіна, 75А
Перейти до аукціону на сайті
  • Інформація
  • Опис
  • Документи
Дата оголошення пропозиції:
07 травня 2025
Площа:
66.80 м2
Тип об’єкта:
Приміщення
Тип аукціону:
Англійський аукціон
Статус аукціону:
Аукціон не відбувся
Тип угоди:
Оренда
Розмір мінімального кроку:
200.00 ₴
Розмір гарантійного внеску:
4 026.04 ₴
Початок прийому пропозицій:
07.05.2025 14:24:48
Завершення прийому пропозицій:
05.06.2025 20:00:00
Проведення аукціону:
06.06.2025 12:35:00
Лот:
CLE001-UA-20250507-90221
№ лоту (УТК):
UTK090224_08P
Лот виставляється на торги (раз):
10
Стислий опис майна:
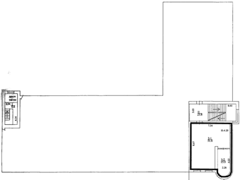
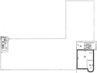
Пропонується до оренди приміщення технічного поверху площею 66,80 кв.м (прим. №3-1, №3-2 по техпаспорту). Розташування - будівля знаходиться в Чечелівському районі міста. Поруч знаходяться відділення банку, магазини, учбові заклади, зупинки громадського транспорту, високий автомобільний і пішохідний потоки. Стан приміщення потребує часткового ремонту. Вхід в приміщення спільний. Характеристики: Кількість поверхів – 5 Загальна площа об'єкту – 2267,5 кв.м Площа запропонована до оренди – 66,80 кв.м Електропостачання, водопостачання, теплопостачання Земельна ділянка – 0, 1095 га (договір оренди) Ресурсні податки – 4,88 грн за 1 кв.м
Адреса місцезнаходження майна:
Україна, Дніпропетровська обл., м. Дніпро, вул. Пушкіна, 75А
Схожі пропозиції
Дніпропетровська обл., м. Кам’янське, просп. Героїв АТО, 1. Оренда – приміщення 3-го поверху, площею 26,30 кв.м. (В)
500.23 грн
19.02 грн / м2
Приміщення
Дніпропетровська обл., м. Кам’янське, просп. Героїв АТО, 1. Оренда – приміщення 3-го поверху, площею 26,30 кв.м. (В)
Україна, Дніпропетровська обл., м. Кам’янське, просп. Героїв АТО, 1
29.02.2024
Дніпропетровська обл., м. Дніпро, вул. Князя Ярослава Мудрого, 3. Оренда – приміщення 5-го поверху площею 58,20 кв.м. (В)
6 963.63 грн
119.65 грн / м2
Приміщення
Дніпропетровська обл., м. Дніпро, вул. Князя Ярослава Мудрого, 3. Оренда – приміщення 5-го поверху площею 58,20 кв.м. (В)
Україна, Дніпропетровська обл., м. Дніпро, вул. Князя Ярослава Мудрого, 3, вул. Дніпровська, 226
25.10.2023
Дніпропетровська обл., м. Дніпро, вул. Героїв, 14. Оренда – приміщення 2-го поверху площею 33,70 кв.м. (В)
3 370.00 грн
100.00 грн / м2
Приміщення
Дніпропетровська обл., м. Дніпро, вул. Героїв, 14. Оренда – приміщення 2-го поверху площею 33,70 кв.м. (В)
Україна, Дніпропетровська обл., м. Дніпро, вул. Героїв, 14
12.08.2022
Дніпропетровська обл., м. Кривий Ріг, вул. Калантая, 12. Оренда – приміщення 1-го поверху, площею 136,1 кв.м. (В)
2 082.33 грн
15.30 грн / м2
Приміщення
Дніпропетровська обл., м. Кривий Ріг, вул. Калантая, 12. Оренда – приміщення 1-го поверху, площею 136,1 кв.м. (В)
Україна, Дніпропетровська обл., Кривий Ріг, вул. Калантая, 12
Переглянуті пропозиції
17.06.2025
м. Харків, вул.Конторська,14. Оренда – приміщення першого поверху площею 20,9 кв.м (В)
1 944.75 грн
93.05 грн / м2
Приміщення
м. Харків, вул.Конторська,14. Оренда – приміщення першого поверху площею 20,9 кв.м (В)
Україна, Харківська обл., Харків, вулиця Конторська, 14