м. Київ, вул. Ісаакяна, 3. Оренда – Приміщення 1-го поверху площею 57,90 кв.м. (В)

15 346.40 грн
265.05 грн / м2
Україна, м.Київ, Київ, вул. Ісаакяна, 3
Перейти до аукціону на сайті
  • Інформація
  • Опис
  • Документи
Дата оголошення пропозиції:
10 червня 2022
Площа:
57.90 м2
Тип об’єкта:
Приміщення
Тип аукціону:
Англійський аукціон
Статус аукціону:
Аукціон не відбувся
Тип угоди:
Оренда
Розмір мінімального кроку:
200.00 ₴
Розмір гарантійного внеску:
9 207.84 ₴
Початок прийому пропозицій:
10.06.2022 13:46:53
Завершення прийому пропозицій:
12.07.2022 20:00:00
Лот:
UA-PS-2022-06-10-000014-3
№ лоту (УТК):
UTK040422_03T
Лот виставляється на торги (раз):
3
Стислий опис майна:
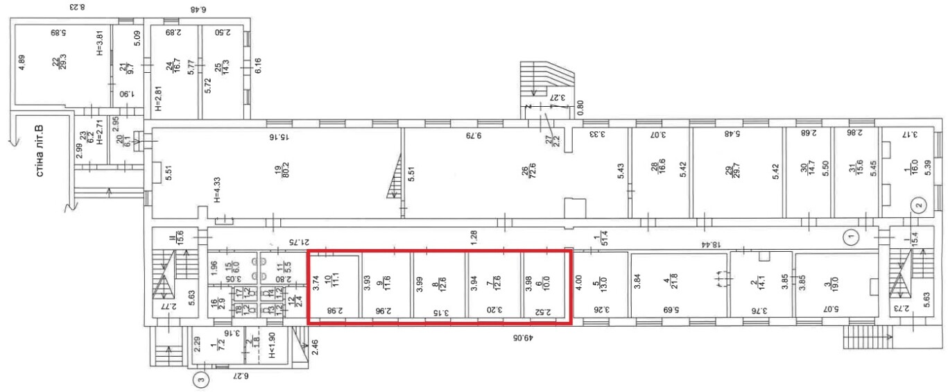
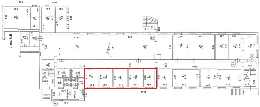
Пропонується до оренди офісні приміщення першого поверху, площею 57,90 кв.м. Розташування будівлі у Шевченківському районі міста Києва, місцевість Шулявка. Поруч розвинена інфраструктура, зупинки швидкісного трамваю, маршрутного та громадського транспорту, магазини, кафе, аптеки. Вхід з двору, через прохідну. Доступ вільний 24/7. Характеристики Загальна площа будівлі – 2069,60 м2; Площа запропонована до оренди – 57,90 м2; Опалення – міське (централізоване) Кількість поверхів – 3; Загальна площа земельної ділянки – 0,2892 га; Сан. вузол, водопостачання, каналізація – присутні (на поверсі)
Адреса місцезнаходження майна:
Україна, м.Київ, Київ, вул. Ісаакяна, 3
Схожі пропозиції
14.03.2023
м. Київ, вул. Князів Острозьких (Московська), 23. Оренда – приміщення 1-го поверху будівлі, площею 197,3 м2 (В)
77 546.79 грн
393.04 грн / м2
Приміщення
м. Київ, вул. Князів Острозьких (Московська), 23. Оренда – приміщення 1-го поверху будівлі, площею 197,3 м2 (В)
Україна, м.Київ, Київ, вул. Князів Острозьких (Московська), 23
ДОВГОСТРОКОВА ОРЕНДА! м. Київ, вул. Антоновича, 40. Оренда – приміщення 3-го поверху площею 740,40 м2 (В)
201 388.80 грн
272.00 грн / м2
Приміщення
ДОВГОСТРОКОВА ОРЕНДА! м. Київ, вул. Антоновича, 40. Оренда – приміщення 3-го поверху площею 740,40 м2 (В)
Україна, м.Київ, Київ, вул. Антоновича, 40
29.03.2024
м. Київ, вул. Будівельників, 8-Б;   Оренда – приміщення підвалу, площею 452,6 кв.м. (В)
42 300.00 грн
93.46 грн / м2
Приміщення
м. Київ, вул. Будівельників, 8-Б; Оренда – приміщення підвалу, площею 452,6 кв.м. (В)
Україна, м.Київ, Київ, вулиця Будівельників, 8-Б
Переглянуті пропозиції
31.08.2023
Дніпропетровська обл., м. Дніпро, вул. Січових Стрільців, 10. Оренда – приміщення 2-го поверху площею 44,10 кв.м. (В)
6 615.00 грн
150.00 грн / м2
Приміщення
Дніпропетровська обл., м. Дніпро, вул. Січових Стрільців, 10. Оренда – приміщення 2-го поверху площею 44,10 кв.м. (В)
Україна, Дніпропетровська обл., м. Дніпро, вул. Січових Стрільців, 10
м. Київ, вул. Макіївська, 3.Оренда – приміщення 2-го поверху, площею 724,10 м2 (В)
76 682.19 грн
105.90 грн / м2
Приміщення
м. Київ, вул. Макіївська, 3.Оренда – приміщення 2-го поверху, площею 724,10 м2 (В)
Україна, м.Київ, Київ, вул. Макіївська, 3
09.08.2022
м. Київ, вул. Джона Маккейна, №40 , Оренда – приміщення підвалу, площею 44,26 м2 , (В)
15 593.68 грн
352.80 грн / м2
Приміщення
м. Київ, вул. Джона Маккейна, №40 , Оренда – приміщення підвалу, площею 44,26 м2 , (В)
Україна, м.Київ, Київ, вул. Джона Маккейна, №40
12.01.2023
Довгострокова оренда. м. Київ, вул. Горького (Антоновича), 40. Оренда – приміщення 1-го поверху, площею 538,5 кв. м. (В)