Дніпропетровська обл., м. Дніпро, вул. Січових Стрільців, 10. Оренда – приміщення 2-го поверху площею 44,10 кв.м. (В)

6 615.00 грн
150.00 грн / м2
Україна, Дніпропетровська обл., м. Дніпро, вул. Січових Стрільців, 10
Перейти до аукціону на сайті
  • Інформація
  • Опис
  • Документи
Дата оголошення пропозиції:
31 липня 2023
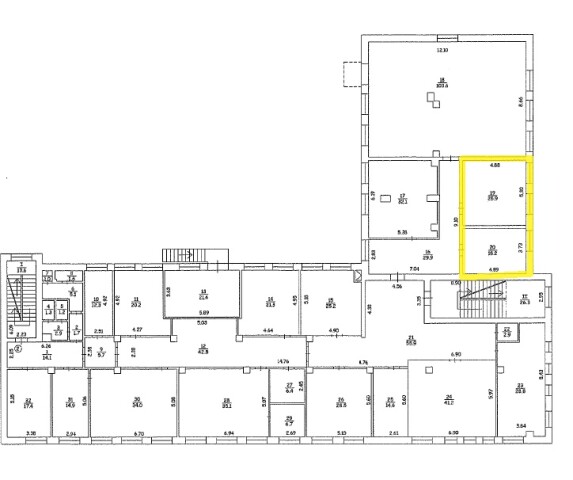
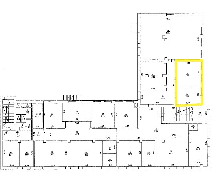
Площа:
44.10 м2
Тип об’єкта:
Приміщення
Тип аукціону:
Англійський аукціон
Статус аукціону:
Аукціон не відбувся
Тип угоди:
Оренда
Розмір мінімального кроку:
500.00 ₴
Розмір гарантійного внеску:
3 969.00 ₴
Початок прийому пропозицій:
31.07.2023 16:39:42
Завершення прийому пропозицій:
30.08.2023 20:00:00
Проведення аукціону:
31.08.2023 12:25:00
Лот:
CLE001-UA-20230731-92324
№ лоту (УТК):
UTK260623_06P
Лот виставляється на торги (раз):
2
Стислий опис майна:
Пропонується до оренди приміщення 2-го поверху площею 44,10 кв.м. Розташування – будівля (літ. «А-3») знаходиться в центральному районі міста. Поруч знаходяться відділення банку, високий автомобільний і пішохідний потоки. Стан приміщення задовільний, підходить для офісу, для дитячої студії, школи розвитку. Ідеальне місце під розвиток будь-якого бізнесу. Можливість передачі приміщень в суборенду. Характеристики: Кількість поверхів – 4 (враховуючи цокольний поверх) Загальна площа будівель на ЗД – 2876,70 кв.м. Площа запропонована до оренди – 44,10 кв.м. Електропостачання, водопостачання, теплопостачання, охорона та обслуговування пожежної сигналізації, вивіз сміття, прибирання території; Земельна ділянка – 0, 1636 га (договір оренди) Ресурсні податки – 5,55 грн за 1 кв.м
Адреса місцезнаходження майна:
Україна, Дніпропетровська обл., м. Дніпро, вул. Січових Стрільців, 10
Схожі пропозиції
21.11.2025
Дніпропетровська обл., м. Дніпро, вул. Січових Стрільців, 10. Оренда – приміщення 2-го поверху площею 32,10 кв.м. (В)
3 355.09 грн
104.52 грн / м2
Приміщення
Дніпропетровська обл., м. Дніпро, вул. Січових Стрільців, 10. Оренда – приміщення 2-го поверху площею 32,10 кв.м. (В)
Україна, Дніпропетровська обл., м. Дніпро, вул. Січових Стрільців, 10
Дніпропетровська обл., м. Дніпро, вулиця Князя Ярослава Мудрого, 3. Оренда – приміщення 5-го поверху площею 41,60 кв.м. (В)
3 225.83 грн
77.54 грн / м2
Приміщення
Дніпропетровська обл., м. Дніпро, вулиця Князя Ярослава Мудрого, 3. Оренда – приміщення 5-го поверху площею 41,60 кв.м. (В)
Україна, Дніпропетровська обл., м. Дніпро, вулиця Князя Ярослава Мудрого, 3
01.12.2023
Дніпропетровська обл., м. Покров, вул. Центральна, 50. Оренда – приміщення будівлі гаражів загальною площею 26,90 кв.м (В)
1 262.15 грн
46.92 грн / м2
Приміщення
Дніпропетровська обл., м. Покров, вул. Центральна, 50. Оренда – приміщення будівлі гаражів загальною площею 26,90 кв.м (В)
Україна, Дніпропетровська обл., м. Покров, вул. Центральна, 50
Дніпропетровська обл., м. Кривий Ріг, вул. Головка Адмірала, 71. Оренда – приміщення 4-го поверху, площею 580,5 кв.м. (В)
16 997.04 грн
29.28 грн / м2
Приміщення
Дніпропетровська обл., м. Кривий Ріг, вул. Головка Адмірала, 71. Оренда – приміщення 4-го поверху, площею 580,5 кв.м. (В)
Україна, Дніпропетровська обл., Кривий Ріг, вул. Головка Адмірала, 71
Переглянуті пропозиції
м. Київ, вул. Макіївська, 3.Оренда – приміщення 2-го поверху, площею 724,10 м2 (В)
76 682.19 грн
105.90 грн / м2
Приміщення
м. Київ, вул. Макіївська, 3.Оренда – приміщення 2-го поверху, площею 724,10 м2 (В)
Україна, м.Київ, Київ, вул. Макіївська, 3
09.08.2022
м. Київ, вул. Джона Маккейна, №40 , Оренда – приміщення підвалу, площею 44,26 м2 , (В)
15 593.68 грн
352.80 грн / м2
Приміщення
м. Київ, вул. Джона Маккейна, №40 , Оренда – приміщення підвалу, площею 44,26 м2 , (В)
Україна, м.Київ, Київ, вул. Джона Маккейна, №40
12.01.2023
Довгострокова оренда. м. Київ, вул. Горького (Антоновича), 40. Оренда – приміщення 1-го поверху, площею 538,5 кв. м. (В)
м. Київ, вул. Маршала Малиновського №19-А. Оренда – приміщення 1-го поверху площею 120,30 кв.м. (В)
29 545.68 грн
245.60 грн / м2
Приміщення
м. Київ, вул. Маршала Малиновського №19-А. Оренда – приміщення 1-го поверху площею 120,30 кв.м. (В)
Україна, м.Київ, Київ, вул. Маршала Малиновського №19-А