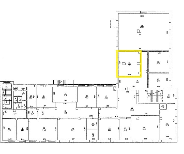
Дніпропетровська обл., м. Дніпро, вул. Січових Стрільців, 10. Оренда – приміщення 2-го поверху площею 32,10 кв.м. (В)

3 355.09 грн
104.52 грн / м2
Україна, Дніпропетровська обл., м. Дніпро, вул. Січових Стрільців, 10
Перейти до аукціону на сайті
  • Інформація
  • Опис
  • Документи
Дата оголошення пропозиції:
20 жовтня 2025
Площа:
32.10 м2
Тип об’єкта:
Приміщення
Тип аукціону:
Англійський аукціон
Статус аукціону:
Прийняття заяв на участь
Тип угоди:
Оренда
Розмір мінімального кроку:
400.00 ₴
Розмір гарантійного внеску:
2 013.06 ₴
Початок прийому пропозицій:
20.10.2025 15:03:53
Завершення прийому пропозицій:
20.11.2025 20:00:00
Проведення аукціону:
21.11.2025 11:25:00
Лот:
CLE001-UA-20251020-45975
№ лоту (УТК):
UTK260623_05P
Лот виставляється на торги (раз):
10
Стислий опис майна:
Пропонується до оренди приміщення 2-го поверху площею 32,10 кв.м. Розташування – будівля (літ. «А-3») знаходиться в центральному районі міста. Поруч знаходяться відділення банку, високий автомобільний і пішохідний потоки. Стан приміщення задовільний, підходить для офісу, для дитячої студії, школи розвитку. Ідеальне місце під розвиток будь-якого бізнесу. Можливість передачі приміщень в суборенду. Характеристики: Кількість поверхів – 4 (враховуючи цокольний поверх) Загальна площа будівель на ЗД – 2876,70 кв.м. Площа запропонована до оренди – 32,10 кв.м. Електропостачання, водопостачання, теплопостачання, охорона та обслуговування пожежної сигналізації, вивіз сміття, прибирання території; Земельна ділянка – 0, 1636 га (договір оренди) Ресурсні податки – 5,55 грн за 1 кв.м
Адреса місцезнаходження майна:
Україна, Дніпропетровська обл., м. Дніпро, вул. Січових Стрільців, 10
Схожі пропозиції
18.10.2024
Дніпропетровська обл., м. Дніпро, вул. Князя Ярослава Мудрого, 3. Оренда – приміщення 4-го поверху площею 21,60 кв.м. (В)
2 584.43 грн
119.65 грн / м2
Приміщення
Дніпропетровська обл., м. Дніпро, вул. Князя Ярослава Мудрого, 3. Оренда – приміщення 4-го поверху площею 21,60 кв.м. (В)
Україна, Дніпропетровська обл., м. Дніпро, вул. Князя Ярослава Мудрого, 3
06.06.2025
Дніпропетровська обл., м. Дніпро, вул. Князя Ярослава Мудрого, 3. Оренда – приміщення 4-го поверху площею 51,40 кв.м (В)
6 075.48 грн
118.20 грн / м2
Приміщення
Дніпропетровська обл., м. Дніпро, вул. Князя Ярослава Мудрого, 3. Оренда – приміщення 4-го поверху площею 51,40 кв.м (В)
Україна, Дніпропетровська обл., м. Дніпро, вул. Князя Ярослава Мудрого, 3
31.01.2023
Дніпропетровська обл., м. Жовті Води, вул. Свободи, 39. Оренда – приміщення 1-го поверху площею 30,0 кв.м. (В)
789.00 грн
26.30 грн / м2
Приміщення
Дніпропетровська обл., м. Жовті Води, вул. Свободи, 39. Оренда – приміщення 1-го поверху площею 30,0 кв.м. (В)
Україна, Дніпропетровська обл., Жовті Води, бульвар Свободи, 39
23.01.2024
Дніпропетровська обл., м. Дніпро, пр. Пушкіна, 75а;    Оренда – приміщення 1-го поверху площею 11,5 кв.м. (В)
1 585.39 грн
137.86 грн / м2
Приміщення
Дніпропетровська обл., м. Дніпро, пр. Пушкіна, 75а; Оренда – приміщення 1-го поверху площею 11,5 кв.м. (В)
Україна, Дніпропетровська обл., Дніпро, пр. Пушкіна, 75а