ДОВГОСТРОКОВА ОРЕНДА! м. Київ, вул. Ісаакяна, 3. Оренда – Приміщення 3-го поверху площею 501,50 кв.м. (В)

113 930.77 грн
227.18 грн / м2
Україна, м.Київ, Київ, вул. Ісаакяна, 3
Перейти до аукціону на сайті
  • Інформація
  • Опис
  • Документи
Дата оголошення пропозиції:
10 червня 2022
Площа:
501.50 м2
Тип об’єкта:
Приміщення
Тип аукціону:
Англійський аукціон
Статус аукціону:
Аукціон не відбувся
Тип угоди:
Оренда
Розмір мінімального кроку:
1 200.00 ₴
Розмір гарантійного внеску:
68 358.46 ₴
Початок прийому пропозицій:
10.06.2022 13:37:40
Завершення прийому пропозицій:
12.07.2022 20:00:00
Лот:
UA-PS-2022-06-10-000013-3
№ лоту (УТК):
UTK040422_04T
Лот виставляється на торги (раз):
3
Стислий опис майна:
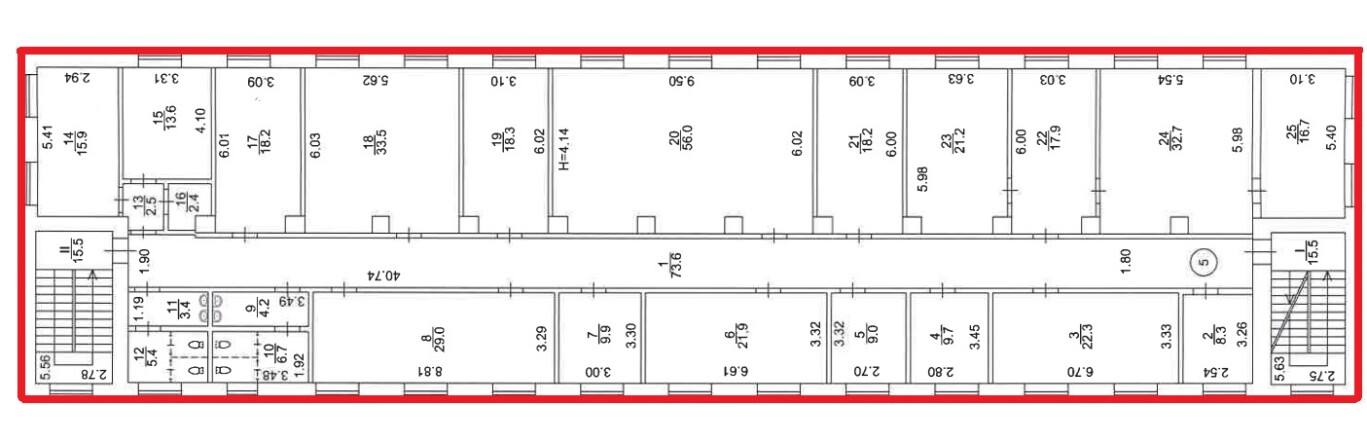
Пропонується до оренди офісні приміщення третього поверху, площею 501,50 кв.м. Розташування будівлі у Шевченківському районі міста Києва, місцевість Шулявка. Поруч розвинена інфраструктура, зупинки швидкісного трамваю, маршрутного та громадського транспорту, магазини, кафе, аптеки. Вхід з двору, через прохідну. Доступ вільний 24/7. Характеристики Загальна площа будівлі – 2069,60 м2; Площа запропонована до оренди – 501,50 м2; Опалення – міське (централізоване) Кількість поверхів – 3; Загальна площа земельної ділянки – 0,2892 га;
Адреса місцезнаходження майна:
Україна, м.Київ, Київ, вул. Ісаакяна, 3
Схожі пропозиції
05.09.2025
м. Київ, вул. Макіївська, 3 (Оболонський р-н) (В). Оренда – приміщення 2-го поверху, площею 724,10 кв. м.
43 446.00 грн
60.00 грн / м2
Приміщення
м. Київ, вул. Макіївська, 3 (Оболонський р-н) (В). Оренда – приміщення 2-го поверху, площею 724,10 кв. м.
Україна, м.Київ, Київ, вулиця Макіївська, 3
06.04.2023
м. Київ, вул. Будівельників, 8-Б Оренда – приміщення 1-го, 2-го та 3-го поверхів, площею 1520,3 м. кв. (П)
133 558.36 грн
87.85 грн / м2
Приміщення
м. Київ, вул. Будівельників, 8-Б Оренда – приміщення 1-го, 2-го та 3-го поверхів, площею 1520,3 м. кв. (П)
Україна, м.Київ, м. Київ, вулиця Будівельників, 8-Б
26.10.2023
м. Київ, вул. Антоновича, 40. Оренда – приміщення підвалу площею 77,0 кв.м. (В)
23 720.62 грн
308.06 грн / м2
Приміщення
м. Київ, вул. Антоновича, 40. Оренда – приміщення підвалу площею 77,0 кв.м. (В)
Україна, м.Київ, Київ, вул. Антоновича, 40