ДОВГОСТРОКОВА ОРЕНДА! м. Київ, вул. Ісаакяна, 3. Оренда – Приміщення цокольного поверху площею 400,80 кв.м. (В)

91 053.74 грн
227.18 грн / м2
Україна, м.Київ, Київ, вул. Ісаакяна, 3
Перейти до аукціону на сайті
  • Інформація
  • Опис
  • Документи
Дата оголошення пропозиції:
10 червня 2022
Площа:
400.80 м2
Тип об’єкта:
Приміщення
Тип аукціону:
Англійський аукціон
Статус аукціону:
Аукціон не відбувся
Тип угоди:
Оренда
Розмір мінімального кроку:
1 000.00 ₴
Розмір гарантійного внеску:
54 632.25 ₴
Початок прийому пропозицій:
10.06.2022 13:51:56
Завершення прийому пропозицій:
12.07.2022 20:00:00
Лот:
UA-PS-2022-06-10-000010-2
№ лоту (УТК):
UTK040422_02T
Лот виставляється на торги (раз):
3
Стислий опис майна:
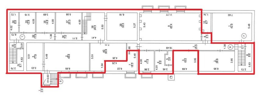
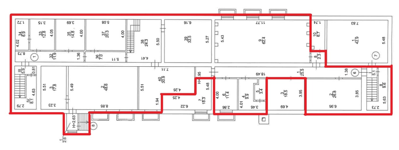
Пропонується до оренди частина приміщень цокольного поверху, площею 400,80 кв.м. Розташування будівлі у Шевченківському районі міста Києва, місцевість Шулявка. Поруч розвинена інфраструктура, зупинки швидкісного трамваю, маршрутного та громадського транспорту, магазини, кафе, аптеки. Вхід з двору, через прохідну. Доступ вільний 24/7. Характеристики Загальна площа будівлі – 2069,60 м2; Площа запропонована до оренди – 400,80 м2; Опалення – міське (централізоване) Кількість поверхів – 3; Загальна площа земельної ділянки – 0,2892 га; Сан. вузол, водопостачання, каналізація – відсутнє (на поверсі)
Адреса місцезнаходження майна:
Україна, м.Київ, Київ, вул. Ісаакяна, 3
Схожі пропозиції
22.03.2023
ДОВГОСТРОКОВА ОРЕНДА! м. Київ, вул. Ісаакяна, 3. Оренда – Приміщення 3-го поверху площею 501,5 кв.м. (В)
75 957.19 грн
151.46 грн / м2
Приміщення
ДОВГОСТРОКОВА ОРЕНДА! м. Київ, вул. Ісаакяна, 3. Оренда – Приміщення 3-го поверху площею 501,5 кв.м. (В)
Україна, м.Київ, Київ, вулиця Ісаакяна, 3
09.09.2025
м. Київ, вул. Дегтярівська, 28А, літ. «А» (Шевченківський р-н). Оренда – приміщення на 1-му поверсі, площею – 35,20 кв.м (В)
4 536.58 грн
128.88 грн / м2
Приміщення
м. Київ, вул. Дегтярівська, 28А, літ. «А» (Шевченківський р-н). Оренда – приміщення на 1-му поверсі, площею – 35,20 кв.м (В)
Україна, м.Київ, Київ, 04119, м. Київ, вул. Дегтярівська, 28А, літ. «А» (Шевченківський р-н
11.10.2022
м. Київ, вул. Миколи Голего, 8. Оренда – приміщення 1-го поверху площею 30,90 м2 (В)
6 674.40 грн
216.00 грн / м2
Приміщення
м. Київ, вул. Миколи Голего, 8. Оренда – приміщення 1-го поверху площею 30,90 м2 (В)
Україна, м.Київ, Київ, вулиця Миколи Голего, 8
14.03.2023
м. Київ, вул. Миколи Голего, 8. Оренда – приміщення 3-го поверху площею 79,7 м2 (В)
14 632.92 грн
183.60 грн / м2
Приміщення
м. Київ, вул. Миколи Голего, 8. Оренда – приміщення 3-го поверху площею 79,7 м2 (В)
Україна, м.Київ, Київ, вулиця Миколи Голего, 8
Переглянуті пропозиції
21.06.2024
Львівська обл. м. Добромиль, вул. Галицька, 24. Оренда – приміщення складу площею 24,3 кв.м. (В)
291.60 грн
12.00 грн / м2
Приміщення
Львівська обл. м. Добромиль, вул. Галицька, 24. Оренда – приміщення складу площею 24,3 кв.м. (В)
Україна, Львівська обл., м. Добромиль, вул. Галицька, 24
05.11.2024
Полтавська обл., Лубенський р-н, смт. Оржиця, вулиця Центральна, 18;  Оренда – приміщення 3-го поверху загальною площею 74,00 кв.м. (В)
м. Київ, вул. Будівельників, 8-Б, оренда – приміщення підвалу, площею 452,60 кв.м. (В)
30 604.81 грн
67.62 грн / м2
Приміщення
м. Київ, вул. Будівельників, 8-Б, оренда – приміщення підвалу, площею 452,60 кв.м. (В)
Україна, м.Київ, Київ, вул. Будівельників, 8-Б
 Львівська обл., с. П’ятничани, вул. Львівська, 1. Оренда – будівля складу площею 75 кв.м. (В)
1 308.00 грн
17.44 грн / м2
Будівля
Львівська обл., с. П’ятничани, вул. Львівська, 1. Оренда – будівля складу площею 75 кв.м. (В)
Україна, Львівська обл., с. П’ятничани , вул. Львівська, 1