м. Київ, вул. Будівельників, 8-Б, оренда – приміщення підвалу, площею 452,60 кв.м. (В)

20 910.12 грн
46.20 грн / м2
Україна, м.Київ, Київ, вул. Будівельників, 8-Б
Перейти до аукціону на сайті
  • Інформація
  • Опис
  • Документи
Дата оголошення пропозиції:
27 червня 2022
Площа:
452.60 м2
Тип об’єкта:
Приміщення
Тип аукціону:
Англійський аукціон
Статус аукціону:
Аукціон не відбувся
Тип угоди:
Оренда
Розмір мінімального кроку:
300.00 ₴
Розмір гарантійного внеску:
12 546.07 ₴
Початок прийому пропозицій:
27.06.2022 15:25:05
Завершення прийому пропозицій:
27.07.2022 20:00:00
Лот:
UA-PS-2022-06-27-000020-1
№ лоту (УТК):
UTK020721_01Т
Стислий опис майна:
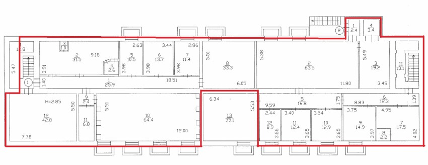
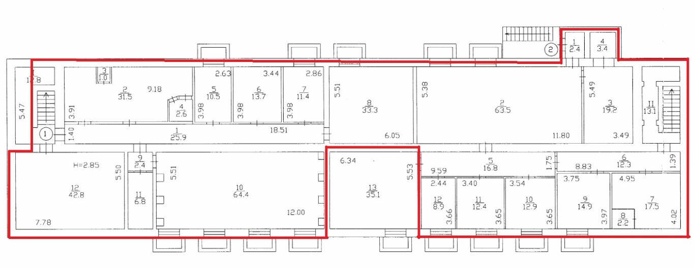
Пропонуються до оренди приміщення 2-го поверху, площею 452,60 м2. Будівля знаходиться у Дніпровському районі міста Києва, місцевість Соцмісто. Поруч розвинена інфраструктура, зупинки маршрутного транспорту, супермаркети, кафе, аптеки, фінансові заклади, зарядна станція UTrecharge Charging Station, в’їзд через майданчик з парко-місцями. Вхід з двору. Доступ 24/7. Характеристики: • кількість поверхів – 3; • опалення централізоване (міське); • земельна ділянка – 0,4851 га*; • загальна площа будівлі – 2022,70 м2; • сан. вузол, каналізація, водопостачання – відсутні; • дозволена потужність – 60 кВт; *земельна ділянка не є предметом оренди.
Адреса місцезнаходження майна:
Україна, м.Київ, Київ, вул. Будівельників, 8-Б
Схожі пропозиції
10.11.2022
м. Київ, вул. Миколи Голего, 8. Оренда – приміщення 1-го поверху площею 30,90 м2 (В)
5 673.24 грн
183.60 грн / м2
Приміщення
м. Київ, вул. Миколи Голего, 8. Оренда – приміщення 1-го поверху площею 30,90 м2 (В)
Україна, м.Київ, Київ, вулиця Миколи Голего, 8
24.11.2022
ДОВГОСТРОКОВА ОРЕНДА! м. Київ, вул. Салютна, 5а, літ. «Б». Оренда – приміщення 3-го та 4-го поверхів площею 992,80 кв.м. (В)
м. Київ, вул. Антоновича, 40, оренда – приміщення підвалу площею 77,00 кв.м. (В)
16 445.35 грн
213.58 грн / м2
Приміщення
м. Київ, вул. Антоновича, 40, оренда – приміщення підвалу площею 77,00 кв.м. (В)
Україна, м.Київ, Київ, вул. Антоновича, 40
30.07.2025
м. Київ, вул. Джона Маккейна, 40, літ. «А» (Печерський р-н). Оренда – група приміщень на 1-му поверсі, площею 56,90 кв.м (В)
11 543.30 грн
202.87 грн / м2
Приміщення
м. Київ, вул. Джона Маккейна, 40, літ. «А» (Печерський р-н). Оренда – група приміщень на 1-му поверсі, площею 56,90 кв.м (В)
Україна, м.Київ, Київ, 01042, м. Київ, вул. Джона Маккейна, 40, літ. «А» (Печерський р-н)
Переглянуті пропозиції
Львівська обл., м. Новояворівськ, вул. Шевченка,7. Оренда – приміщення 3-го поверху площею 314 кв.м. (В)
3 165.12 грн
10.08 грн / м2
Приміщення
Львівська обл., м. Новояворівськ, вул. Шевченка,7. Оренда – приміщення 3-го поверху площею 314 кв.м. (В)
Україна, Львівська обл., Новояворівськ, вул. Шевченка,7
м. Івано-Франківськ вул. Ребета, 2. Оренда Нежитлові приміщення площею 1247,5 кв.м.(В)
12 250.45 грн
9.82 грн / м2
Приміщення
м. Івано-Франківськ вул. Ребета, 2. Оренда Нежитлові приміщення площею 1247,5 кв.м.(В)
Україна, Івано-Франківська обл., м. Івано-Франківськ, вул. Ребета, 2
Полтавська обл., м. Полтава, вул. Загородня, буд.30. Оренда – приміщення на 1-му поверсі площею 22,90 кв.м.(В)
1 621.32 грн
70.80 грн / м2
Приміщення
Полтавська обл., м. Полтава, вул. Загородня, буд.30. Оренда – приміщення на 1-му поверсі площею 22,90 кв.м.(В)
Україна, Полтавська обл., м. Полтава, вул. Загородня, буд.30