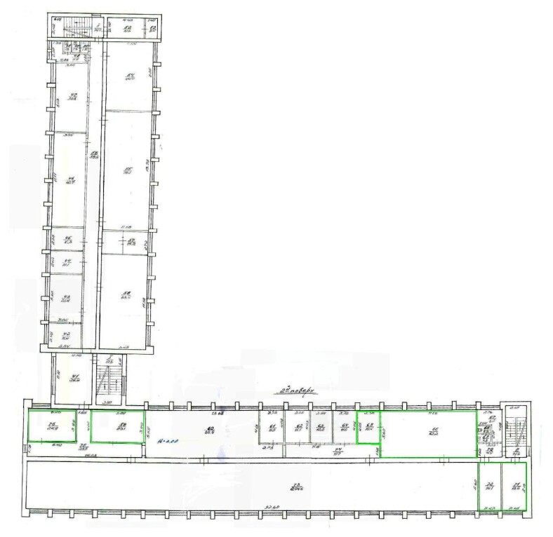
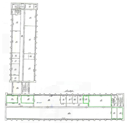
Львівська обл., м. Новояворівськ, вул. Шевченка,7. Оренда – приміщення 2-го поверху площею 148,2 кв.м. (В)

2 429.00 грн
16.39 грн / м2
Україна, Львівська обл., м. Новояворівськ, вул. Шевченка,7
Перейти до аукціону на сайті
  • Інформація
  • Опис
  • Документи
Дата оголошення пропозиції:
01 липня 2022
Площа:
148.20 м2
Тип об’єкта:
Приміщення
Тип аукціону:
Англійський аукціон
Статус аукціону:
Аукціон не відбувся
Тип угоди:
Оренда
Розмір мінімального кроку:
50.00 ₴
Розмір гарантійного внеску:
1 457.40 ₴
Початок прийому пропозицій:
01.07.2022 13:51:22
Завершення прийому пропозицій:
02.08.2022 20:00:00
Лот:
UA-PS-2022-07-01-000019-2
№ лоту (УТК):
UTK150721_03Р
Лот виставляється на торги (раз):
6
Стислий опис майна:
Пропонуються до оренди приміщення 2-го поверху площею 148,2 кв.м.. Будівля знаходиться у центральній частини міста, розвинена інфраструктура. Характеристики: кількість поверхів – 3 Опалення , електропостачання,водопостачання, водовідведення – централізоване, технічна охорона. потребує ремонту Вільна до використання потужність – 20кВт земельна ділянка – 0,52 га (податок);
Адреса місцезнаходження майна:
Україна, Львівська обл., м. Новояворівськ, вул. Шевченка,7
Схожі пропозиції
30.07.2024
Львівська обл., с. Нове місто, вул. Центральна,1. Оренда – приміщення площею 19,40 кв. м (В)
267.33 грн
13.78 грн / м2
Приміщення
Львівська обл., с. Нове місто, вул. Центральна,1. Оренда – приміщення площею 19,40 кв. м (В)
Україна, Львівська обл., с. Нове місто, с. Нове місто, вул. Центральна,1
Львівська обл., м. Новий Розділ, пр. Шевченка, 30. Оренда – приміщення 2-го поверху площею 49,60 кв. м. (В)
690.43 грн
13.92 грн / м2
Приміщення
Львівська обл., м. Новий Розділ, пр. Шевченка, 30. Оренда – приміщення 2-го поверху площею 49,60 кв. м. (В)
Україна, Львівська обл., Новий Розділ, пр. Шевченка, 30
24.02.2023
Львівська обл., м. Борислав, вул. Д.Галицького,32. Оренда – приміщення 1-го поверху площею 184,71 кв.м. (В)
4 617.50 грн
25.00 грн / м2
Приміщення
Львівська обл., м. Борислав, вул. Д.Галицького,32. Оренда – приміщення 1-го поверху площею 184,71 кв.м. (В)
Україна, Львівська обл., м. Борислав, вул. Д.Галицького,32
21.06.2024
Львівська обл., м. Львів, вул. Виговського, 29а. Оренда – приміщення підвалу площею 86,80 кв.м (В)
7 812.87 грн
90.01 грн / м2
Приміщення
Львівська обл., м. Львів, вул. Виговського, 29а. Оренда – приміщення підвалу площею 86,80 кв.м (В)
Україна, Львівська обл., м. Львів, вул. Виговського, 29а