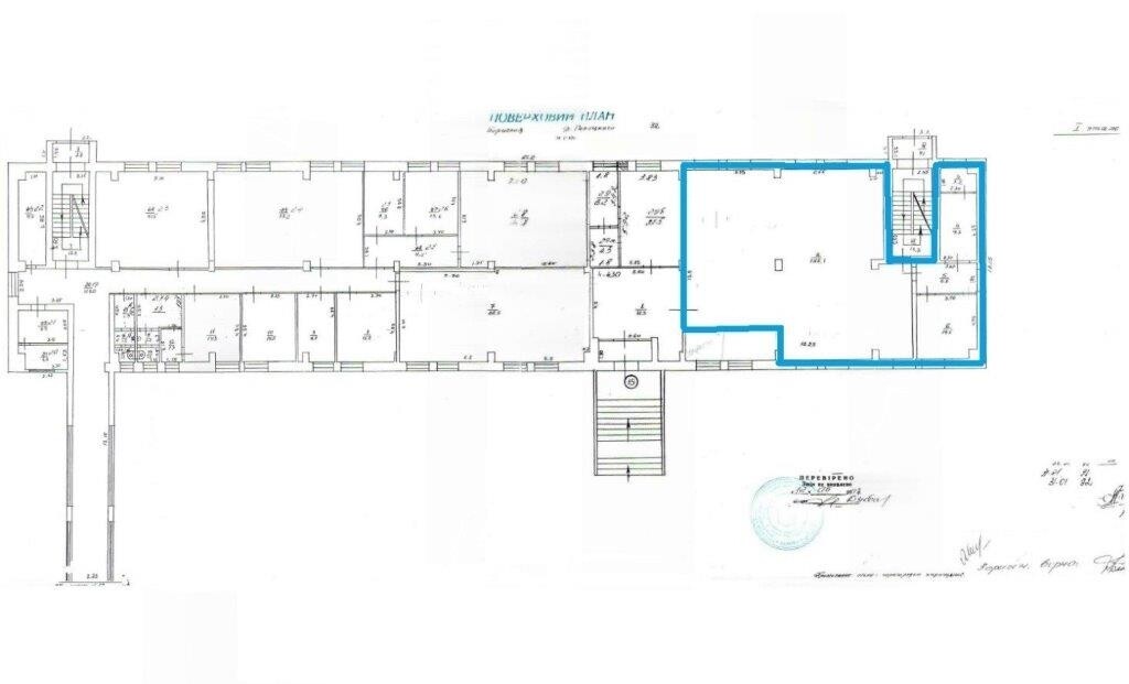
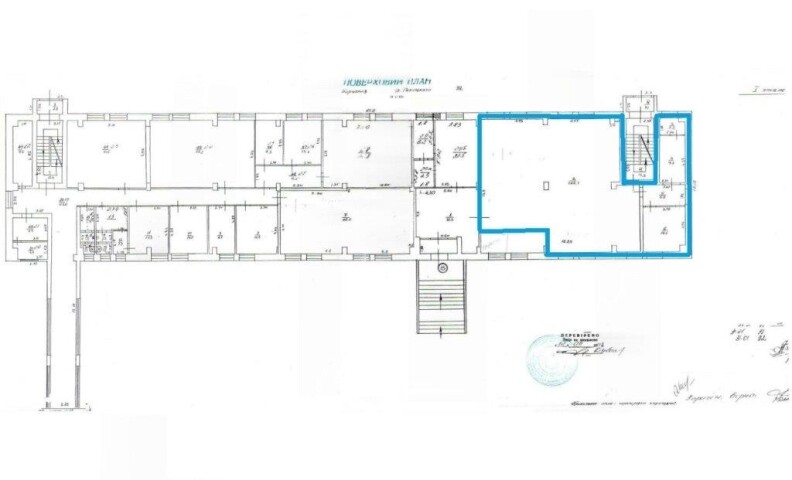
Львівська обл., м. Борислав, вул. Д.Галицького,32. Оренда – приміщення 1-го поверху площею 184,71 кв.м. (В)

4 617.50 грн
25.00 грн / м2
Україна, Львівська обл., м. Борислав, вул. Д.Галицького,32
Перейти до аукціону на сайті
  • Інформація
  • Опис
  • Документи
Дата оголошення пропозиції:
24 січня 2023
Площа:
184.71 м2
Тип об’єкта:
Приміщення
Тип аукціону:
Англійський аукціон
Статус аукціону:
Аукціон не відбувся
Тип угоди:
Оренда
Розмір мінімального кроку:
200.00 ₴
Розмір гарантійного внеску:
2 770.50 ₴
Початок прийому пропозицій:
24.01.2023 14:34:45
Завершення прийому пропозицій:
23.02.2023 20:00:00
Проведення аукціону:
24.02.2023 12:15:00
Лот:
CLE001-UA-20230124-72435
№ лоту (УТК):
UTK160721_08P
Лот виставляється на торги (раз):
10
Стислий опис майна:
Пропонується до оренди приміщення 1-го поверху площею 184,71 кв.м. Будівля знаходиться у центральній частини міста, розвинена інфраструктура. Характеристики: кількість поверхів – 3; Опалення - автономне , електропостачання,водопостачання, водовідведення – централізоване; Вільна до використання потужність – 40кВт; земельна ділянка – 0,5287 га (договір оренди)
Адреса місцезнаходження майна:
Україна, Львівська обл., м. Борислав, вул. Д.Галицького,32
Схожі пропозиції
01.03.2023
Львівська обл., Стрийський р-н, м. Ходорів, вул. Грушевського, 23 . Оренда – приміщення 2-го поверху площею 92,10 кв.м. (В)
2 487.62 грн
27.01 грн / м2
Приміщення
Львівська обл., Стрийський р-н, м. Ходорів, вул. Грушевського, 23 . Оренда – приміщення 2-го поверху площею 92,10 кв.м. (В)
Україна, Львівська обл., Стрийський р-н, м. Ходорів, вул. Грушевського, 23
11.03.2025
Львівська обл., с. Куликів, вул. Шевченка, 2. Оренда – приміщення 2-го поверху площею 28,50 кв. м. (В)
566.87 грн
19.89 грн / м2
Приміщення
Львівська обл., с. Куликів, вул. Шевченка, 2. Оренда – приміщення 2-го поверху площею 28,50 кв. м. (В)
Україна, Львівська обл., с. Куликів, вул. Шевченка, 2
18.11.2025
Львівська обл., м. Львів, вул. Виговського, 29а. Оренда – приміщення 3-го поверху площею 508,20 кв.м. (В)
35 650.23 грн
70.15 грн / м2
Приміщення
Львівська обл., м. Львів, вул. Виговського, 29а. Оренда – приміщення 3-го поверху площею 508,20 кв.м. (В)
Україна, Львівська обл., м. Львів, вул. Виговського, 29а
07.11.2023
Львівська обл., м. Турка, майдан Шевченка, 2. Оренда – приміщення 1-го поверху площею 78,50 кв.м. (В)
2 826.00 грн
36.00 грн / м2
Приміщення
Львівська обл., м. Турка, майдан Шевченка, 2. Оренда – приміщення 1-го поверху площею 78,50 кв.м. (В)
Україна, Львівська обл., м.Турка, майдан Шевченка, 2
Переглянуті пропозиції
05.06.2024
Полтавська обл., Кременчуцький р-н, с. Іванове Селище, вул. Новоукраїнська, буд.7. Оренда – Гараж площею 24,20 кв.м. (В)
508.20 грн
21.00 грн / м2
Гараж
Полтавська обл., Кременчуцький р-н, с. Іванове Селище, вул. Новоукраїнська, буд.7. Оренда – Гараж площею 24,20 кв.м. (В)
Україна, Полтавська обл., Кременчуцький р-н, с. Іванове Селище, вул. Новоукраїнська, буд.7
23.11.2023
ДОВГОСТРОКОВА ОРЕНДА! Рівненська обл., м.Рівне вул. В.Чорновола,1; Оренда – приміщення 5-го поверху загальною площею 483,4 кв.м. (В)
47 305.52 грн
97.86 грн / м2
Приміщення
ДОВГОСТРОКОВА ОРЕНДА! Рівненська обл., м.Рівне вул. В.Чорновола,1; Оренда – приміщення 5-го поверху загальною площею 483,4 кв.м. (В)
Україна, Рівненська обл., Рівне, вул. Вячеслава Чорновола, 1