Рівненська обл., Рівненський р-н., с. Малинськ, вул. Центральна , 59. Оренда – частина приміщення одноповерхової будівлі, площею 31,6 кв.м. (В)

1 432.43 грн
45.33 грн / м2
Україна, Рівненська обл., Малинськ, вул. Центральна , 59
Перейти до аукціону на сайті
  • Інформація
  • Опис
  • Документи
Дата оголошення пропозиції:
04 липня 2022
Площа:
31.60 м2
Тип об’єкта:
Приміщення
Тип аукціону:
Англійський аукціон
Статус аукціону:
Аукціон не відбувся
Тип угоди:
Оренда
Розмір мінімального кроку:
100.00 ₴
Розмір гарантійного внеску:
859.46 ₴
Початок прийому пропозицій:
04.07.2022 13:06:51
Завершення прийому пропозицій:
03.08.2022 20:00:00
Лот:
UA-PS-2022-07-04-000015-1
№ лоту (УТК):
UTK270522_1T
Лот виставляється на торги (раз):
2
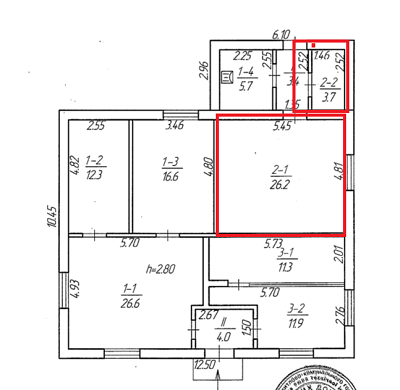
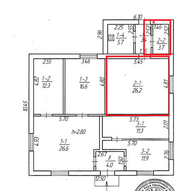
Стислий опис майна:
Пропонуються до оренди частина приміщення одноповерхової будівлі площею 31,6 кв.м. Будівля знаходиться в центральній частині села. Вхід окремий . Приміщення потребують реконструкції електромережі Характеристики: • Кількість поверхів – 1; • Загальна площа – 31,6 кв.м; • Площа, запропонована до оренди – 31,6 кв.м; • Опалення , водопостачання - відсутнє; • Земельна ділянка - площа 0,0207 га. (договір оренди)
Адреса місцезнаходження майна:
Україна, Рівненська обл., Малинськ, вул. Центральна , 59
Схожі пропозиції
21.06.2024
Рівненська обл., Рівненський р-н., м. Здолбунів, вул. Б.Хмельницького, 7. Оренда – приміщення підвалу, 2 поверху та надвірної будівлі загальною площею 661,4 кв.м. (В)
8 928.90 грн
13.50 грн / м2
Приміщення
Рівненська обл., Рівненський р-н., м. Здолбунів, вул. Б.Хмельницького, 7. Оренда – приміщення підвалу, 2 поверху та надвірної будівлі загальною площею 661,4 кв.м. (В)
Україна, Рівненська обл., Рівненський р-н., м. Здолбунів, вул. Б.Хмельницького, 7
26.12.2024
Рівненська обл., Дубенський р-н, с. Малеве, вул. Лесі Українки, 55;   Оренда – приміщення площею 18,2 м.кв. (В)
273.00 грн
15.00 грн / м2
Приміщення
Рівненська обл., Дубенський р-н, с. Малеве, вул. Лесі Українки, 55; Оренда – приміщення площею 18,2 м.кв. (В)
Україна, Рівненська обл., Малеве, вул. Лесі Українки, 55
Рівненська обл., м. Рівне, вул. Орлова, 37. Оренда приміщень 5-го поверху площею 662,00 кв.м.
11 220.90 грн
16.95 грн / м2
Приміщення
Рівненська обл., м. Рівне, вул. Орлова, 37. Оренда приміщень 5-го поверху площею 662,00 кв.м.
Україна, Рівненська обл., м. Рівне , вул. Орлова, 37
Рівненьска обл., м. Радивилів, вул. О.Невського, 1. Оренда – підвального приміщення площею 165 кв.м.(В)
2 768.70 грн
16.78 грн / м2
Приміщення
Рівненьска обл., м. Радивилів, вул. О.Невського, 1. Оренда – підвального приміщення площею 165 кв.м.(В)
Україна, Рівненська обл., м. Радивилів, вул. О.Невського, 1