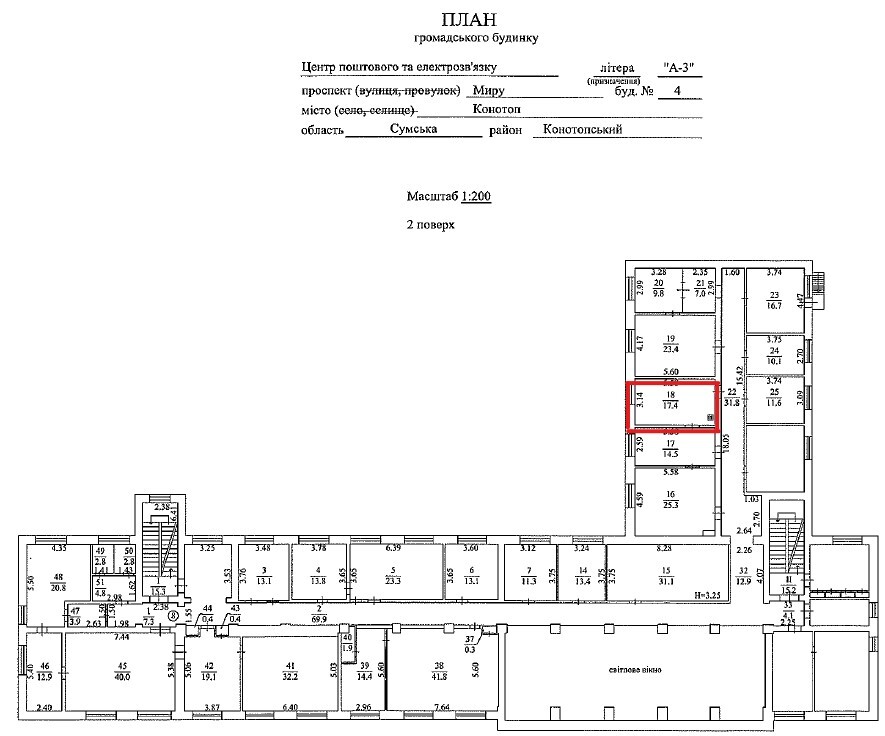
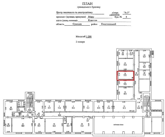
Сумська обл., м. Конотоп, пл. Миру, буд. 4. Оренда – приміщення 2-го поверху площею 17,40 кв.м. (В)

432.91 грн
24.88 грн / м2
Україна, Сумська обл., Конотоп, пл. Миру, буд. 4
Перейти до аукціону на сайті
  • Інформація
  • Опис
  • Документи
Дата оголошення пропозиції:
04 липня 2022
Площа:
17.40 м2
Тип об’єкта:
Приміщення
Тип аукціону:
Англійський аукціон
Статус аукціону:
Аукціон не відбувся
Тип угоди:
Оренда
Розмір мінімального кроку:
20.00 ₴
Розмір гарантійного внеску:
259.75 ₴
Початок прийому пропозицій:
04.07.2022 13:14:56
Завершення прийому пропозицій:
03.08.2022 20:00:00
Лот:
UA-PS-2022-07-04-000009-3
№ лоту (УТК):
UTK251021_12T
Лот виставляється на торги (раз):
7
Стислий опис майна:
Пропонується до оренди приміщення 2-го поверху, площею 17,40 кв. м. Знаходиться в центральній частині міста. Добра візуалізація з дороги. Високий автомобільний та пішохідний потік. Характеристики: • кількість поверхів – 3; • Загальна площа – 2809,80 кв.м.; • Площа запропонована до оренди – 17,40 кв.м.; • Електропостачання, опалення - наявне; • Водопостачання - відсутнє ( є можливість користування санвузлом загального користування на першому поверсі); • земельна ділянка – 0,0415 га (договір оренди ЗД); • стан приміщення – задовільний.
Адреса місцезнаходження майна:
Україна, Сумська обл., Конотоп, пл. Миру, буд. 4
Схожі пропозиції
21.03.2024
Сумська обл., Конотопський р-н, с. Кузьки, вул. Шевченка, 35. Оренда – нежитлове приміщення площею 20,40 кв.м. (В)
501.43 грн
24.58 грн / м2
Приміщення
Сумська обл., Конотопський р-н, с. Кузьки, вул. Шевченка, 35. Оренда – нежитлове приміщення площею 20,40 кв.м. (В)
Україна, Сумська обл., Конотопський р-н, с. Кузьки, вул. Шевченка, 35
19.05.2023
Сумська обл., Сумський р-н., с. Воронівка, вул. Миру, буд. 15. Оренда – нежитлове приміщення площею 22,4 кв.м. (В)
500.64 грн
22.35 грн / м2
Приміщення
Сумська обл., Сумський р-н., с. Воронівка, вул. Миру, буд. 15. Оренда – нежитлове приміщення площею 22,4 кв.м. (В)
Україна, Сумська обл., Воронівка, вул. Миру, буд. 15
14.12.2022
Сумська обл., Шосткинський р-н., смт. Свеса, вул. Грушевського (Леніна), буд. 4. Оренда – нежитлове приміщення площею 27,50 кв.м. (В)
11.09.2024
Сумська обл., Конотопський р-н, с. Гвинтове, вул. Низова, буд. 15;   Оренда – нежитлове приміщення площею 14,50 кв. м. (В)
507.50 грн
35.00 грн / м2
Приміщення
Сумська обл., Конотопський р-н, с. Гвинтове, вул. Низова, буд. 15; Оренда – нежитлове приміщення площею 14,50 кв. м. (В)
Україна, Сумська обл., с. Гвинтове, вул. Низова,15
Переглянуті пропозиції
21.08.2024
Чернігівська обл., м. Чернігів, вул. Рокоссовського, 33;   Оренда – виробничі приміщення 4-го поверху площею 327,1 кв.м. (В)
15 504.54 грн
47.40 грн / м2
Приміщення
Чернігівська обл., м. Чернігів, вул. Рокоссовського, 33; Оренда – виробничі приміщення 4-го поверху площею 327,1 кв.м. (В)
Україна, Чернігівська обл., Чернігів, вулиця Рокоссовського, 33
23.02.2024
Рівненська обл., Рівненський р-н., с. Балашівка, вул. Незалежності, 52;   Оренда – нежитлове приміщення площею 12,9 кв.м. (В)
258.00 грн
20.00 грн / м2
Приміщення
Рівненська обл., Рівненський р-н., с. Балашівка, вул. Незалежності, 52; Оренда – нежитлове приміщення площею 12,9 кв.м. (В)
Україна, Рівненська обл., Балашівка, вул. Незалежності, 52