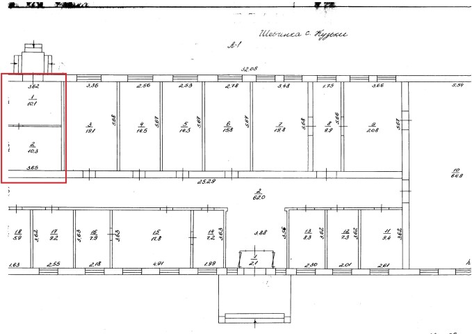
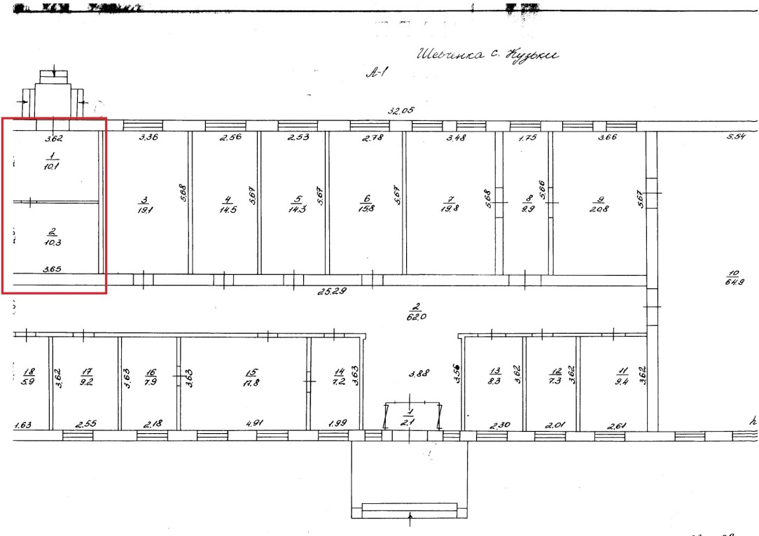
Сумська обл., Конотопський р-н, с. Кузьки, вул. Шевченка, 35. Оренда – нежитлове приміщення площею 20,40 кв.м. (В)

501.43 грн
24.58 грн / м2
Україна, Сумська обл., Конотопський р-н, с. Кузьки, вул. Шевченка, 35
Перейти до аукціону на сайті
  • Інформація
  • Опис
  • Документи
Дата оголошення пропозиції:
19 лютого 2024
Площа:
20.40 м2
Тип об’єкта:
Приміщення
Тип аукціону:
Англійський аукціон
Статус аукціону:
Аукціон не відбувся
Тип угоди:
Оренда
Розмір мінімального кроку:
40.00 ₴
Розмір гарантійного внеску:
300.86 ₴
Початок прийому пропозицій:
19.02.2024 11:51:43
Завершення прийому пропозицій:
20.03.2024 20:00:00
Проведення аукціону:
21.03.2024 12:10:00
Лот:
CLE001-UA-20240219-10515
№ лоту (УТК):
UTK070622_05P
Лот виставляється на торги (раз):
10
Стислий опис майна:
Пропонується до оренди нежитлове приміщення площею 20,40 кв.м. Знаходиться в 1-поверховому будинку в центральній частині села. Поруч приватний сектор. Звичайний ремонт. Характеристики: Кількість поверхів – 1; Загальна площа – 20,40 кв.м.; Площа запропонована до оренди – 20,40 кв.м.; Електроенергія – наявне , опалення, водопостачання – відсутні; Земельна ділянка – 0,0036 га (договір оренди ЗД); Стан приміщення – задовільний
Адреса місцезнаходження майна:
Україна, Сумська обл., Конотопський р-н, с. Кузьки, вул. Шевченка, 35
Схожі пропозиції
Сумська обл., смт. Недригайлів, вул. Шевченка, 62. Оренда – частина приміщення з погребом та гаражем площею 140,9 кв.м. (В)
1 545.67 грн
10.97 грн / м2
Приміщення
Сумська обл., смт. Недригайлів, вул. Шевченка, 62. Оренда – частина приміщення з погребом та гаражем площею 140,9 кв.м. (В)
Україна, Сумська обл., смт. Недригайлів, вул. Шевченка, 62
30.04.2024
Сумська обл., Конотопський р-н, с. Землянка, вул. Центральна, буд. 49;   Оренда – нежитлове приміщення площею 18,7 кв.м. (В)
502.28 грн
26.86 грн / м2
Приміщення
Сумська обл., Конотопський р-н, с. Землянка, вул. Центральна, буд. 49; Оренда – нежитлове приміщення площею 18,7 кв.м. (В)
Україна, Сумська обл., Землянка, вул. Центральна, буд. 49
Сумська обл., м. Кролевець, вул. Миру, 8. Оренда – приміщення 2-го поверху
560.64 грн
32.00 грн / м2
Приміщення
Сумська обл., м. Кролевець, вул. Миру, 8. Оренда – приміщення 2-го поверху
Україна, Сумська обл., м. Кролевець, вул. Миру, 8
02.09.2025
Сумська обл., Сумський р-н., с. Річки, вул. Центральна, буд. 6. Оренда – приміщення 2-го поверху площею 20,90 кв. м.
501.60 грн
24.00 грн / м2
Приміщення
Сумська обл., Сумський р-н., с. Річки, вул. Центральна, буд. 6. Оренда – приміщення 2-го поверху площею 20,90 кв. м.
Україна, Сумська обл., Річки, Річки, вул. Центральна, буд. 6
Переглянуті пропозиції
05.12.2023
м. Київ, вул. Джона Маккейна, №40;  Оренда – приміщення підвалу, площею 44,26 кв.м. (В)
10 498.03 грн
237.51 грн / м2
Приміщення
м. Київ, вул. Джона Маккейна, №40; Оренда – приміщення підвалу, площею 44,26 кв.м. (В)
Україна, м.Київ, Київ, вулиця Джона Маккейна, 40
04.03.2025
Харківська обл., Чугуївський р-н, м. Зміїв, вул. Адміністративна, 5. Оренда – приміщення на ІІІ поверсі площею 16,1 кв.м. (В)
273.70 грн
17.00 грн / м2
Приміщення
Харківська обл., Чугуївський р-н, м. Зміїв, вул. Адміністративна, 5. Оренда – приміщення на ІІІ поверсі площею 16,1 кв.м. (В)
Україна, Харківська обл., Чугуївський р-н, м. Зміїв, вул. Адміністративна, 5
01.11.2023
Львівська обл., м. Золочів, вул. Пушкіна, 9. Оренда – приміщення 1-го поверху площею 35,1 кв.м. (В)
972.97 грн
27.72 грн / м2
Приміщення
Львівська обл., м. Золочів, вул. Пушкіна, 9. Оренда – приміщення 1-го поверху площею 35,1 кв.м. (В)
Україна, Львівська обл., Золочів, вулиця Пушкіна, 9
08.09.2022
Рівненська обл., Варашський р-н, смт. Рафалівка, вул.Незалежності, 8А. Оренда – будівля складів з гаражем площею 117,4 кв. м. (В)
1 174.00 грн
10.00 грн / м2
Будівля
Рівненська обл., Варашський р-н, смт. Рафалівка, вул.Незалежності, 8А. Оренда – будівля складів з гаражем площею 117,4 кв. м. (В)
Україна, Рівненська обл., Варашський р-н, смт. Рафалівка, вул.Незалежності, 8А